For Sale - 5 Percy Street, Cramahe, Ontario

Est payment $2,474/mo
Views   1
Time on Jump  7 day
  • Newly renovated home with modern upgrades throughout for ease and charm.
  • Bright open-concept living area filled with natural sunlight for cozy gatherings.
  • Updated kitchen with quartz countertops and new appliances for cooking and entertaining.
  • Convenient main floor addition includes a full bath and laundry area.
  • Great location within walking distance to shops, restaurants, and parks.



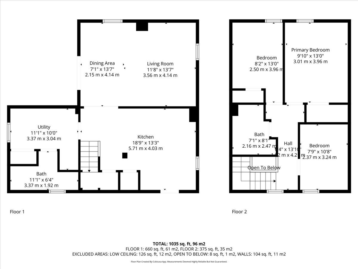
From the moment you arrive, this newly renovated home welcomes you with warmth & comfort. Thoughtfully updated throughout, it offers the ease & charm of small-town living & is truly move-in ready. Recent upgrades include new windows & front door (2023), upgraded insulation and drywall (2024), 200-amp service (2024), a new back addition with a steel roof that blends seamlessly with the home's existing maintenance-free steel roofing, pot lights (2024), fully updated bathrooms & kitchen (2025), & new flooring (2025), to name a few. The bright, open-concept living & dining area is perfect for everyday living, perfect for slow weekend mornings, cozy evenings, or gatherings with friends. Large windows fill the space with natural sunlight, while sliding doors lead to the backyard, providing extra space to enjoy. The kitchen features quartz countertops, ample cabinetry, under-cabinet lighting, & new appliances. It is the perfect space to cook your favourite meals, bake with the kids, or host casual get-togethers. The main floor's new addition adds more convenience, including a full bath, laundry area, & spacious utility room, ideal for keeping life organized & running smoothly. Underneath, the heated crawl space provides additional storage. Upstairs are three inviting bedrooms & a full bath, ideal for family, guests, or a home office. Enjoy walking to local shops, restaurants, & the library, with lake ontario and highway 401 just minutes away. Whether you are starting with your first home, simplifying to a more relaxed lifestyle, or searching for an investment opportunity, this updated home offers many opportunities.
Listing IDX12594576
Address5 Percy Street
CityCramahe, Ontario
Price$499,000
Bed / Bath3 / 2 Full
Style1 1/2 Storey, Detached
ConstructionAluminum Siding, Vinyl Siding
Land Size0.099
TypeResidential
StatusFor Sale
Subtype DetachedIndoor Features Upgraded Insulation, Water Heater OwnedAmenities Library, Park, SchoolOwnership FreeholdBasement Crawl SpaceFoundation Poured Concrete, StoneHeating / Cooling Forced AirHeating Fuel GasSewer Sewer
Parking 2.00
ASAP

Wed

10

Dec

Thu

11

Dec

Fri

12

Dec

Sat

13

Dec

Sun

14

Dec

Mon

15

Dec

Tue

16

Dec

Wed

17

Dec

Thu

18

Dec

Fri

19

Dec

Sat

20

Dec

Sun

21

Dec

Mon

22

Dec

Tue

23

Dec

Wed

24

Dec

Thu

25

Dec

Fri

26

Dec

Sat

27

Dec

Sun

28

Dec

Mon

29

Dec

Tue

30

Dec

Wed

31

Dec

Thu

1

Jan

Fri

2

Jan

Sat

3

Jan

Sun

4

Jan

Mon

5

Jan

Tue

6

Jan

Wed

7

Jan

By clicking “Get pre-qualified” and/or 'Submit' you are expressly consenting, in writing, to receive telemarketing and other messages, including artificial or prerecorded voices, via automated calls or texts from jumprealty.ca and up.mortgages at the number you provided above. This consent is not required to purchase any good or service. Message and data rates may apply, frequency varies. Text HELP for help or STOP to cancel. More details in Terms of Use and Privacy Policy.

Listing Agency:  COLDWELL BANKER - R.M.R. REAL ESTATE
Hospital
Parks
Schools
Place of Worship
Please select an amenity above to view a list.

Recommended Properties

Loading...
5 Percy Street
Cramahe , Ontario
3 2 $499,000
Get more info