For Lease - 10 Coxwell Avenue Unit# Unit 2, Toronto, Ontario

Views   1
Time on Jump  28 day
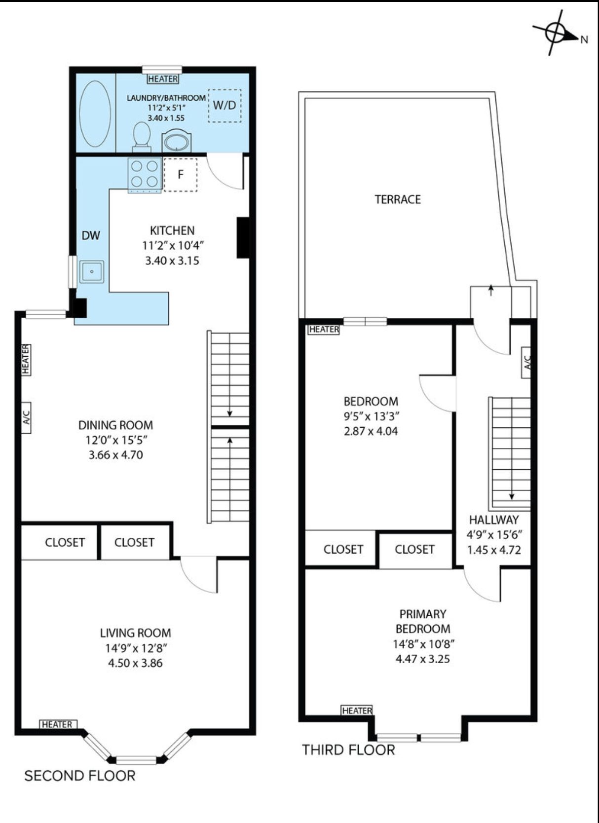
  • Updated upper unit with modern comfort and lasting character.
  • Bright, open-concept kitchen and dining areas great for entertaining.
  • Private deck on the 3rd floor for relaxation and hosting.
  • Steps from vibrant restaurants, cafés, and boutique shops.
  • Convenient streetcar access for easy commuting around the city.
Situated in the heart of east leslieville, this beautifully updated 3 bedroom, 2 level upper unit perfectly combines modern comfort with timeless character. Bright, open-concept kitchen and dining areas are ideal for entertaining, featuring spacious, light-filled living spaces anda generous primary bedroom. Enjoy the convenience of ensuite laundry and a private 3rd-floorwalk-out deck, perfect for relaxing or hosting guests. Located just steps from queen street and the best of leslieville's vibrant restaurants, cafés, and boutique shops. Within the highly sought-after bruce public school catchment, and offering easy access to the beaches, downtown toronto, the gardiner, and dvp. Streetcar access right at your doorstep makes commuting effortless. Available immediately. Experience the best of east-end living in one of toronto's most desirable neighbourhoods. Tenant to pay 50% of electricity and gas bills.
Listing IDE12523112
Address10 Coxwell Avenue Unit# Unit 2
CityToronto, Ontario
Lease$3,000
Bed / Bath3 / 1 Full
Style3-Storey, Duplex
ConstructionBrick, Vinyl Siding
TypeMulti-Family
StatusFor Lease
Subtype DuplexIndoor Features Carpet Free, EnsuiteOutdoor Features DeckInclusions WaterAmenities Beach, Fenced Yard, Hospital, Library, Marina, Public TransitOwnership LeaseholdViews DowntownWaterfront IndirectBasement NoneFoundation ConcreteHeating / Cooling RadiantHeating Fuel GasSewer Septic
ASAP

Sun

7

Dec

Mon

8

Dec

Tue

9

Dec

Wed

10

Dec

Thu

11

Dec

Fri

12

Dec

Sat

13

Dec

Sun

14

Dec

Mon

15

Dec

Tue

16

Dec

Wed

17

Dec

Thu

18

Dec

Fri

19

Dec

Sat

20

Dec

Sun

21

Dec

Mon

22

Dec

Tue

23

Dec

Wed

24

Dec

Thu

25

Dec

Fri

26

Dec

Sat

27

Dec

Sun

28

Dec

Mon

29

Dec

Tue

30

Dec

Wed

31

Dec

Thu

1

Jan

Fri

2

Jan

Sat

3

Jan

Sun

4

Jan

By clicking “Get pre-qualified” and/or 'Submit' you are expressly consenting, in writing, to receive telemarketing and other messages, including artificial or prerecorded voices, via automated calls or texts from jumprealty.ca and up.mortgages at the number you provided above. This consent is not required to purchase any good or service. Message and data rates may apply, frequency varies. Text HELP for help or STOP to cancel. More details in Terms of Use and Privacy Policy.

Listing Agency:  ROYAL LEPAGE YOUR COMMUNITY REALTY
Hospital
Parks
Schools
Place of Worship
Please select an amenity above to view a list.

Recommended Properties

Loading...
10 Coxwell Avenue Unit# Unit 2
Toronto , Ontario
3 1 $3,000
Get more info