For Sale - 214 Aldercrest Road, Toronto, Ontario

Est payment $10,385/mo
Views   1
Time on Jump  1 days
  • Custom built home from 2021 with stylish design and craftsmanship.
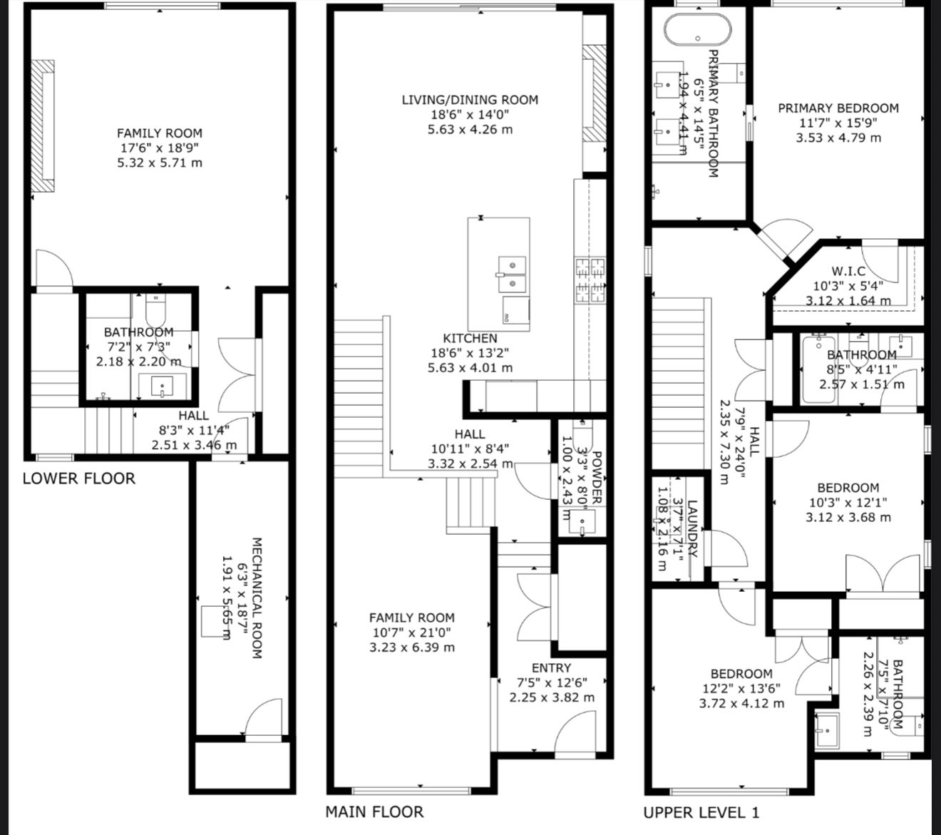
  • Spacious 2124 sq ft layout with beautiful white oak hardwood flooring.
  • Three bedrooms, each with their own washroom for privacy.
  • Large composite deck overlooking a fenced yard, perfect for outdoor activities.
  • Conveniently located near schools, shops, parks, and transit options.



Stunning contemporary custom built home on a great street in alderwood. Built in 2021, this home features exceptional style and craftsmanship with no expenses spared- move in and enjoy. 2124 square feet of above grade luxury. Designer/ aluminum windows throughout the home including a custom 2 panel door that opens up to deck/yard. The main floor features white oak hardwood flooring throughout, designer powder room with a chevron marble mosaic floor, raised (above garage) separate dining or family room, glass railings and custom *mono beam/ floating stairs. The kitchen/living area features 12 foot ceilings, custom millwork and cabinetry (*to ceiling*) with quartz counters and integrated jenn-air appliances. The upper level features three bedrooms, all featuring it's own and separate washrooms (see floorplan). The primary bedroom features a stunning 5-piece, heated floor ensuite with acrylic tub and curbless shower and a custom walk-in closet. Large windows throughout the upper level including a skylight and large laundry closet with sink. The lower level is equipped with heated tile flooring throughout, 9 foot ceiling, built-in/rough in for home theatre/surround sound, gas fireplace and 3 piece washroom with large shower, large closets and large storage area/mechanical room showcasing the level of building quality. Cold room with sump-pump. This home features custom built-in closets on every level, *built-in audio speakers on main floor, primary bath and outside deck* 200 amp service, car charge ready, smart switches, recessed lighting and much more. Garage plus park 2 cars on driveway. Stone walkway and patio. Large composite deck with glass railing overlooking the large/clean yard. Fully fenced. *take the virtual tour! Conveniently located in the centre of the great community of alderwood. Close to great schools, minutes to shops/amenities, restaurants, highways, parks, cycling/walking trails and the lake. Quick access to ttc transit and go station & more!
Listing IDW12601244
Address214 Aldercrest Road
CityToronto, Ontario
Price$2,095,000
Bed / Bath4 / 5 Full
Style2-Storey, Detached
ConstructionBrick
TypeResidential
StatusFor Sale
Subtype DetachedIndoor Features Air Exchanger, Auto Garage Door Remote, Built-In Oven, Central Vacuum, On Demand Water Heater, Water MeterOwnership FreeholdBasement FinishedFoundation Concrete BlockHeating / Cooling Forced AirHeating Fuel GasSewer Sewer
Parking 3.00
ASAP

Sun

7

Dec

Mon

8

Dec

Tue

9

Dec

Wed

10

Dec

Thu

11

Dec

Fri

12

Dec

Sat

13

Dec

Sun

14

Dec

Mon

15

Dec

Tue

16

Dec

Wed

17

Dec

Thu

18

Dec

Fri

19

Dec

Sat

20

Dec

Sun

21

Dec

Mon

22

Dec

Tue

23

Dec

Wed

24

Dec

Thu

25

Dec

Fri

26

Dec

Sat

27

Dec

Sun

28

Dec

Mon

29

Dec

Tue

30

Dec

Wed

31

Dec

Thu

1

Jan

Fri

2

Jan

Sat

3

Jan

Sun

4

Jan

By clicking “Get pre-qualified” and/or 'Submit' you are expressly consenting, in writing, to receive telemarketing and other messages, including artificial or prerecorded voices, via automated calls or texts from jumprealty.ca and up.mortgages at the number you provided above. This consent is not required to purchase any good or service. Message and data rates may apply, frequency varies. Text HELP for help or STOP to cancel. More details in Terms of Use and Privacy Policy.

Listing Agency:  RE/MAX PROFESSIONALS INC.
Hospital
Parks
Schools
Place of Worship
Please select an amenity above to view a list.

Recommended Properties

Loading...
214 Aldercrest Road
Toronto , Ontario
4 5 $2,095,000
Get more info