For Sale - 5176 Kelly Road, Hamilton Township, Ontario

Est payment $4,213/mo
Views   1
Time on Jump  1 days
  • Beautiful brick raised bungalow on a spacious half-acre lot.
  • Walking distance to Rice Lake and Gore's Landing Park & Marina.
  • Oversized double garage with direct lower level access for convenience.
  • Heated detached 3-car garage ideal for hobbies and extra storage.
  • Renovated main level with bright living spaces and modern amenities.



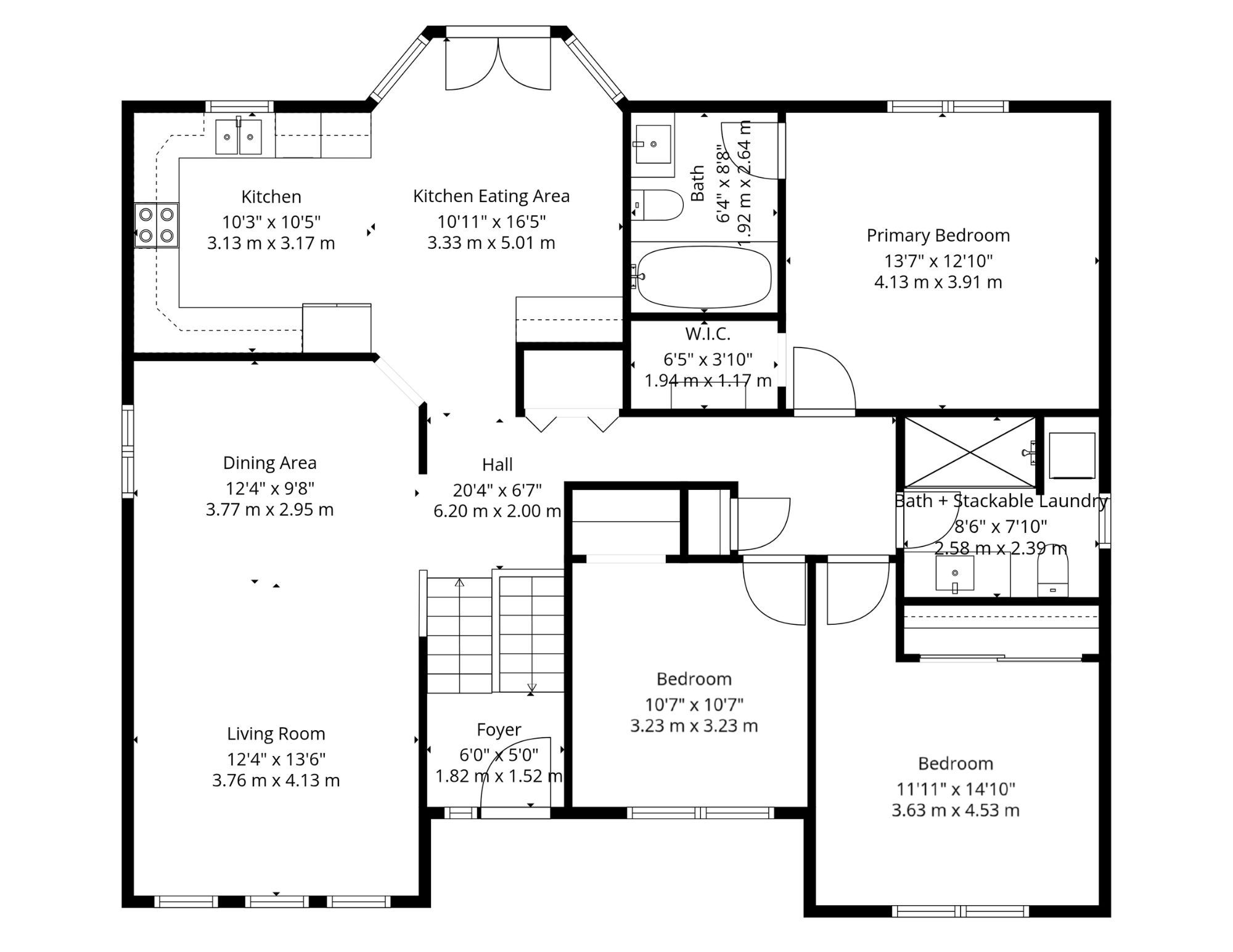
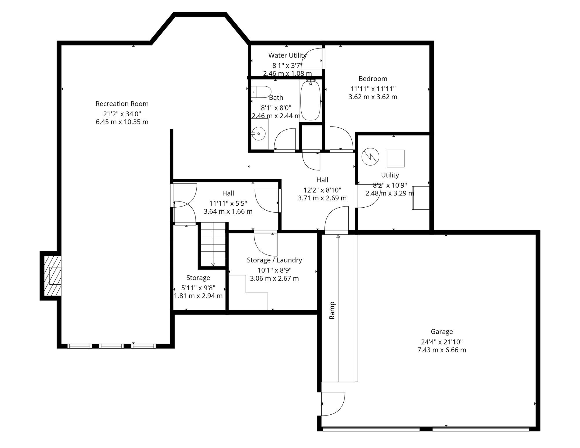
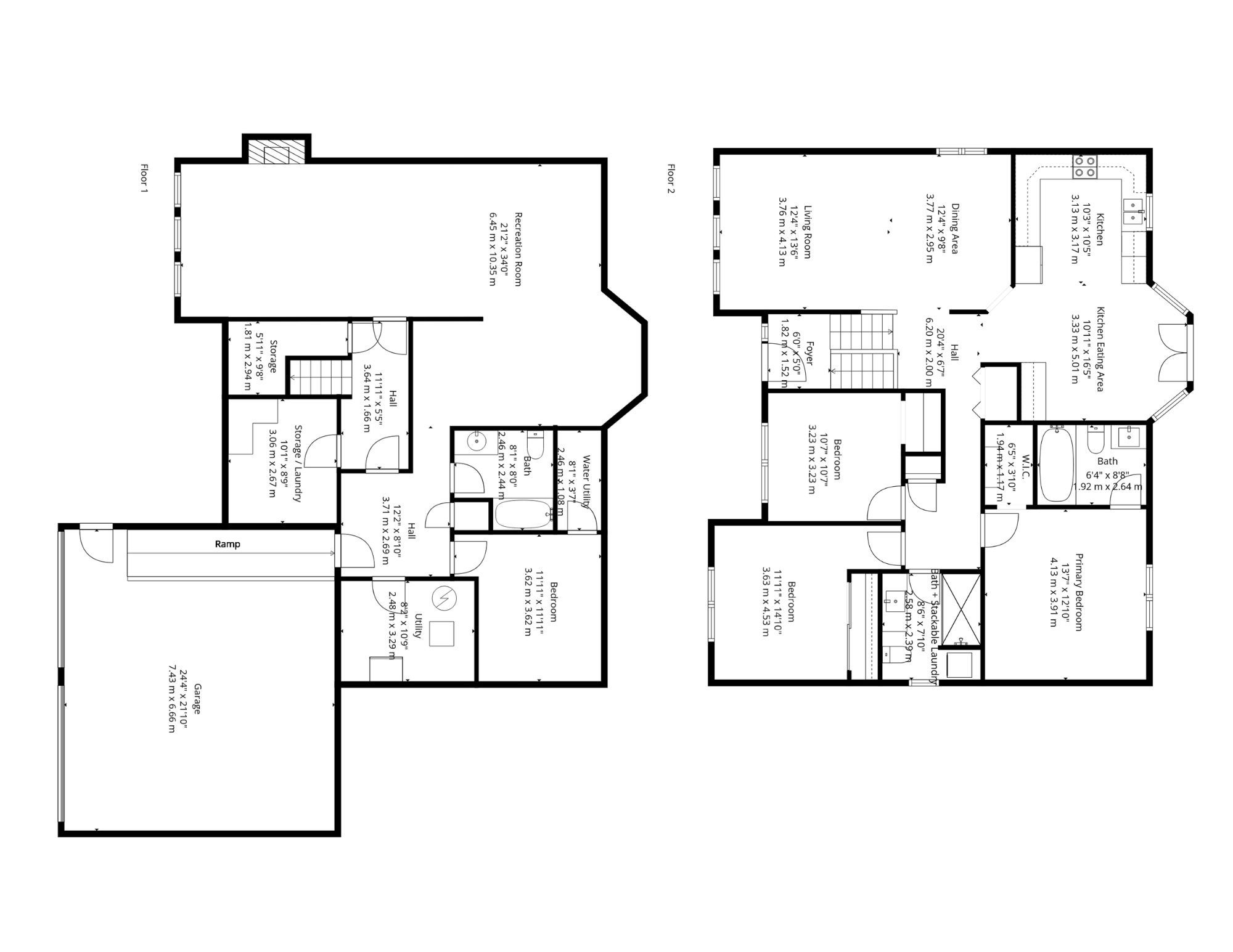
Within walking distance to rice lake, gore's landing park & marina, this beautiful brick 3+1 bedroom raised bungalow on a 1/2 + acre lot (. 63) has exceptional curb appeal, offering a perfect blend of tranquility and convenience for outdoor enthusiasts and families alike. As you approach 5176 kelly rd, you will notice the extensive paved driveway (4 yrs) with parking for lots of vehicles and toys. Attached to the home is an over-sized double garage with direct access to the lower level offering potential for an in-law suite, a convenient ramp for easy accessibility (removable) and wired for portable generator hookup. In addition, there is a detached vinyl sided 3-car garage (24'7 x 30') built in 2016 that is heated, insulated, 100 amp service and has a concrete floor, making this an ideal space for hobbyists, car enthusiasts and/or additional storage. Step inside the home to discover a bright main level featuring interior renovations in 2017/18 with maintenance-free andersen windows, hardwood flooring, crown mouldings, white colonial doors and baseboards. The heart of the home is the family-sized kitchen, complete with white cabinetry, stainless steel appliances, and a spacious eating area with extra matching cabinet, in addition to a garden door walkout to yard. Entertain in the front living and dining area with 3 large windows overlooking the front garden and yard. The primary suite offers a modern 4-piece ensuite and walk-in closet, plus there are 2 additional main floor secondary bedrooms with a 3-piece washroom incorporating a stackable washer and dryer, large shower with sliding glass doors plus vanity area. The lower level presents more bright living space with a 4th bedroom, huge l-shaped recreation room warmed by a cozy propane fireplace, 3 front elevation above-grade windows, rich coloured laminate flooring, and a suspended ceiling with pot lights, plus multiple unfinished utility rooms.
Listing IDX12628704
Address5176 Kelly Road
CityHamilton Township, Ontario
Price$849,900
Bed / Bath4 / 3 Full
StyleBungalow-Raised, Detached
ConstructionBrick
Land Size0.63
TypeResidential
StatusFor Sale
Subtype DetachedIndoor Features In-Law Capability, Storage, Suspended Ceilings, Water Heater Owned, Wheelchair Access, Auto Garage Door Remote, Carpet Free, Water SoftenerOutdoor Features Deck, Landscaped, Privacy, Year Round LivingAmenities Lake/Pond, Level, Marina, School, SlopingOwnership FreeholdViews GardenWaterfront NoneAppliances RampsBasement Full, Separate EntranceFoundation Poured ConcreteHeating / Cooling Forced AirHeating Fuel PropaneSewer Septic
Parking 15.00
ASAP

Fri

12

Dec

Sat

13

Dec

Sun

14

Dec

Mon

15

Dec

Tue

16

Dec

Wed

17

Dec

Thu

18

Dec

Fri

19

Dec

Sat

20

Dec

Sun

21

Dec

Mon

22

Dec

Tue

23

Dec

Wed

24

Dec

Thu

25

Dec

Fri

26

Dec

Sat

27

Dec

Sun

28

Dec

Mon

29

Dec

Tue

30

Dec

Wed

31

Dec

Thu

1

Jan

Fri

2

Jan

Sat

3

Jan

Sun

4

Jan

Mon

5

Jan

Tue

6

Jan

Wed

7

Jan

Thu

8

Jan

Fri

9

Jan

By clicking “Get pre-qualified” and/or 'Submit' you are expressly consenting, in writing, to receive telemarketing and other messages, including artificial or prerecorded voices, via automated calls or texts from jumprealty.ca and up.mortgages at the number you provided above. This consent is not required to purchase any good or service. Message and data rates may apply, frequency varies. Text HELP for help or STOP to cancel. More details in Terms of Use and Privacy Policy.

Listing Agency:  RE/MAX IMPACT REALTY
Hospital
Parks
Schools
Place of Worship
Please select an amenity above to view a list.

Recommended Properties

Loading...
5176 Kelly Road
Hamilton Township , Ontario
4 3 $849,900
Get more info