For Sale - 787 HELENA Court, Belle River, Ontario

Est payment $2,860/mo
Views   1
Time on Jump  1 days
  • Well-maintained raised ranch built in 1999, perfect for first-time buyers.
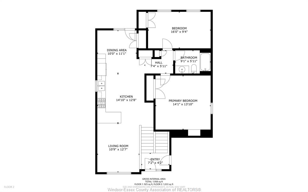
  • Bright main level with open-concept living, two bedrooms, and a full bathroom.
  • Kitchen with gas stove and direct access to backyard deck for entertaining.
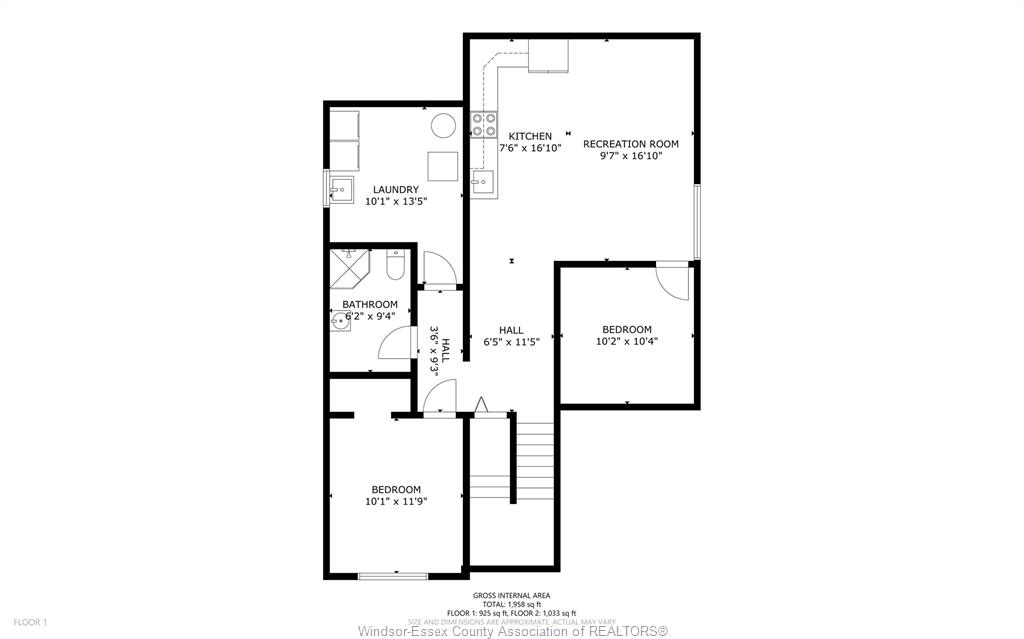
  • Fully finished basement includes a second kitchen and two additional bedrooms.
  • Conveniently located near schools, shops, and amenities for ultimate comfort.



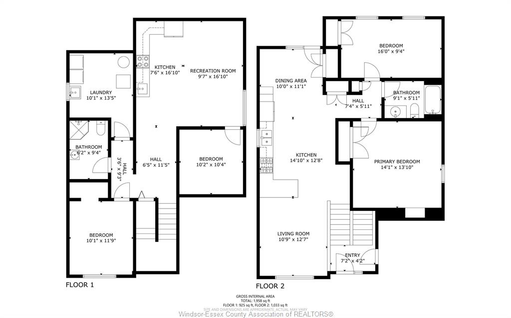
This well-maintained raised ranch, built in 1999, presents a fantastic opportunity for a first-time buyer or anyone seeking a home with flexible living space. The main level features a bright and functional layout with two bedrooms, a full bathroom, and an open-concept living and dining area. The kitchen is equipped with a gas stove and provides direct access to a backyard deck-perfect for relaxing or entertaining. A welcoming foyer completes this level. The fully finished basement significantly expands your living options, offering a second full kitchen, two additional bedrooms, and another full bathroom. This space is ideal for large family's quarters. Situated on a good-sized lot, the home is within walking distance of schools, shops, and amenities like shoppers drug mart, combining comfort with ultimate convenience. For more information, contact us.
Listing ID25031544
Address787 HELENA Court
CityBelle River, Ontario
Price$577,000
Bed / Bath4 / 2 Full
StyleRaised Ranch
ConstructionAluminum/Vinyl, Colour Lock
FlooringCeramic or Porcelain, Laminate, Other, S…
TypeResidential
StatusFor Sale
Attachment Style DetachedSubtype Raised RanchAcreage 0.149Indoor Features 2nd KitchenDriveway Concrete Drive, Double Width Or More DriveParking Double GarageAmenities Fenced YardOwnership FreeholdRental Equipment Hot Water TankAppliances 2 Fridges, 2 Stoves, Dishwasher, Dryer, WasherBasement FullBasement Development FinishedFoundation Other, See RemarksHeating / Cooling Central Air Conditioning, Forced Air, FurnaceHeating Fuel Electric, Natural GasHot Water Tank Electric, GasUtility Water Municipal WaterSewer Sanitary
Date Listed Dec 10, 2025Days on Market 1
ASAP

Fri

12

Dec

Sat

13

Dec

Sun

14

Dec

Mon

15

Dec

Tue

16

Dec

Wed

17

Dec

Thu

18

Dec

Fri

19

Dec

Sat

20

Dec

Sun

21

Dec

Mon

22

Dec

Tue

23

Dec

Wed

24

Dec

Thu

25

Dec

Fri

26

Dec

Sat

27

Dec

Sun

28

Dec

Mon

29

Dec

Tue

30

Dec

Wed

31

Dec

Thu

1

Jan

Fri

2

Jan

Sat

3

Jan

Sun

4

Jan

Mon

5

Jan

Tue

6

Jan

Wed

7

Jan

Thu

8

Jan

Fri

9

Jan

By clicking “Get pre-qualified” and/or 'Submit' you are expressly consenting, in writing, to receive telemarketing and other messages, including artificial or prerecorded voices, via automated calls or texts from jumprealty.ca and up.mortgages at the number you provided above. This consent is not required to purchase any good or service. Message and data rates may apply, frequency varies. Text HELP for help or STOP to cancel. More details in Terms of Use and Privacy Policy.

Listing Agency:  REMAX PREFERRED REALTY LTD. - 585
Co-Listing Agency:  REMAX PREFERRED REALTY LTD. - 585
Hospital
Parks
Schools
Place of Worship
Please select an amenity above to view a list.

Recommended Properties

Loading...
787 Helena Court
Belle River , Ontario
4 2 $577,000
Get more info