For Sale - 00 Harmony Road, Oshawa, Ontario

Est payment $11,525/mo
Views   1
Time on Jump  6 day
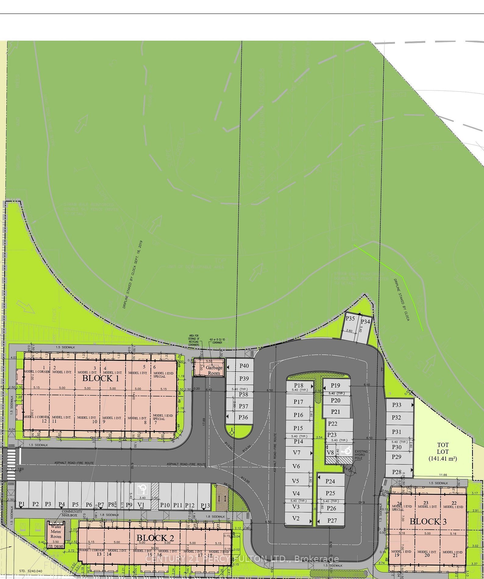
  • Enclaved community perfect for a new development project.
  • Draft and site plan approved for 24 town homes.
  • Includes six row and eighteen back-to-back three-story units.
  • Water and sewer connections readily available at property line.
  • Great investment opportunity in a desirable location.



Enclaved community, draft & site plan approved for twenty four town homes . Six row and eighteen back to back three story towns. Water and sewer connections at the property line.
Listing IDE12929770
Address00 Harmony Road
CityOshawa, Ontario
Price$2,400,000
StyleLand
TypeVacant Land
StatusFor Sale
Subtype LandCommunity Features Major Highway, Public TransitSewer None
ASAP

Fri

3

Apr

Sat

4

Apr

Sun

5

Apr

Mon

6

Apr

Tue

7

Apr

Wed

8

Apr

Thu

9

Apr

Fri

10

Apr

Sat

11

Apr

Sun

12

Apr

Mon

13

Apr

Tue

14

Apr

Wed

15

Apr

Thu

16

Apr

Fri

17

Apr

Sat

18

Apr

Sun

19

Apr

Mon

20

Apr

Tue

21

Apr

Wed

22

Apr

Thu

23

Apr

Fri

24

Apr

Sat

25

Apr

Sun

26

Apr

Mon

27

Apr

Tue

28

Apr

Wed

29

Apr

Thu

30

Apr

Fri

1

May

By clicking “Get pre-qualified” and/or 'Submit' you are expressly consenting, in writing, to receive telemarketing and other messages, including artificial or prerecorded voices, via automated calls or texts from jumprealty.ca and up.mortgages at the number you provided above. This consent is not required to purchase any good or service. Message and data rates may apply, frequency varies. Text HELP for help or STOP to cancel. More details in Terms of Use and Privacy Policy.

Listing Agency:  CENTURY 21 PERCY FULTON LTD.

* Data is provided courtesy of PROPTX. The information provided herein must only be used by consumers that have a bona fide interest in the purchase, sale, or lease of real estate and may not be used for any commercial purpose or any other purpose. The information is deemed reliable but is not guaranteed accurate by PROPTX.

Hospital
Parks
Schools
Place of Worship
Please select an amenity above to view a list.

Recommended Properties

Loading...
00 Harmony Road
Oshawa , Ontario
$2,400,000
Get more info