For Lease - 1 Quarrington Lane Unit# 2602, Toronto, Ontario

Views   3
Time on Jump  21 day
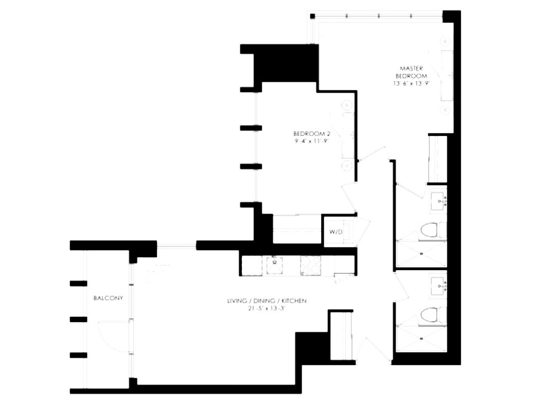
  • Luxury corner suite with two spacious bedrooms and large windows.
  • Sunny open-concept layout with breathtaking views of green space.
  • Chef-inspired kitchen with premium Miele appliances and quartz counters.
  • World-class amenities including fitness center, party room, and rooftop terrace.
  • Excellent transit access and close to shopping, dining, and parks.
Crosstown condo this luxury never-lived-in corner suite features 2 spacious bedrooms (both with large windows) and 2 full bathrooms. Boasting 830 sq ft of sun-drenched livable space plus 55 sq ft balcony, the functional open-concept layout is wrapped in floor-to-ceiling windows with breath-taking south views of green space and cn tower. Chef-inspired kitchen features premium built-in miele appliances and quartz counters. Modern essentials include 9' smooth ceilings, smart-lock entry, and rogers ignite internet. $$$ in upgrade includes: durable vinyl flooring, mirror closets, frameless showers with clear glass, added ceiling lights in living & dinning, etc. Located in the heart of a 60-acre master-planned community. Offers world-class amenities: 24/7 concierge, 4,000 sq ft fitness center, indoor basketball court, gym, party room, co-working lounge, pet wash, rooftop terrace, etc. Unbeatable transit access steps to the new eglinton lrt, dvp, and 401/404. Minutes to cf shops at don mills, sunnybrook park, aga khan museum, and local dining. A perfect blend of luxury and connectivity in the heart of central north york.
Listing IDC12956684
Address1 Quarrington Lane Unit# 2602
CityToronto, Ontario
Lease$2,750
Bed / Bath2 / 2 Full
StyleApartment, Condo Apartment
ConstructionConcrete
TypeCondominium
StatusFor Lease
Subtype Condo ApartmentIndoor Features Carpet Free, EnsuiteInclusions Building InsuranceAmenities Clear View, Electric Car Charger, Park, Public Transit, School, LibraryOwnership LeaseholdViews Park/Greenbelt, ValleyBuilding Amenities Concierge, Gym, Party Room/Meeting Room, Rooftop Deck/Garden, Visitor Parking, Guest SuitesBasement NoneHeating / Cooling Forced AirHeating Fuel Gas
Parking 1.00
ASAP

Sun

26

Apr

Mon

27

Apr

Tue

28

Apr

Wed

29

Apr

Thu

30

Apr

Fri

1

May

Sat

2

May

Sun

3

May

Mon

4

May

Tue

5

May

Wed

6

May

Thu

7

May

Fri

8

May

Sat

9

May

Sun

10

May

Mon

11

May

Tue

12

May

Wed

13

May

Thu

14

May

Fri

15

May

Sat

16

May

Sun

17

May

Mon

18

May

Tue

19

May

Wed

20

May

Thu

21

May

Fri

22

May

Sat

23

May

Sun

24

May

By clicking “Get pre-qualified” and/or 'Submit' you are expressly consenting, in writing, to receive telemarketing and other messages, including artificial or prerecorded voices, via automated calls or texts from jumprealty.ca and up.mortgages at the number you provided above. This consent is not required to purchase any good or service. Message and data rates may apply, frequency varies. Text HELP for help or STOP to cancel. More details in Terms of Use and Privacy Policy.

Listing Agency:  LANDPOWER REAL ESTATE LTD.

* Data is provided courtesy of PROPTX. The information provided herein must only be used by consumers that have a bona fide interest in the purchase, sale, or lease of real estate and may not be used for any commercial purpose or any other purpose. The information is deemed reliable but is not guaranteed accurate by PROPTX.

Hospital
Parks
Schools
Place of Worship
Please select an amenity above to view a list.

Recommended Properties

Loading...
1 Quarrington Lane Unit# 2602
Toronto , Ontario
2 2 $2,750
Get more info