For Sale - 10 O'Connell Court, Kawartha Lakes, Ontario

Est payment $2,881/mo
Views   1
Time on Jump  1 days
  • Quality-built home on a quiet cul-de-sac with low traffic.
  • Spacious backyard with partial fencing, great for relaxation and activities.
  • Bright living room and eat-in kitchen with new countertops and deck access.
  • Flexible lower level with kitchenette, ideal for guests or home office.
  • Convenient location near schools and parks, enhancing community living.



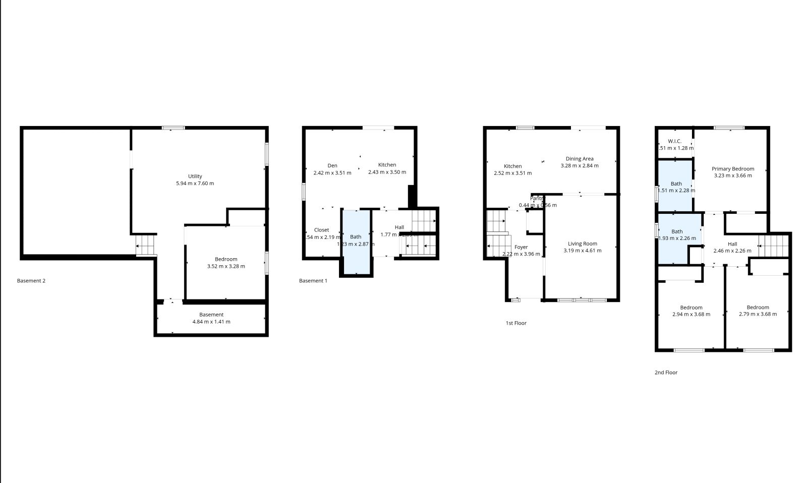
Welcome to this quality-built grimesway home - perfectly situated on a quiet, low-traffic cul-de-sac in a highly desirable location. Offering space, versatility, and thoughtful updates, this home is ideal for growing families or multi-generational living. From the moment you arrive, you'll appreciate the private driveway- no sidewalk to shovel- and the solid all-brick exterior. Set on an impressive 42' lot that widens to 108' at the rear, the partially fenced backyard provides exceptional outdoor space to relax and unwind. Recent updates, including a new roof, eaves, and downspouts (2024), along with a newer furnace (just 4 years old), offer added peace of mind. A charming, south-facing covered front porch welcomes you into the foyer. Inside, the bright living room features a large south facing window (enjoy that sunshine!) , while the eat-in kitchen boasts new countertops and a walk-out to a brand new deck-perfect for entertaining or enjoying evenings in the hot tub. Upstairs, you'll find three generously sized bedrooms, including a primary suite complete with a walk-in closet, an additional closet, and a private ensuite bath. The lower level offers incredible flexibility, featuring a cozy family room with a kitchenette, (could be in-law material, extended family for extra income offering ultimate privacy, or perhaps a home office that can be completely shut off from family time) - a third full bathroom, and sliding doors leading directly to the backyard. With direct access from the double car garage, this space is both functional and private. A few steps down, the home continues with a fourth bedroom, laundry area - surprisingly bright windows, along with a large crawl space providing ample storage. Located within walking distance to schools and two fantastic parks, this home truly combines comfort, convenience, and community.
Listing IDX13019892
Address10 O'Connell Court
CityKawartha Lakes, Ontario
Price$599,900
Bed / Bath4 / 3 Full
StyleSidesplit, Detached
ConstructionBrick
TypeResidential
StatusFor Sale
Subtype DetachedIndoor Features Accessory Apartment, Auto Garage Door Remote, Floor Drain, In-Law Capability, StorageOutdoor Features Hot Tub, Deck, Porch, Year Round LivingAmenities Cul de Sac/Dead End, Park, Rec./Commun.CentreOwnership FreeholdWaterfront NoneBasement Full, Partially FinishedFoundation ConcreteHeating / Cooling Forced AirHeating Fuel GasSewer Sewer
Parking 4.00
ASAP

Tue

21

Apr

Wed

22

Apr

Thu

23

Apr

Fri

24

Apr

Sat

25

Apr

Sun

26

Apr

Mon

27

Apr

Tue

28

Apr

Wed

29

Apr

Thu

30

Apr

Fri

1

May

Sat

2

May

Sun

3

May

Mon

4

May

Tue

5

May

Wed

6

May

Thu

7

May

Fri

8

May

Sat

9

May

Sun

10

May

Mon

11

May

Tue

12

May

Wed

13

May

Thu

14

May

Fri

15

May

Sat

16

May

Sun

17

May

Mon

18

May

Tue

19

May

By clicking “Get pre-qualified” and/or 'Submit' you are expressly consenting, in writing, to receive telemarketing and other messages, including artificial or prerecorded voices, via automated calls or texts from jumprealty.ca and up.mortgages at the number you provided above. This consent is not required to purchase any good or service. Message and data rates may apply, frequency varies. Text HELP for help or STOP to cancel. More details in Terms of Use and Privacy Policy.

Listing Agency:  RE/MAX ALL-STARS REALTY INC.

* Data is provided courtesy of PROPTX. The information provided herein must only be used by consumers that have a bona fide interest in the purchase, sale, or lease of real estate and may not be used for any commercial purpose or any other purpose. The information is deemed reliable but is not guaranteed accurate by PROPTX.

Hospital
Parks
Schools
Place of Worship
Please select an amenity above to view a list.

Recommended Properties

Loading...
10 O'connell Court
Kawartha Lakes , Ontario
4 3 $599,900
Get more info