For Sale - 10175 MERRYWOOD Drive, Lambton Shores, Ontario

Est payment $8,674/mo
Views   1
Time on Jump  25 day
  • New construction by the beach with unmatched luxury features and quality.
  • Heated saltwater pool with a waterfall, perfect for relaxation and entertainment.
  • Spacious layout with a gym, movie theater, and multiple entertaining areas.
  • Smart home technology for convenient control of systems and appliances.
  • Additional guest house and oversized 3-car garage, ideal for visitors and storage.



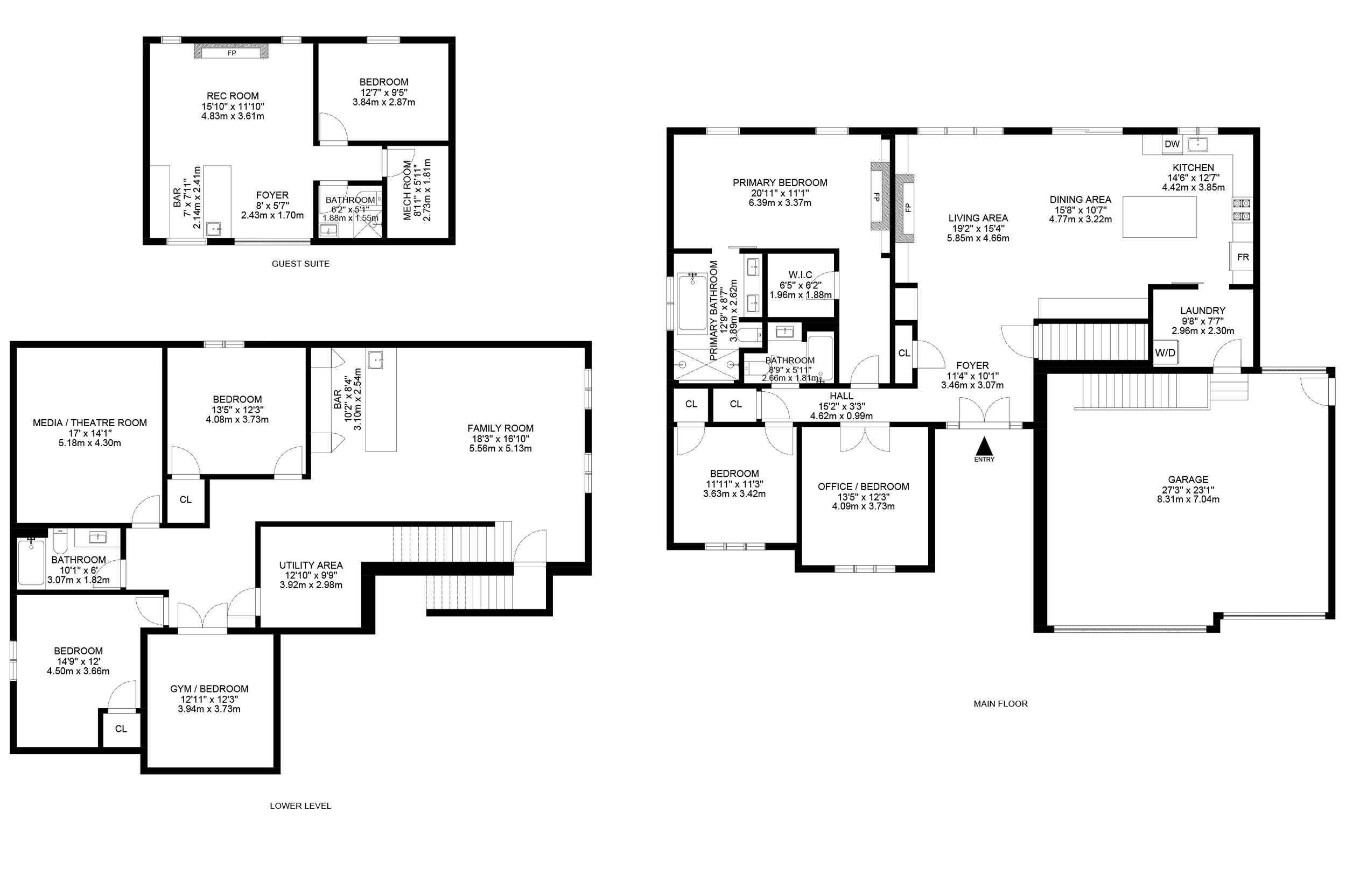
New construction in grand bend | matchless & stunning beyond compare | executive level luxury | unparalleled features & quality | heated salt water pool w/ waterfall | guest house | 6 bedrooms, 4 bathrooms, gym, 2 bars, 3 car garage - the hit list is endless! In terms of new construction by the beach in grand bend, this surpasses as good as it gets. This exceptional custom masterpiece courtesy of renowned builders gold rock homes is a definitive example of the phrase "next level". As a one of a kind family home or premium cottage, this is a house that must be seen to gain an understanding of the truly remarkable style & superior construction & finishing. The attentive & creative expert builder didn't miss a thing! This brand new home comes complete w/ a premium appliance package, movie theatre seating & hifi package, & a 7 year tarion new home warranty among many other extras. From the second you pull into the property, you'll notice a plethora of compliments unique to this home & generally unfound in the grand bend resale marketplace. The excellent combination of brick & natural stone surrounds the entire house, a finish that is flawlessly accented by the 100% custom steel work in all of the gables & soffits, all of which is protected by a top-of-the-line diamond slate metal roof. This is also a smart-home, with everything run off your phone from the camera system, garage doors, & included sound system to the pool, the pool's one of a kind waterfall & fountain system, & the thermostats. However, its the sensational layout & show-stopping finishing that completes the package, w/ the soaring 2-tone coffered tray ceilings & the epic custom chef's kitchen loaded w/ built-in/cabinet ready appliances creating incomparable luxury level living. Coming in just shy of 4000 sq ft & including a proper gym & movie theater, you also get the 840 sq ft insulated 3 car garage w/ its separate lower level entrance plus another 700 sq ft in the guest house! Perfection at the beach!
Listing IDX12567690
Address10175 MERRYWOOD Drive
CityLambton Shores, Ontario
Price$1,749,900
Bed / Bath7 / 4 Full
StyleBungalow, Detached
ConstructionMetal/Steel Siding, Stone
Land Size0.337
TypeResidential
StatusFor Sale
Subtype DetachedIndoor Features Other, Upgraded Insulation, Bar Fridge, On Demand Water Heater, Water Heater Owned, Air Exchanger, Central Vacuum, Primary Bedroom - Main FloorOutdoor Features Lighting, Paved Yard, Porch, Privacy, Seasonal Living, Year Round LivingAmenities Fenced YardOwnership FreeholdViews Pool, Trees/WoodsWaterfront WaterfrontCommunityBasement Full, FinishedFoundation Poured ConcreteHeating / Cooling Forced AirHeating Fuel GasSewer Sewer
Parking 10.00
ASAP

Thu

18

Dec

Fri

19

Dec

Sat

20

Dec

Sun

21

Dec

Mon

22

Dec

Tue

23

Dec

Wed

24

Dec

Thu

25

Dec

Fri

26

Dec

Sat

27

Dec

Sun

28

Dec

Mon

29

Dec

Tue

30

Dec

Wed

31

Dec

Thu

1

Jan

Fri

2

Jan

Sat

3

Jan

Sun

4

Jan

Mon

5

Jan

Tue

6

Jan

Wed

7

Jan

Thu

8

Jan

Fri

9

Jan

Sat

10

Jan

Sun

11

Jan

Mon

12

Jan

Tue

13

Jan

Wed

14

Jan

Thu

15

Jan

By clicking “Get pre-qualified” and/or 'Submit' you are expressly consenting, in writing, to receive telemarketing and other messages, including artificial or prerecorded voices, via automated calls or texts from jumprealty.ca and up.mortgages at the number you provided above. This consent is not required to purchase any good or service. Message and data rates may apply, frequency varies. Text HELP for help or STOP to cancel. More details in Terms of Use and Privacy Policy.

Listing Agency:  ROYAL LEPAGE TRILAND REALTY
Hospital
Parks
Schools
Place of Worship
Please select an amenity above to view a list.

Recommended Properties

Loading...
10175 Merrywood Drive
Lambton Shores , Ontario
7 4 $1,749,900
Get more info