For Lease - 1020 GODERICH Street Unit# 122, Saugeen Shores, Ontario

Views   1
Time on Jump  142 day
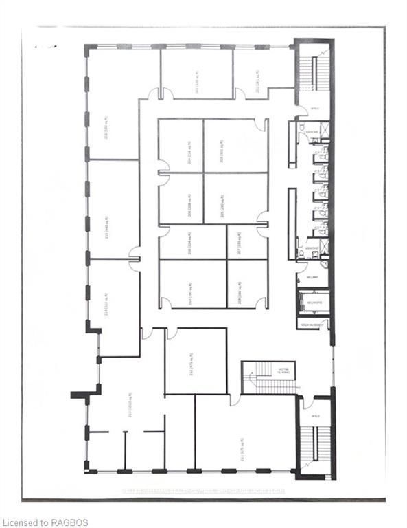
  • Premium 174 sq ft office with floor-to-ceiling windows.
  • Exceptional affordability and flexibility with modern finishes.
  • 24/7 secure access and low operating costs for convenience.
  • Shared amenities include boardrooms and a tenants' lounge.
  • Prime location with highway visibility, minutes from Bruce Power.
Elevate your business presence with suite 122, a premium 174 sq ft main-level office featuring floor-to-ceiling windows at the innovative powerlink building; bruce county's leading modern workspace in saugeen shores. This condominium office offers exceptional affordability and flexibility, with high-end finishes, 24/7 secure access, and low operating costs. Abundant natural light enhances the space, complemented by shared amenities including executive boardrooms, a first-floor business center for networking, and a third-floor tenants' lounge with café. Strategically located with prime highway visibility and just minutes from bruce power, powerlink sets the standard for professional environments in the area. Available for immediate occupancy-schedule your viewing today to explore lease or purchase options. Powerlink: building tomorrow's success. Suite 121, a main-level window unit, is also available now.
Listing IDX12498090
Address1020 GODERICH Street Unit# 122
CitySaugeen Shores, Ontario
Lease$875
StyleOffice
TypeIndustrial/Commercial
StatusFor Lease
Subtype OfficeCommunity Features Major HighwayOwnership LeaseholdBasement 1Heating / Cooling Gas Forced Air Open
ASAP

Tue

24

Mar

Wed

25

Mar

Thu

26

Mar

Fri

27

Mar

Sat

28

Mar

Sun

29

Mar

Mon

30

Mar

Tue

31

Mar

Wed

1

Apr

Thu

2

Apr

Fri

3

Apr

Sat

4

Apr

Sun

5

Apr

Mon

6

Apr

Tue

7

Apr

Wed

8

Apr

Thu

9

Apr

Fri

10

Apr

Sat

11

Apr

Sun

12

Apr

Mon

13

Apr

Tue

14

Apr

Wed

15

Apr

Thu

16

Apr

Fri

17

Apr

Sat

18

Apr

Sun

19

Apr

Mon

20

Apr

Tue

21

Apr

By clicking “Get pre-qualified” and/or 'Submit' you are expressly consenting, in writing, to receive telemarketing and other messages, including artificial or prerecorded voices, via automated calls or texts from jumprealty.ca and up.mortgages at the number you provided above. This consent is not required to purchase any good or service. Message and data rates may apply, frequency varies. Text HELP for help or STOP to cancel. More details in Terms of Use and Privacy Policy.

Listing Agency:  Keller Williams Realty Centres

* Data is provided courtesy of PROPTX. The information provided herein must only be used by consumers that have a bona fide interest in the purchase, sale, or lease of real estate and may not be used for any commercial purpose or any other purpose. The information is deemed reliable but is not guaranteed accurate by PROPTX.

Hospital
Parks
Schools
Place of Worship
Please select an amenity above to view a list.

Recommended Properties

Loading...
1020 Goderich Street Unit# 122
Saugeen Shores , Ontario
$875
Get more info