For Sale - 104 Glenwood Place, West Grey, Ontario

Est payment $3,116/mo
Views   1
Time on Jump  34 day
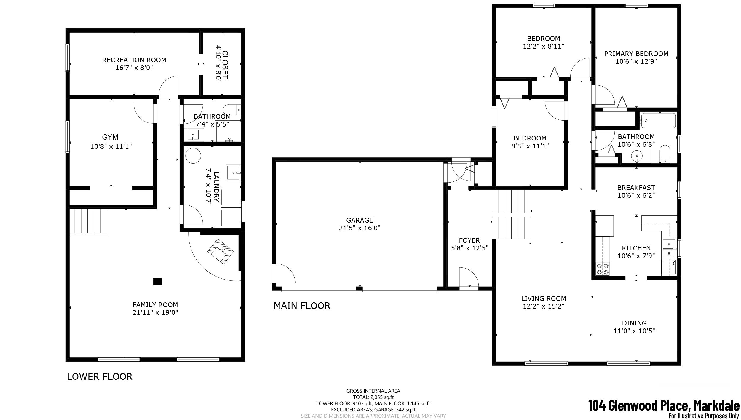
  • Spacious side-split home with 3+2 bedrooms, perfect for families and guests.
  • Generous 0.35-acre lot with mature trees and a fully fenced backyard.
  • Bright main level with warm wood flooring and potential for personalization.
  • Finished lower level featuring two bedrooms and a stylish bathroom.
  • Quiet street minutes from local amenities and year-round recreation.



Welcome to this spacious and versatile 3+2 bedroom side-split, ideally located on a quiet street at the edge of markdale. Set on a generous 0. 35-acre lot with mature trees and a fully fenced backyard, the property offers exceptional outdoor space for families, pets, and entertaining. The expansive yard and back deck create a private setting for summer barbecues, evening relaxation, or watching kids play. Inside, the bright main level features warm wood flooring, a comfortable living and dining area, and a functional kitchen with great potential to personalize over time. Three main-floor bedrooms and a full 4-piece bath provide convenient family living, while fresh paint throughout adds a clean, updated feel. The finished lower level adds valuable flexibility with two additional bedrooms, a stylish 3-piece bathroom with glass shower, and a dedicated laundry area, ideal for guests, teens, a home office, or hobby space. Thoughtfully maintained for efficiency and comfort, the home includes a durable hy-grade steel roof, added insulation, natural gas fireplace with baseboard heating, and an owned water softener. Enjoy peaceful small-town living just minutes from markdale's hospital, schools, shopping, dining, parks, and library, with owen sound only 35 minutes away. Surrounded by year-round recreation including hiking, skiing, fishing, and snowmobiling, this property offers space, privacy, and lifestyle in a welcoming community setting.
Listing IDX12827098
Address104 Glenwood Place
CityWest Grey, Ontario
Price$649,000
Bed / Bath5 / 2 Full
StyleSidesplit, Detached
ConstructionBrick, Vinyl Siding
Land Size0.35
TypeResidential
StatusFor Sale
Subtype DetachedIndoor Features Water Softener, In-Law CapabilityOutdoor Features Year Round Living, Recreational Area, Landscaped, DeckAmenities Golf, Hospital, Park, Rec./Commun.Centre, SchoolOwnership FreeholdWaterfront NoneBasement Full, FinishedFoundation Poured ConcreteHeating / Cooling BaseboardHeating Fuel ElectricSewer Septic
Parking 10.00
ASAP

Fri

3

Apr

Sat

4

Apr

Sun

5

Apr

Mon

6

Apr

Tue

7

Apr

Wed

8

Apr

Thu

9

Apr

Fri

10

Apr

Sat

11

Apr

Sun

12

Apr

Mon

13

Apr

Tue

14

Apr

Wed

15

Apr

Thu

16

Apr

Fri

17

Apr

Sat

18

Apr

Sun

19

Apr

Mon

20

Apr

Tue

21

Apr

Wed

22

Apr

Thu

23

Apr

Fri

24

Apr

Sat

25

Apr

Sun

26

Apr

Mon

27

Apr

Tue

28

Apr

Wed

29

Apr

Thu

30

Apr

Fri

1

May

By clicking “Get pre-qualified” and/or 'Submit' you are expressly consenting, in writing, to receive telemarketing and other messages, including artificial or prerecorded voices, via automated calls or texts from jumprealty.ca and up.mortgages at the number you provided above. This consent is not required to purchase any good or service. Message and data rates may apply, frequency varies. Text HELP for help or STOP to cancel. More details in Terms of Use and Privacy Policy.

Listing Agency:  Century 21 Millennium Inc.

* Data is provided courtesy of PROPTX. The information provided herein must only be used by consumers that have a bona fide interest in the purchase, sale, or lease of real estate and may not be used for any commercial purpose or any other purpose. The information is deemed reliable but is not guaranteed accurate by PROPTX.

Hospital
Parks
Schools
Place of Worship
Please select an amenity above to view a list.

Recommended Properties

Loading...
104 Glenwood Place
West Grey , Ontario
5 2 $649,000
Get more info