For Lease - 1050 LeGresley Way, Burlington, Ontario

Views   1
Time on Jump  188 day
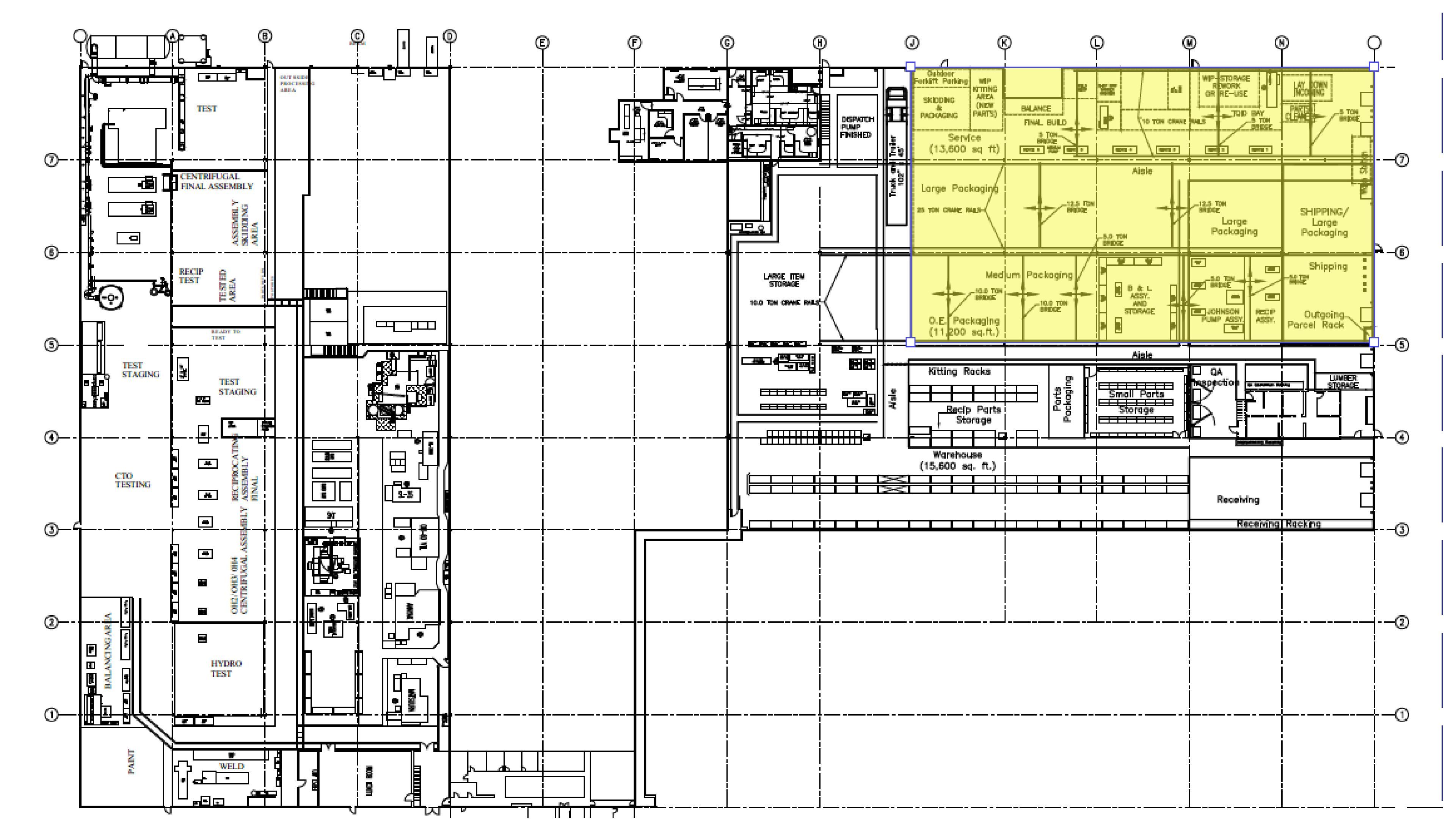
  • Flexible lease options for office and warehouse space in prime industrial area.
  • Includes 4 truck-level and 2 drive-in shipping doors for easy access.
  • Ample parking available with over 30 spots for convenience.
  • Spacious warehouse with 21' clear height for various operations.
  • Equipped with three cranes capable of lifting 10-25 tons.
Short or longer term office and warehouse lease opportunity in prime location of industrial burlington. Includes 4 truck-level and 2 drive-in shipping doors, 30+ parking spots 21' warehouseclear height. Three cranes currently in place with capacity of 10-25 tons with approximately 17' clear height under hook.
Listing IDW9419842
Address1050 LeGresley Way
CityBurlington, Ontario
Lease$16
StyleIndustrial
TypeIndustrial/Commercial
StatusFor Lease
Subtype IndustrialOwnership LeaseholdHeating / Cooling Gas Forced Air OpenSewer Sanitary+Storm
ASAP

Wed

25

Mar

Thu

26

Mar

Fri

27

Mar

Sat

28

Mar

Sun

29

Mar

Mon

30

Mar

Tue

31

Mar

Wed

1

Apr

Thu

2

Apr

Fri

3

Apr

Sat

4

Apr

Sun

5

Apr

Mon

6

Apr

Tue

7

Apr

Wed

8

Apr

Thu

9

Apr

Fri

10

Apr

Sat

11

Apr

Sun

12

Apr

Mon

13

Apr

Tue

14

Apr

Wed

15

Apr

Thu

16

Apr

Fri

17

Apr

Sat

18

Apr

Sun

19

Apr

Mon

20

Apr

Tue

21

Apr

Wed

22

Apr

By clicking “Get pre-qualified” and/or 'Submit' you are expressly consenting, in writing, to receive telemarketing and other messages, including artificial or prerecorded voices, via automated calls or texts from jumprealty.ca and up.mortgages at the number you provided above. This consent is not required to purchase any good or service. Message and data rates may apply, frequency varies. Text HELP for help or STOP to cancel. More details in Terms of Use and Privacy Policy.

Listing Agency:  COLLIERS

* Data is provided courtesy of PROPTX. The information provided herein must only be used by consumers that have a bona fide interest in the purchase, sale, or lease of real estate and may not be used for any commercial purpose or any other purpose. The information is deemed reliable but is not guaranteed accurate by PROPTX.

Hospital
Parks
Schools
Place of Worship
Please select an amenity above to view a list.

Recommended Properties

Loading...
1050 Legresley Way
Burlington , Ontario
$16
Get more info