For Lease - 1075 Queen Street, Toronto, Ontario

Views   5
Time on Jump  59 day
  • Prime retail space in the trendy Trinity-Bellwoods neighborhood.
  • High foot traffic area near popular cafes and shops.
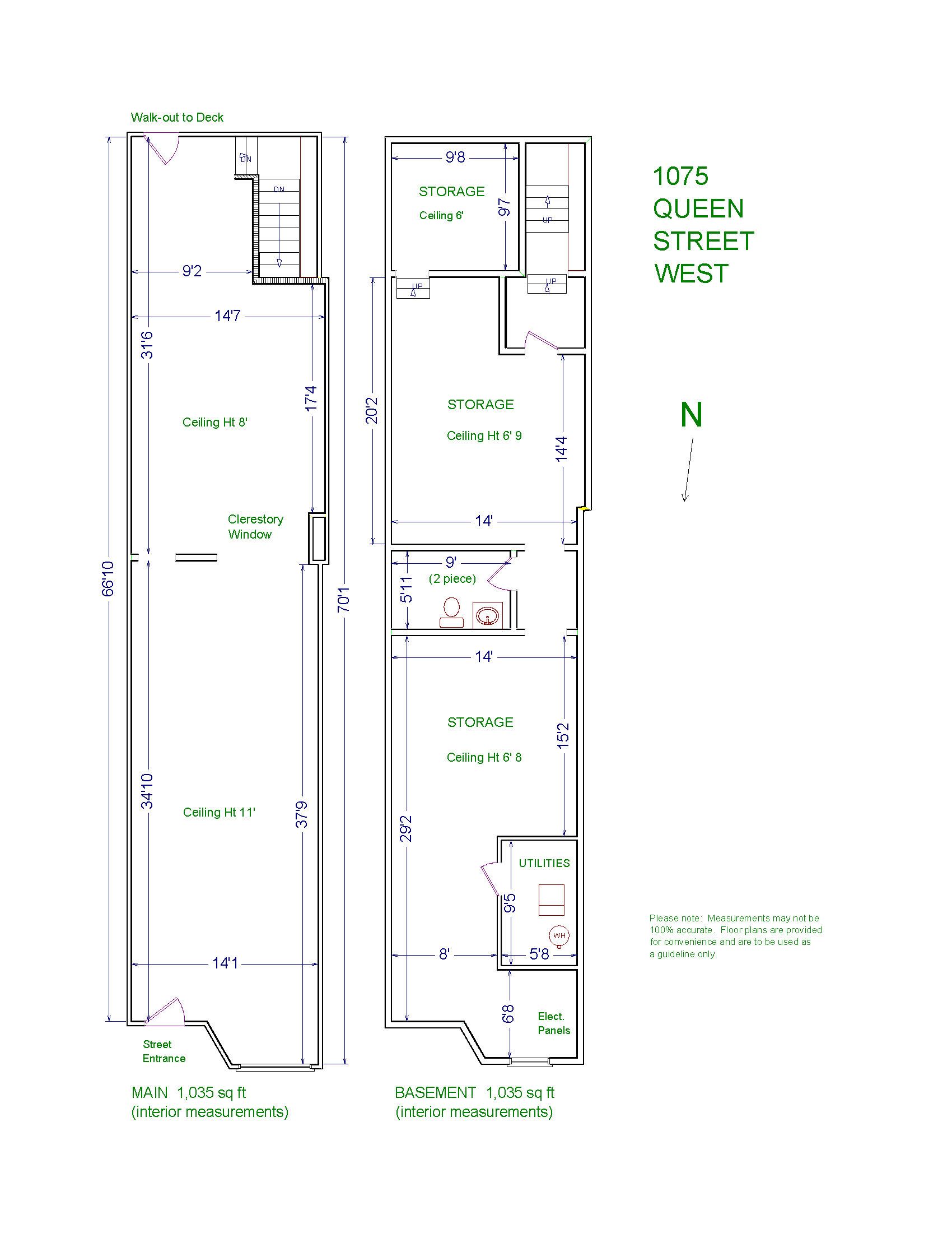
  • 2,070 sq ft total with customizable open concept layout.
  • Large storefront window and skylight for great visibility and natural light.
  • Easy access to public transit and close to Trinity Bellwoods Park.
Pop-up stores welcome! Prime retail opportunity at 1075 queen st west in toronto's iconic "you've changed" building nestled in the heart of the trendy trinity-bellwoods neighborhood. This high-traffic, highly sought-after location offers a unique opportunity for your business to thrive in one of toronto's most vibrant areas. Surrounded by bustling cafes, boutique shops, and local restaurants, this space benefits from both foot traffic and neighborhood charm. This exceptional space offers 2,070 sq ft of total space, with 1,035 sq ft on the main floor and an additional 1,035 sq ft in the basement. This versatile space is perfect for a variety of retail uses. The large storefront window, provides excellent visibility to the high foot traffic along queen st w, and a skylight that floods the space with natural light. The open concept floor plan allows for easy customization to fit your business needs. Public transit options are easily accessible, including streetcar routes, and the space is within walking distance of the ever-popular trinity bellwoods park. This is more than just a retail space-it's an opportunity to position your brand in one of the city's most dynamic and desirable locations. Don't miss out on the chance to be part of the pulse of trinity-bellwoods!
Listing IDC12750152
Address1075 Queen Street
CityToronto, Ontario
Lease$57
StyleCommercial Retail
TypeIndustrial/Commercial
StatusFor Lease
Subtype Commercial RetailCommunity Features Public TransitOwnership LeaseholdBasement 1Heating / Cooling Gas Forced Air Open
ASAP

Fri

3

Apr

Sat

4

Apr

Sun

5

Apr

Mon

6

Apr

Tue

7

Apr

Wed

8

Apr

Thu

9

Apr

Fri

10

Apr

Sat

11

Apr

Sun

12

Apr

Mon

13

Apr

Tue

14

Apr

Wed

15

Apr

Thu

16

Apr

Fri

17

Apr

Sat

18

Apr

Sun

19

Apr

Mon

20

Apr

Tue

21

Apr

Wed

22

Apr

Thu

23

Apr

Fri

24

Apr

Sat

25

Apr

Sun

26

Apr

Mon

27

Apr

Tue

28

Apr

Wed

29

Apr

Thu

30

Apr

Fri

1

May

By clicking “Get pre-qualified” and/or 'Submit' you are expressly consenting, in writing, to receive telemarketing and other messages, including artificial or prerecorded voices, via automated calls or texts from jumprealty.ca and up.mortgages at the number you provided above. This consent is not required to purchase any good or service. Message and data rates may apply, frequency varies. Text HELP for help or STOP to cancel. More details in Terms of Use and Privacy Policy.

Listing Agency:  BOSLEY REAL ESTATE LTD.

* Data is provided courtesy of PROPTX. The information provided herein must only be used by consumers that have a bona fide interest in the purchase, sale, or lease of real estate and may not be used for any commercial purpose or any other purpose. The information is deemed reliable but is not guaranteed accurate by PROPTX.

Hospital
Parks
Schools
Place of Worship
Please select an amenity above to view a list.

Recommended Properties

Loading...
1075 Queen Street
Toronto , Ontario
$57
Get more info