For Sale - 108 Nelson Street, Barrie, Ontario

Est payment $4,801/mo
Views   1
Time on Jump  1 days
  • Fully renovated legal duplex with an additional garden suite for extra income.
  • All three units currently rented with top market rent for maximum profit.
  • Spacious 3-bedroom upper unit and bright 2-bedroom lower unit available.
  • Modern kitchens with stainless appliances and quartz countertops in all units.
  • Parking available for 5 vehicles in a desirable, family-friendly neighborhood.



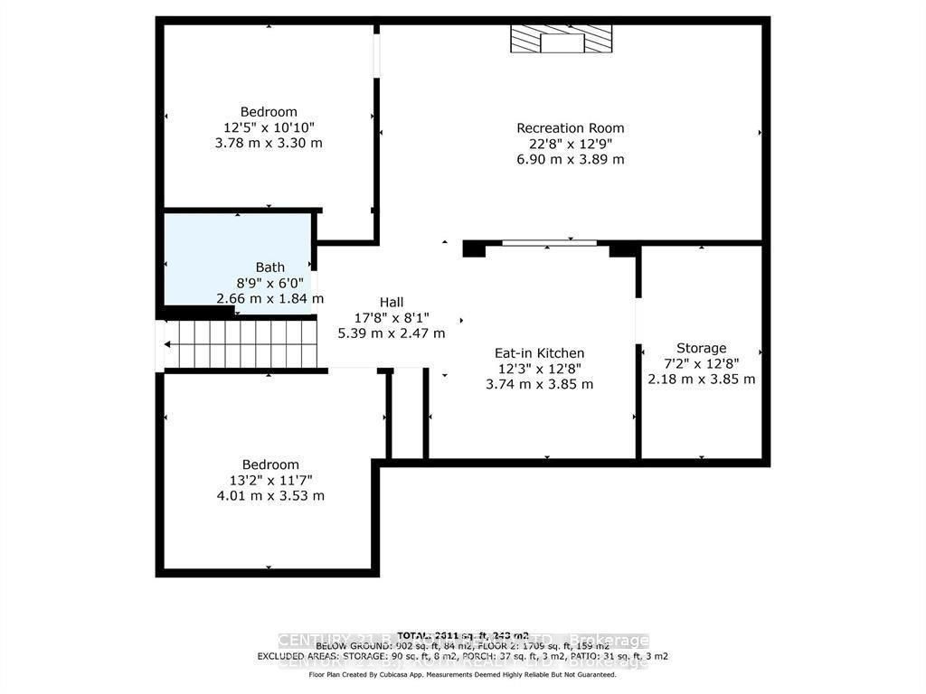
This is one of the cleanest, most turn-key investment properties you'll find in barrie. This fully renovated legal duplex with an additional garden suite located in the desirable east end offers unmatched flexibility and income potential. Very rare opportunity with all three units rented out with top market rent. Whether you're an investor or looking to live in one unit and rent out the other two, this property checks all the boxes. Situated on a large lot, the main home features a spacious 3-bedroom upper unit and a bright 2-bedroom lower unit with 8-ft ceilings. The separate 2-bedroom garden suite at the back adds even more rental income. No expense was spared in the renovations everything has been updated from top to bottom, including windows, insulation, electrical, plumbing, kitchens, bathrooms, independent laundry and flooring throughout. Each kitchen is outfitted with modern finishes, stainless appliances and quartz countertops, giving a sleek, upscale feel. Enjoy peace of mind with a+ tenants already in place, all paying top market rent. With parking for 5 vehicles and located in a sought after , family-friendly neighbourhood.
Listing IDS13051258
Address108 Nelson Street
CityBarrie, Ontario
Price$999,900
Bed / Bath7 / 3 Full
StyleBungalow, Multiplex
ConstructionBrick
TypeMulti-Family
StatusFor Sale
Subtype MultiplexIndoor Features Carpet Free, In-Law Capability, Guest AccommodationsAmenities Hospital, Lake/Pond, Other, Public Transit, Rec./Commun.CentreOwnership FreeholdBasement Finished, Separate EntranceFoundation Poured ConcreteHeating / Cooling Forced AirHeating Fuel GasSewer Sewer
Parking 5.00
ASAP

Thu

30

Apr

Fri

1

May

Sat

2

May

Sun

3

May

Mon

4

May

Tue

5

May

Wed

6

May

Thu

7

May

Fri

8

May

Sat

9

May

Sun

10

May

Mon

11

May

Tue

12

May

Wed

13

May

Thu

14

May

Fri

15

May

Sat

16

May

Sun

17

May

Mon

18

May

Tue

19

May

Wed

20

May

Thu

21

May

Fri

22

May

Sat

23

May

Sun

24

May

Mon

25

May

Tue

26

May

Wed

27

May

Thu

28

May

By clicking “Get pre-qualified” and/or 'Submit' you are expressly consenting, in writing, to receive telemarketing and other messages, including artificial or prerecorded voices, via automated calls or texts from jumprealty.ca and up.mortgages at the number you provided above. This consent is not required to purchase any good or service. Message and data rates may apply, frequency varies. Text HELP for help or STOP to cancel. More details in Terms of Use and Privacy Policy.

Listing Agency:  CENTURY 21 B.J. ROTH REALTY LTD.

* Data is provided courtesy of PROPTX. The information provided herein must only be used by consumers that have a bona fide interest in the purchase, sale, or lease of real estate and may not be used for any commercial purpose or any other purpose. The information is deemed reliable but is not guaranteed accurate by PROPTX.

Hospital
Parks
Schools
Place of Worship
Please select an amenity above to view a list.

Recommended Properties

Loading...
108 Nelson Street
Barrie , Ontario
7 3 $999,900
Get more info