For Lease - 109 Vanderhoof Avenue Unit# 203, Toronto, Ontario

Views   1
Time on Jump  57 day
  • Premier office space with traditional and modern finishes.
  • Bright interior with natural light and high ceilings.
  • Flexible layout with private boardrooms and open areas.
  • Includes a large kitchen and private washroom.
  • Convenient location with ample parking and signage opportunities.
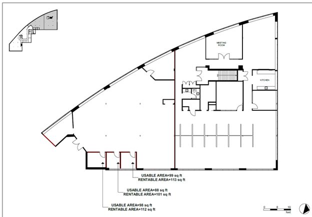
Fabulous second floor premier office space combining traditional post and beam interior with modern high end finishes. Plenty of natural light, featuring private entrance, high ceilings and corner exposure on two sides. Extremely flexible space with private boardrooms. Large open areas and private offices. Also includes large kitchen and private washroom. Great signage. Plenty of parking. Conveniently located just minutes from laird and eglinton. Space could be demised into two equal sized units. See attached drawings.
Listing IDC12755718
Address109 Vanderhoof Avenue Unit# 203
CityToronto, Ontario
Lease$21
Bath1 Full
StyleOffice
TypeIndustrial/Commercial
StatusFor Lease
Subtype OfficeOwnership LeaseholdHeating / Cooling Gas Forced Air ClosedSewer Sanitary+Storm
ASAP

Fri

3

Apr

Sat

4

Apr

Sun

5

Apr

Mon

6

Apr

Tue

7

Apr

Wed

8

Apr

Thu

9

Apr

Fri

10

Apr

Sat

11

Apr

Sun

12

Apr

Mon

13

Apr

Tue

14

Apr

Wed

15

Apr

Thu

16

Apr

Fri

17

Apr

Sat

18

Apr

Sun

19

Apr

Mon

20

Apr

Tue

21

Apr

Wed

22

Apr

Thu

23

Apr

Fri

24

Apr

Sat

25

Apr

Sun

26

Apr

Mon

27

Apr

Tue

28

Apr

Wed

29

Apr

Thu

30

Apr

Fri

1

May

By clicking “Get pre-qualified” and/or 'Submit' you are expressly consenting, in writing, to receive telemarketing and other messages, including artificial or prerecorded voices, via automated calls or texts from jumprealty.ca and up.mortgages at the number you provided above. This consent is not required to purchase any good or service. Message and data rates may apply, frequency varies. Text HELP for help or STOP to cancel. More details in Terms of Use and Privacy Policy.

Listing Agency:  HARVEY KALLES REAL ESTATE LTD.

* Data is provided courtesy of PROPTX. The information provided herein must only be used by consumers that have a bona fide interest in the purchase, sale, or lease of real estate and may not be used for any commercial purpose or any other purpose. The information is deemed reliable but is not guaranteed accurate by PROPTX.

Hospital
Parks
Schools
Place of Worship
Please select an amenity above to view a list.

Recommended Properties

Loading...
109 Vanderhoof Avenue Unit# 203
Toronto , Ontario
1 $21
Get more info