For Sale - 1091 Burgundy Lane, Orleans - Convent Glen and Area, Ontario

Est payment $3,169/mo
Views   6
Time on Jump  14 day
  • Fully detached home in a prime location near LRT and river pathways.
  • Bright and updated living spaces with a beautifully renovated kitchen.
  • Private, fenced yard with a deck and heated above ground pool.
  • Spacious bedrooms, including a primary retreat with a newly renovated ensuite.
  • Finished lower level adds extra living space and storage options.



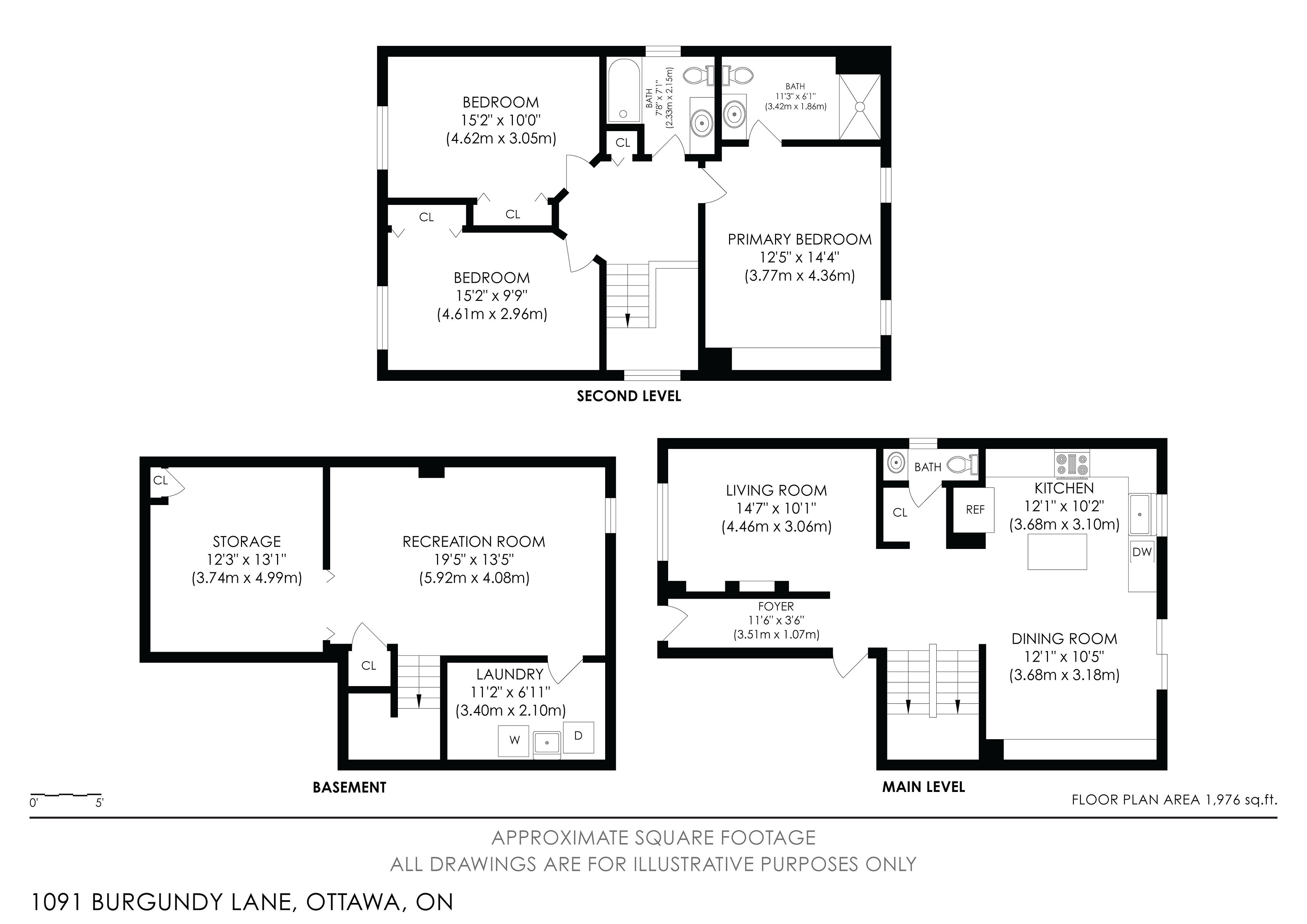
1091 burgundy lane has been relisted and repositioned to offer exceptional value for a fully detached, move-in ready home in one of orléans' most connected locations, just steps to the lrt, ottawa river pathways, parks, and minutes to highway 174 for an easy downtown commute. From the moment you walk in, the home feels warm, updated, and functional, with bright living spaces and a beautifully renovated kitchen that truly anchors the main level, featuring two tone cabinetry, a butcher block island, gas range, stainless appliances, sleek range hood, and a statement pot rack, all flowing seamlessly into a spacious dining area with oversized sliding doors that open to a private, fully fenced yard complete with deck and heated above ground pool. Upstairs offers three generous bedrooms including a spacious primary retreat with its own newly renovated ensuite featuring a glass shower completed in 2026, while both secondary bedrooms provide comfortable space for family, guests, or home office use, enhanced by brand new carpet throughout the second level. The finished lower level adds valuable additional living space with a large recreation room, dedicated laundry area, and ample storage. Numerous updates provide peace of mind including windows in 2014, front door in 2022, driveway resurfacing in 2024, pool sand filter in 2024, brand new garage door in 2025, and new fridge and stove in 2026. Detached homes with this level of updates, private outdoor space, and commuter convenience are increasingly difficult to find at this price point, making this a standout opportunity in today's market. Book a private showing before it's gone. Open house sunday, april 12, 2-4 pm!
Listing IDX12928116
Address1091 Burgundy Lane
CityOrleans - Convent Glen and Area, Ontario
Price$659,900
Bed / Bath3 / 3 Full
Style2-Storey, Detached
ConstructionBrick, Aluminum Siding
TypeResidential
StatusFor Sale
Subtype DetachedIndoor Features Auto Garage Door Remote, Water Heater OwnedOutdoor Features DeckAmenities Fenced Yard, Public TransitOwnership FreeholdViews PoolBasement Full, Partially FinishedFoundation Poured ConcreteHeating / Cooling Forced AirHeating Fuel GasSewer Sewer
Parking 5.00
ASAP

Sat

11

Apr

Sun

12

Apr

Mon

13

Apr

Tue

14

Apr

Wed

15

Apr

Thu

16

Apr

Fri

17

Apr

Sat

18

Apr

Sun

19

Apr

Mon

20

Apr

Tue

21

Apr

Wed

22

Apr

Thu

23

Apr

Fri

24

Apr

Sat

25

Apr

Sun

26

Apr

Mon

27

Apr

Tue

28

Apr

Wed

29

Apr

Thu

30

Apr

Fri

1

May

Sat

2

May

Sun

3

May

Mon

4

May

Tue

5

May

Wed

6

May

Thu

7

May

Fri

8

May

Sat

9

May

By clicking “Get pre-qualified” and/or 'Submit' you are expressly consenting, in writing, to receive telemarketing and other messages, including artificial or prerecorded voices, via automated calls or texts from jumprealty.ca and up.mortgages at the number you provided above. This consent is not required to purchase any good or service. Message and data rates may apply, frequency varies. Text HELP for help or STOP to cancel. More details in Terms of Use and Privacy Policy.

Listing Agency:  RE/MAX HALLMARK REALTY GROUP

* Data is provided courtesy of PROPTX. The information provided herein must only be used by consumers that have a bona fide interest in the purchase, sale, or lease of real estate and may not be used for any commercial purpose or any other purpose. The information is deemed reliable but is not guaranteed accurate by PROPTX.

Hospital
Parks
Schools
Place of Worship
Please select an amenity above to view a list.

Recommended Properties

Loading...
1091 Burgundy Lane
Orleans - Convent Glen and Area , Ontario
3 3 $659,900
Get more info