For Sale - 11 Patterson Road Unit# 24 & 25, Barrie, Ontario

Est payment $4,962/mo
Views   1
Time on Jump  35 day
  • Professional office space located minutes from downtown Barrie and Hwy 400.
  • Recently renovated with modern finishes and flexibility for various professionals.
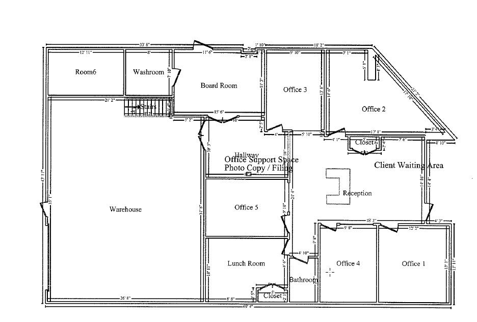
  • Includes bright boardroom, multiple offices, and a welcoming reception area.
  • Approximate 740 SF warehouse space with high ceilings and roll-up door.
  • Monthly condo fees cover essential services for convenience and peace of mind.



Stop paying someone else's mortgage -- own your workspace in the heart of barrie, just minutes from downtown and hwy 400. This professionally finished office spans two commercial condo units and was fully renovated in 2019. The front office area features a welcoming reception, waiting area, bright boardroom with custom glass doors, staff/lunch room, four private offices, open work area, and two washrooms -- ideal for a wide range of professional users. At the rear, utilize an approximate 740 sf of warehouse space with a 19' clear height and a 10' x 12' roll-up door, plus an additional 182 sf mezzanine for extra storage. Comfort and efficiency are covered with ductless heat pumps in the front offices for added cooling (2020), updated central air (2020), and a new forced-air natural gas furnace (2023). Included are a built-in custom desk and hutch in the angled office, custom blinds throughout, fridge, dishwasher, microwave, hwt (owned) and boardroom table. Additional furnishings (including copier) may be available, subject to negotiation. Flexible possession. Monthly condo fees of $775. 93 include water/sewer, snow removal, landscaping, insurance, management, non-exclusive parking, and building envelope maintenance.
Listing IDS12670086
Address11 Patterson Road Unit# 24 & 25
CityBarrie, Ontario
Price$1,001,000
Bath2 Full
StyleOffice
TypeIndustrial/Commercial
StatusFor Sale
Subtype OfficeCommunity Features Major Highway, Public TransitHeating / Cooling Gas Forced Air ClosedHeating Fuel GasSewer Sanitary+Storm
ASAP

Wed

11

Feb

Thu

12

Feb

Fri

13

Feb

Sat

14

Feb

Sun

15

Feb

Mon

16

Feb

Tue

17

Feb

Wed

18

Feb

Thu

19

Feb

Fri

20

Feb

Sat

21

Feb

Sun

22

Feb

Mon

23

Feb

Tue

24

Feb

Wed

25

Feb

Thu

26

Feb

Fri

27

Feb

Sat

28

Feb

Sun

1

Mar

Mon

2

Mar

Tue

3

Mar

Wed

4

Mar

Thu

5

Mar

Fri

6

Mar

Sat

7

Mar

Sun

8

Mar

Mon

9

Mar

Tue

10

Mar

Wed

11

Mar

By clicking “Get pre-qualified” and/or 'Submit' you are expressly consenting, in writing, to receive telemarketing and other messages, including artificial or prerecorded voices, via automated calls or texts from jumprealty.ca and up.mortgages at the number you provided above. This consent is not required to purchase any good or service. Message and data rates may apply, frequency varies. Text HELP for help or STOP to cancel. More details in Terms of Use and Privacy Policy.

Listing Agency:  SUTTON GROUP INCENTIVE REALTY INC.
Hospital
Parks
Schools
Place of Worship
Please select an amenity above to view a list.

Recommended Properties

Loading...
11 Patterson Road Unit# 24 & 25
Barrie , Ontario
2 $1,001,000
Get more info