For Lease - 110 Charles Street Unit# 410, Toronto, Ontario

Views   2
Time on Jump  46 day
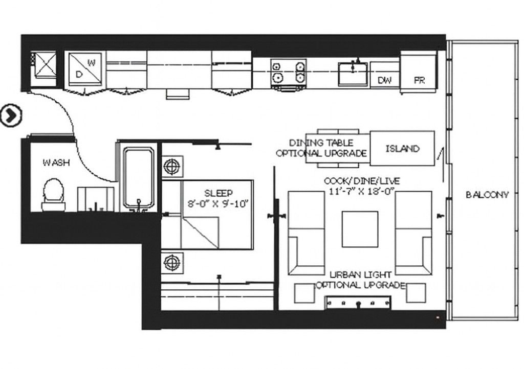
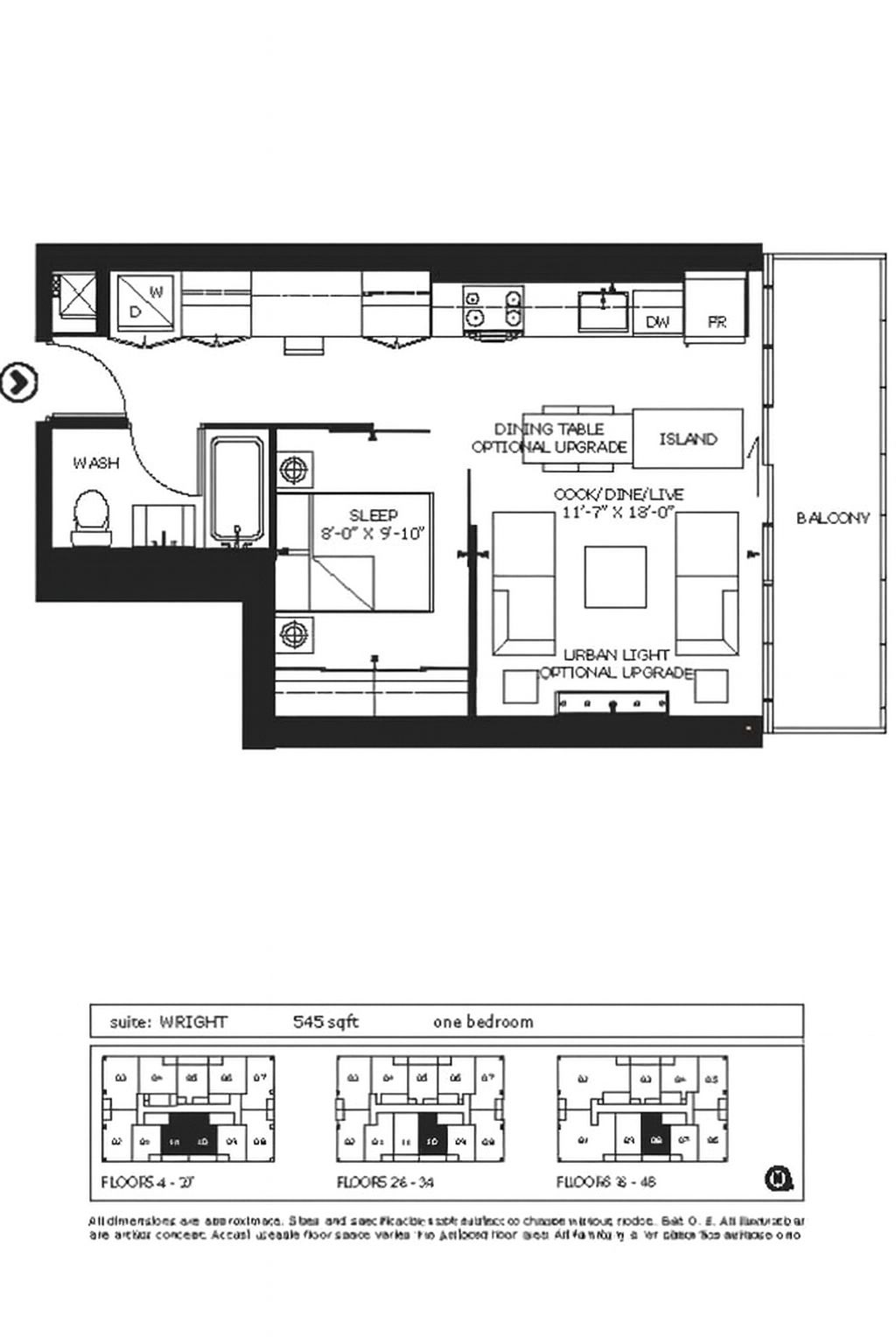
  • Upscale downtown unit with floor to ceiling windows for natural light.
  • Custom kitchen island with pull out dining table and upgraded appliances.
  • Thoughtfully designed office/vanity nook for working or getting ready.
  • Building offers premium amenities like a gym, library, and outdoor pool.
  • Steps away from the subway, cafés, shopping, and vibrant parks.
Experience upscale downtown living at 110 charles street east, where modern design meets everyday convenience in one of toronto's most desirable neighbourhoods. This beautifully appointed unit features floor to ceiling windows that fill the space with natural light, a kitchen island with a pull out dining table, upgraded appliances, in suite washer and dryer, custom window blinds, and a thoughtfully designed office/vanity nook ideal for working from home or getting ready in style. The building elevates your lifestyle with premium amenities including a fully equipped gym, games room, party room, library, outdoor pool, guest suites, and 24-hour concierge service. Nestled just steps from the bloor/yonge subway hub, chic cafés, boutique shopping, top-rated restaurants, lush parks, and the vibrant energy of yorkville, this location offers unmatched walkability and convenience. It's the perfect blend of luxury, comfort, and urban living.
Listing IDC12792762
Address110 Charles Street Unit# 410
CityToronto, Ontario
Lease$2,350
Bed / Bath1 / 1 Full
StyleApartment, Condo Apartment
ConstructionConcrete
TypeCondominium
StatusFor Lease
Subtype Condo ApartmentIndoor Features Carpet Free, In-Suite LaundryInclusions Central Air Conditioning, Common Elements, Heat, Water, Recreation FacilityOwnership LeaseholdViews CityBasement NoneHeating / Cooling Forced AirHeating Fuel Electric
ASAP

Sun

5

Apr

Mon

6

Apr

Tue

7

Apr

Wed

8

Apr

Thu

9

Apr

Fri

10

Apr

Sat

11

Apr

Sun

12

Apr

Mon

13

Apr

Tue

14

Apr

Wed

15

Apr

Thu

16

Apr

Fri

17

Apr

Sat

18

Apr

Sun

19

Apr

Mon

20

Apr

Tue

21

Apr

Wed

22

Apr

Thu

23

Apr

Fri

24

Apr

Sat

25

Apr

Sun

26

Apr

Mon

27

Apr

Tue

28

Apr

Wed

29

Apr

Thu

30

Apr

Fri

1

May

Sat

2

May

Sun

3

May

By clicking “Get pre-qualified” and/or 'Submit' you are expressly consenting, in writing, to receive telemarketing and other messages, including artificial or prerecorded voices, via automated calls or texts from jumprealty.ca and up.mortgages at the number you provided above. This consent is not required to purchase any good or service. Message and data rates may apply, frequency varies. Text HELP for help or STOP to cancel. More details in Terms of Use and Privacy Policy.

Listing Agency:  ROYAL LEPAGE SIGNATURE REALTY

* Data is provided courtesy of PROPTX. The information provided herein must only be used by consumers that have a bona fide interest in the purchase, sale, or lease of real estate and may not be used for any commercial purpose or any other purpose. The information is deemed reliable but is not guaranteed accurate by PROPTX.

Hospital
Parks
Schools
Place of Worship
Please select an amenity above to view a list.

Recommended Properties

Loading...
110 Charles Street Unit# 410
Toronto , Ontario
1 1 $2,350
Get more info