For Sale - 1100 South Service Road Unit# 104, Hamilton, Ontario

Est payment $6,962/mo
Views   1
Time on Jump  32 day
  • Bright industrial unit with excellent visibility facing the QEW.
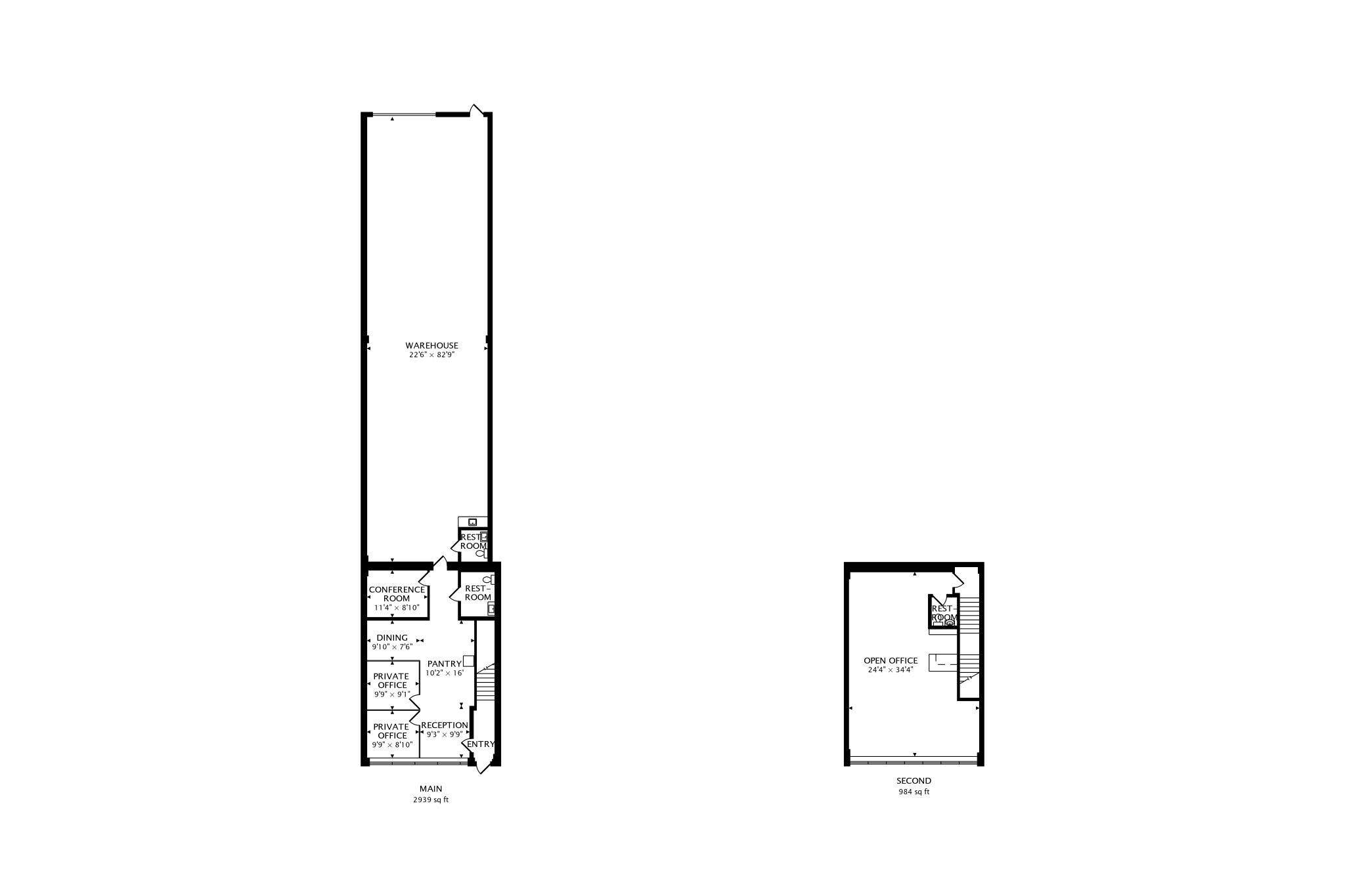
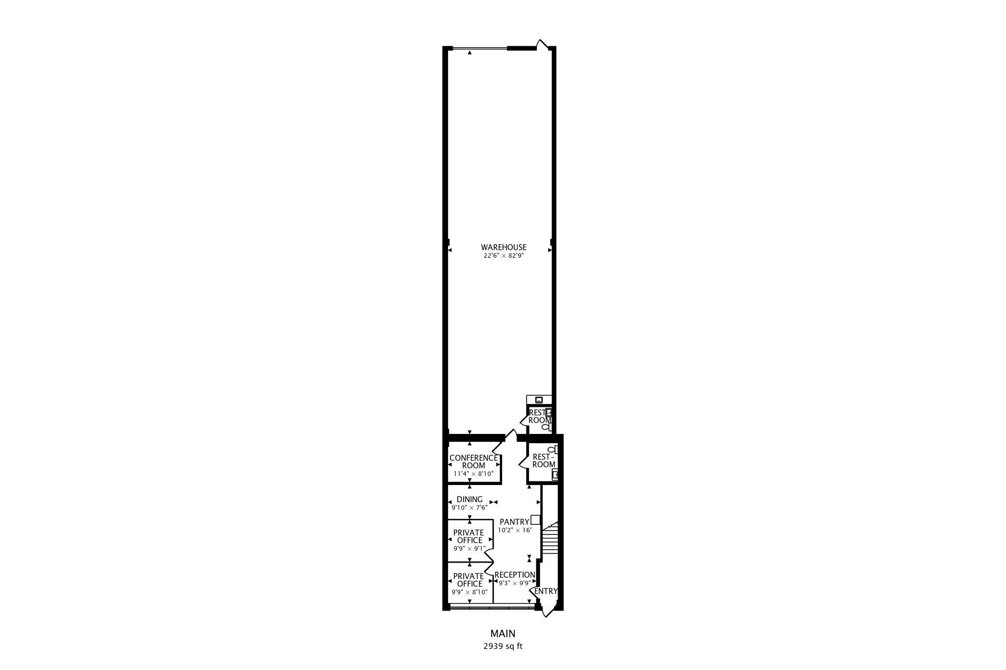
  • Spacious 3,803 sq. ft. with both warehouse and office areas.
  • Includes a separate second-floor office space with air conditioning.
  • Four dedicated parking spots plus additional on-site parking available.
  • Conveniently located near amenities, Costco, and the GO Station.



Terrific clean bright industrial unit facing the qew in stoney creek with excellent signage and exposure. The space is part of a modern multi unit industrial/commercial/office complex. The total size is 3,803+/- sq. Ft., consisting of approximately 3,000 sq. Ft. On the ground floor: 2,050+/- sq. Ft. Of industrial/warehouse space (with a washroom and kitchenette) and 950+/- sq. Ft. Of open-concept, air-conditioned, collaborative office space with 1 washroom and 1 private office. There is a separate 800+/- sq. Ft. Office space on the second floor; it is bright, open concept, air conditioned and includes a 3rd washroom. 4 parking spots included plus plenty of in-common, on-site parking. The unit has a 14'h x 12'w drive in door, 600 volt hydro service, radiant heat, and is just minutes from the fruitland road/qew exit. Plenty of amenities are nearby and in close proximity to winona crossings, costco, the go station, and more. Don't miss this remarkable opportunity.
Listing IDX12833202
Address1100 South Service Road Unit# 104
CityHamilton, Ontario
Price$1,449,900
Bath3 Full
StyleIndustrial
TypeIndustrial/Commercial
StatusFor Sale
Subtype IndustrialCommunity Features Major Highway, Public TransitHeating / Cooling Gas Forced Air OpenSewer Sanitary+Storm
ASAP

Sat

4

Apr

Sun

5

Apr

Mon

6

Apr

Tue

7

Apr

Wed

8

Apr

Thu

9

Apr

Fri

10

Apr

Sat

11

Apr

Sun

12

Apr

Mon

13

Apr

Tue

14

Apr

Wed

15

Apr

Thu

16

Apr

Fri

17

Apr

Sat

18

Apr

Sun

19

Apr

Mon

20

Apr

Tue

21

Apr

Wed

22

Apr

Thu

23

Apr

Fri

24

Apr

Sat

25

Apr

Sun

26

Apr

Mon

27

Apr

Tue

28

Apr

Wed

29

Apr

Thu

30

Apr

Fri

1

May

Sat

2

May

By clicking “Get pre-qualified” and/or 'Submit' you are expressly consenting, in writing, to receive telemarketing and other messages, including artificial or prerecorded voices, via automated calls or texts from jumprealty.ca and up.mortgages at the number you provided above. This consent is not required to purchase any good or service. Message and data rates may apply, frequency varies. Text HELP for help or STOP to cancel. More details in Terms of Use and Privacy Policy.

Listing Agency:  RE/MAX ESCARPMENT REALTY INC.

* Data is provided courtesy of PROPTX. The information provided herein must only be used by consumers that have a bona fide interest in the purchase, sale, or lease of real estate and may not be used for any commercial purpose or any other purpose. The information is deemed reliable but is not guaranteed accurate by PROPTX.

Hospital
Parks
Schools
Place of Worship
Please select an amenity above to view a list.

Recommended Properties

Loading...
1100 South Service Road Unit# 104
Hamilton , Ontario
3 $1,449,900
Get more info