For Lease - 1111 HALL Avenue, Windsor, Ontario

Views   3
Time on Jump  2 day
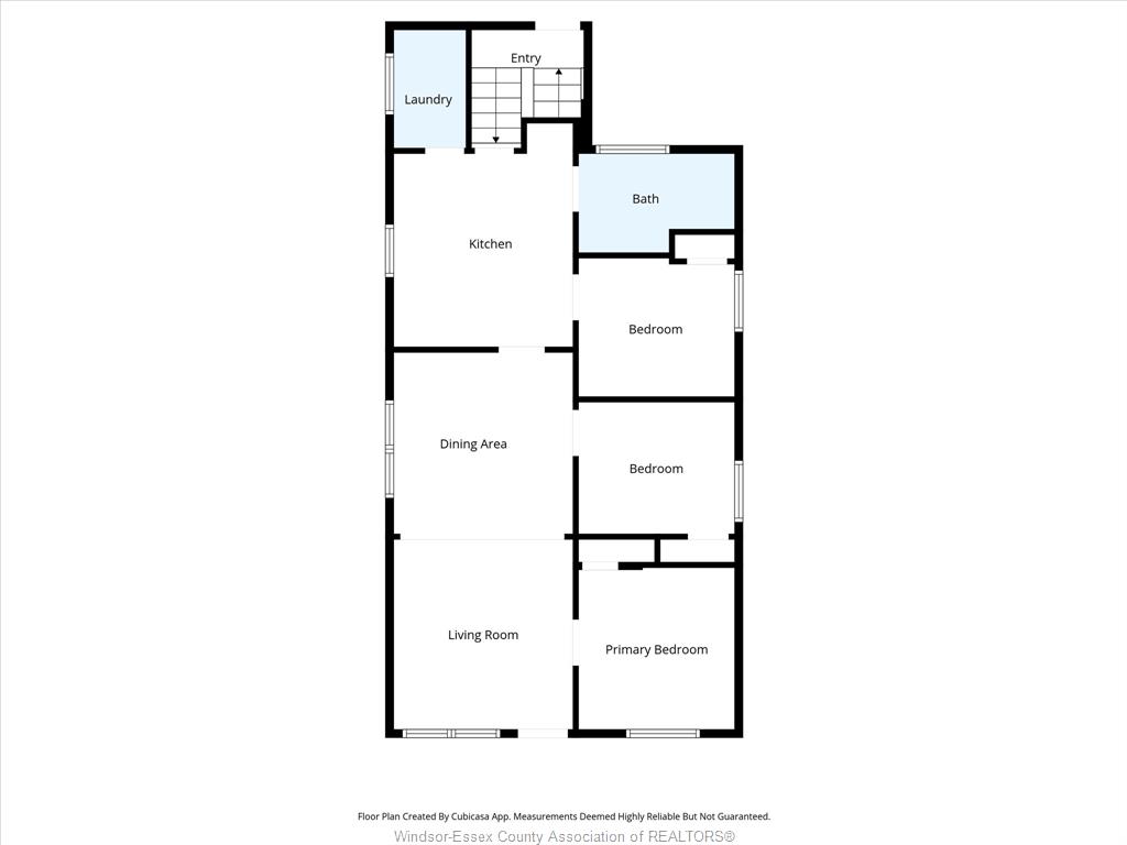
  • Recently updated 5-bedroom, 2-bathroom home with new flooring throughout.
  • Fully finished basement provides extra living space for residents.
  • Two laundry areas for added convenience and easy living.
  • Front drive parking and rear alley access with a garage.
  • Great location near schools, shopping, and public transit.
Welcome to 1111 hall ave, a beautifully updated 5-bedroom, 2-bathroom home available for lease in the heart of windsor. This spacious property features recent renovations throughout, including new flooring and a fully finished basement offering additional living space. The home also includes two separate laundry areas (main floor and basement), ideal for convenience and multi-occupant living. Enjoy the added benefit of both front drive parking and rear alley access with a single-car garage — a rare find on a busy main road. Located close to schools, shopping, public transit, and major amenities, this home offers comfort, space, and unbeatable convenience. A perfect opportunity for families, professionals, or students looking for a move-in ready rental in a prime location. This home is not including utilities.
Listing ID26001996
Address1111 HALL Avenue
CityWindsor, Ontario
Lease$2,600
Bed / Bath5 / 2 Full
StyleRanch
ConstructionAluminum/Vinyl
FlooringHardwood or Engineered Hrwd, Laminate, M…
TypeResidential
StatusFor Lease
Attachment Style DetachedSubtype RanchAcreage 0.080Indoor Features 2nd KitchenOutdoor Features Walking Trails NearbyInclusions Washer, Dryer, Stove, FridgeDriveway Concrete Drive, Finished Drive, Front Drive, Paved Drive, Rear DriveParking Single Garage, Detached GarageAmenities Fenced Yard, Playground Nearby, Shopping NearbyOwnership LeaseholdRental Equipment Hot Water TankAppliances 2 Fridges, 2 Stoves, Dryer, Stove, WasherBasement FullBasement Development FinishedFoundation BlockHeating / Cooling Central Air Conditioning, Forced Air, FurnaceHeating Fuel Natural GasHot Water Tank ElectricUtility Water Municipal WaterSewer Sanitary
Date Listed Jan 26, 2026Days on Market 4
ASAP

Sat

31

Jan

Sun

1

Feb

Mon

2

Feb

Tue

3

Feb

Wed

4

Feb

Thu

5

Feb

Fri

6

Feb

Sat

7

Feb

Sun

8

Feb

Mon

9

Feb

Tue

10

Feb

Wed

11

Feb

Thu

12

Feb

Fri

13

Feb

Sat

14

Feb

Sun

15

Feb

Mon

16

Feb

Tue

17

Feb

Wed

18

Feb

Thu

19

Feb

Fri

20

Feb

Sat

21

Feb

Sun

22

Feb

Mon

23

Feb

Tue

24

Feb

Wed

25

Feb

Thu

26

Feb

Fri

27

Feb

Sat

28

Feb

By clicking “Get pre-qualified” and/or 'Submit' you are expressly consenting, in writing, to receive telemarketing and other messages, including artificial or prerecorded voices, via automated calls or texts from jumprealty.ca and up.mortgages at the number you provided above. This consent is not required to purchase any good or service. Message and data rates may apply, frequency varies. Text HELP for help or STOP to cancel. More details in Terms of Use and Privacy Policy.

Listing Agency:  REALTY ONE GROUP ICONIC BROKERAGE
Hospital
Parks
Schools
Place of Worship
Please select an amenity above to view a list.

Recommended Properties

Loading...
1111 Hall Avenue
Windsor , Ontario
5 2 $2,600
Get more info