For Lease - 1115 Derry Road, Mississauga, Ontario

Views   1
Time on Jump  89 day
  • Four commercial units available for lease, totaling 7488 sq ft.
  • High-visibility plaza on busy Derry Rd with direct street exposure.
  • Flexibility in layout supports various business needs from retail to warehousing.
  • Easy access to Highways 410, 407, and 401 for convenient logistics.
  • Surrounded by established businesses in a thriving commercial area.
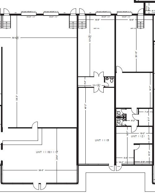
Offering units 1115 (@ 1954sqrft), 1117 (@ 1954sqrft), 1119 (1792sqrft) and 1121 (1788sqrft) are each available either as separate units or all together. This listing describes the total square footage of 7488sqrft for all 4 units. Rare opportunity to lease prime commercial space with direct exposure on derry rd in a high-traffic, high-visibility plaza. These versatile unit is ideal for a wide range of uses including retail, showroom, warehouse, restaurant or catering, grocery, real estate brokerage, or professional office space. Features include prominent street-facing frontage, truck-level shipping access for 53 ft. Trailers and all units are separately metered with gas and hydro. A flexible layout suitable for retail, office, warehousing, distribution, and light manufacturing or assembly operations. Strategically located with convenient access to highways 410, 407, and 401. Surrounded by established businesses in a busy commercial hub a fantastic opportunity to grow your business. Net rent ranges from $35 to $36 per sq ft, depending on proposed use. Additional tmi applies.
Listing IDW12374530
Address1115 Derry Road
CityMississauga, Ontario
Lease$35
Bath3 Full
StyleCommercial Retail
TypeIndustrial/Commercial
StatusFor Lease
Subtype Commercial RetailOwnership LeaseholdHeating / Cooling Gas Forced Air Closed
ASAP

Wed

17

Dec

Thu

18

Dec

Fri

19

Dec

Sat

20

Dec

Sun

21

Dec

Mon

22

Dec

Tue

23

Dec

Wed

24

Dec

Thu

25

Dec

Fri

26

Dec

Sat

27

Dec

Sun

28

Dec

Mon

29

Dec

Tue

30

Dec

Wed

31

Dec

Thu

1

Jan

Fri

2

Jan

Sat

3

Jan

Sun

4

Jan

Mon

5

Jan

Tue

6

Jan

Wed

7

Jan

Thu

8

Jan

Fri

9

Jan

Sat

10

Jan

Sun

11

Jan

Mon

12

Jan

Tue

13

Jan

Wed

14

Jan

By clicking “Get pre-qualified” and/or 'Submit' you are expressly consenting, in writing, to receive telemarketing and other messages, including artificial or prerecorded voices, via automated calls or texts from jumprealty.ca and up.mortgages at the number you provided above. This consent is not required to purchase any good or service. Message and data rates may apply, frequency varies. Text HELP for help or STOP to cancel. More details in Terms of Use and Privacy Policy.

Listing Agency:  SPARK REALTY INC.
Hospital
Parks
Schools
Place of Worship
Please select an amenity above to view a list.

Recommended Properties

Loading...
1115 Derry Road
Mississauga , Ontario
3 $35
Get more info