For Lease - 111A Caplan Avenue Unit# A, Barrie, Ontario

Views   1
Time on Jump  78 day
  • Brand new industrial building set for completion in December 2026.
  • High-profile corner location offers exceptional visibility and access.
  • Designed for flexibility with 30' clear ceiling height and efficient bay sizing.
  • Energy-efficient construction helps reduce operating costs significantly.
  • Light Industrial zoning supports a wide range of potential uses.
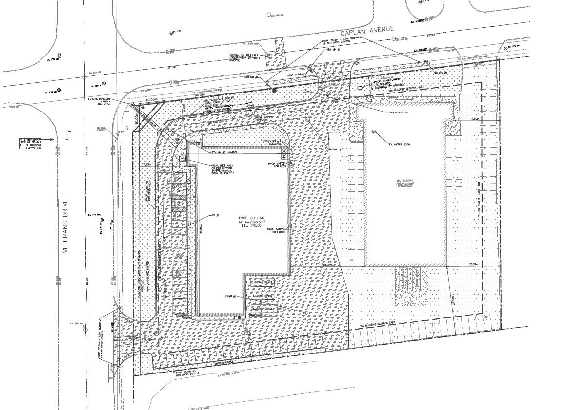
Brand new industrial building - completion target for december 2026. This high-profile corner facility at veteran's drive and caplan avenue offers exceptional visibility and corporate presence. Designed for functionality and efficiency, the building features just under 35' overall height, 30' clear ceiling height, and efficient 50'x54' bay sizing - providing maximum flexibility for warehousing, manufacturing, and logistics. New construction delivers energy efficiency and reduced operating costs. Two points of access to the building and a centrally positioned footprint on the site allow for smooth, uninterrupted logistics and circulation. Light industrial zoning permits a broad range of uses. The landlord is prepared to consider competitive tenant incentive packages for qualified tenants. Additional rent is estimated and subject to construction completion and re-assessment.
Listing IDS12693568
Address111A Caplan Avenue Unit# A
CityBarrie, Ontario
Lease$14
StyleIndustrial
Land Size1.76
TypeIndustrial/Commercial
StatusFor Lease
Subtype IndustrialCommunity Features Major Highway, Public TransitOwnership LeaseholdHeating / Cooling Gas Forced Air ClosedSewer Sanitary+Storm
ASAP

Fri

3

Apr

Sat

4

Apr

Sun

5

Apr

Mon

6

Apr

Tue

7

Apr

Wed

8

Apr

Thu

9

Apr

Fri

10

Apr

Sat

11

Apr

Sun

12

Apr

Mon

13

Apr

Tue

14

Apr

Wed

15

Apr

Thu

16

Apr

Fri

17

Apr

Sat

18

Apr

Sun

19

Apr

Mon

20

Apr

Tue

21

Apr

Wed

22

Apr

Thu

23

Apr

Fri

24

Apr

Sat

25

Apr

Sun

26

Apr

Mon

27

Apr

Tue

28

Apr

Wed

29

Apr

Thu

30

Apr

Fri

1

May

By clicking “Get pre-qualified” and/or 'Submit' you are expressly consenting, in writing, to receive telemarketing and other messages, including artificial or prerecorded voices, via automated calls or texts from jumprealty.ca and up.mortgages at the number you provided above. This consent is not required to purchase any good or service. Message and data rates may apply, frequency varies. Text HELP for help or STOP to cancel. More details in Terms of Use and Privacy Policy.

Listing Agency:  SUTTON GROUP INCENTIVE REALTY INC.

* Data is provided courtesy of PROPTX. The information provided herein must only be used by consumers that have a bona fide interest in the purchase, sale, or lease of real estate and may not be used for any commercial purpose or any other purpose. The information is deemed reliable but is not guaranteed accurate by PROPTX.

Hospital
Parks
Schools
Place of Worship
Please select an amenity above to view a list.

Recommended Properties

Loading...
111a Caplan Avenue Unit# A
Barrie , Ontario
$14
Get more info