For Sale - 1128 FREDERICA, Windsor, Ontario

Est payment $3,265/mo
Views   1
Time on Jump  1 days
  • Stylish 4 bedroom raised ranch in a desirable Eastside neighborhood.
  • Gourmet kitchen with granite countertops and a dedicated coffee bar.
  • Bright open-concept living/dining area with hardwood flooring.
  • Fully finished lower level with a family room and gas fireplace.
  • Private outdoor retreat with a sundeck and patio for relaxation.



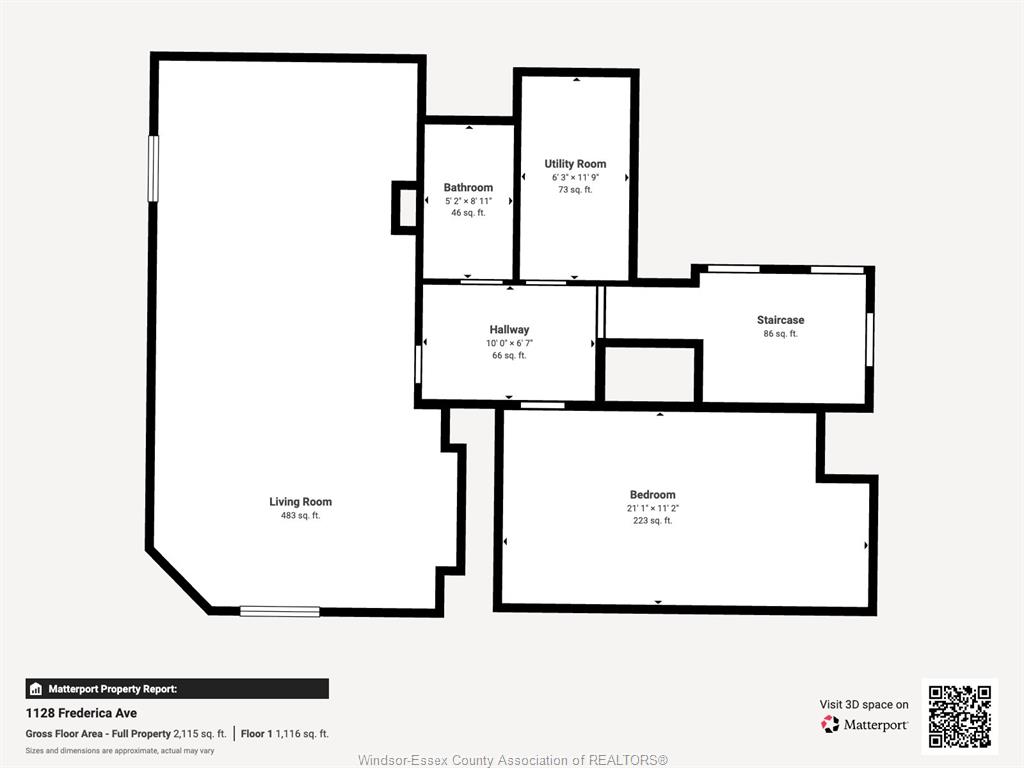
This 4 bedroom, 2 bath, eastside raised ranch blends style and function in a sought-after neighbourhood. The main floor features a gourmet kitchen designed for entertaining, complete with granite countertops, a large island, a breakfast peninsula, and a dedicated coffee bar. Bright, open-concept living/dining area with hardwood flooring lead to three spacious bedrooms—one currently used as a cozy tv room—and a 4-piece bath. The fully finished lower level doubles your living space, offering a comfortable family room with a warm gas fireplace, a versatile games area, a fourth bedroom, a second 4-piece bath, and ample storage. Step outside to a private outdoor retreat featuring a sundeck and a dedicated patio ready for a hot tub. Complete with a 2-car garage, this home offers the perfect package of comfort and convenience. Roof approx 8 yrs.
Listing ID26008080
Address1128 FREDERICA
CityWindsor, Ontario
Price$679,900
Bed / Bath4 / 2 Full
StyleRaised Ranch
ConstructionAluminum/Vinyl, Brick
FlooringCarpeted, Ceramic or Porcelain, Hardwood…
TypeResidential
StatusFor Sale
Attachment Style DetachedSubtype Raised RanchDriveway Finished Drive, Front DriveParking Double Garage, Attached Garage, Automatic Garage Door OpenerAmenities Landscaped, Playground Nearby, Shopping Nearby, SundeckOwnership FreeholdRental Equipment Hot Water TankAppliances DishwasherBasement FullBasement Development FinishedFoundation ConcreteHeating / Cooling Central Air Conditioning, Forced AirHeating Fuel Natural GasHot Water Tank GasUtility Water Municipal WaterSewer SanitaryFireplace Gas Direct Vent
Date Listed Apr 13, 2026Days on Market 1
ASAP

Wed

15

Apr

Thu

16

Apr

Fri

17

Apr

Sat

18

Apr

Sun

19

Apr

Mon

20

Apr

Tue

21

Apr

Wed

22

Apr

Thu

23

Apr

Fri

24

Apr

Sat

25

Apr

Sun

26

Apr

Mon

27

Apr

Tue

28

Apr

Wed

29

Apr

Thu

30

Apr

Fri

1

May

Sat

2

May

Sun

3

May

Mon

4

May

Tue

5

May

Wed

6

May

Thu

7

May

Fri

8

May

Sat

9

May

Sun

10

May

Mon

11

May

Tue

12

May

Wed

13

May

By clicking “Get pre-qualified” and/or 'Submit' you are expressly consenting, in writing, to receive telemarketing and other messages, including artificial or prerecorded voices, via automated calls or texts from jumprealty.ca and up.mortgages at the number you provided above. This consent is not required to purchase any good or service. Message and data rates may apply, frequency varies. Text HELP for help or STOP to cancel. More details in Terms of Use and Privacy Policy.

Listing Agency:  ROYAL LEPAGE BINDER REAL ESTATE

* Data is provided courtesy of WECAR. The information provided herein must only be used by consumers that have a bona fide interest in the purchase, sale, or lease of real estate and may not be used for any commercial purpose or any other purpose. The information is deemed reliable but is not guaranteed accurate by WECAR.

Hospital
Parks
Schools
Place of Worship
Please select an amenity above to view a list.

Recommended Properties

Loading...
1128 Frederica
Windsor , Ontario
4 2 $679,900
Get more info