For Lease - 1167 Caledonia Road Unit# 200, Toronto, Ontario

Views   1
Time on Jump  2 day
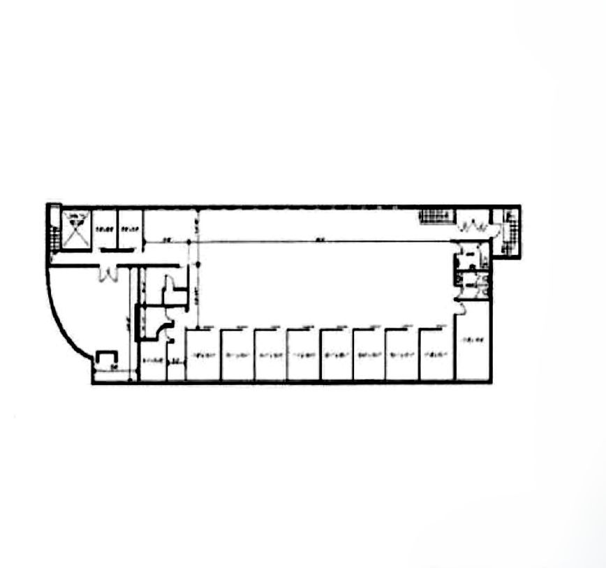
  • Turnkey second floor office/retail space with great visibility on Caledonia Road.
  • Trendy loft-style design featuring multiple private offices and boardroom.
  • Open space and lunchroom for collaboration and breaks.
  • Free parking available on-site and street level for convenience.
  • Close to the Design District, perfect for home improvement businesses.
Turnkey second floor office/retail space with premium exposure on caledonia road. Trendy loft-style space built out with multiple private offices, boardroom, open space, lunchroom, and spacious kitchenette. Free parking available on site and at street level. Ideal for architects, designers, traditional office users and businesses in the home improvement/decor industry that can benefit from close proximity to the design district.
Listing IDW13022216
Address1167 Caledonia Road Unit# 200
CityToronto, Ontario
Lease$19
StyleOffice
TypeIndustrial/Commercial
StatusFor Lease
Subtype OfficeOwnership LeaseholdHeating / Cooling Gas Forced Air OpenSewer Sanitary+Storm
ASAP

Fri

24

Apr

Sat

25

Apr

Sun

26

Apr

Mon

27

Apr

Tue

28

Apr

Wed

29

Apr

Thu

30

Apr

Fri

1

May

Sat

2

May

Sun

3

May

Mon

4

May

Tue

5

May

Wed

6

May

Thu

7

May

Fri

8

May

Sat

9

May

Sun

10

May

Mon

11

May

Tue

12

May

Wed

13

May

Thu

14

May

Fri

15

May

Sat

16

May

Sun

17

May

Mon

18

May

Tue

19

May

Wed

20

May

Thu

21

May

Fri

22

May

By clicking “Get pre-qualified” and/or 'Submit' you are expressly consenting, in writing, to receive telemarketing and other messages, including artificial or prerecorded voices, via automated calls or texts from jumprealty.ca and up.mortgages at the number you provided above. This consent is not required to purchase any good or service. Message and data rates may apply, frequency varies. Text HELP for help or STOP to cancel. More details in Terms of Use and Privacy Policy.

Listing Agency:  AVISON YOUNG COMMERCIAL REAL ESTATE SERVICES, LP

* Data is provided courtesy of PROPTX. The information provided herein must only be used by consumers that have a bona fide interest in the purchase, sale, or lease of real estate and may not be used for any commercial purpose or any other purpose. The information is deemed reliable but is not guaranteed accurate by PROPTX.

Hospital
Parks
Schools
Place of Worship
Please select an amenity above to view a list.

Recommended Properties

Loading...
1167 Caledonia Road Unit# 200
Toronto , Ontario
$19
Get more info