For Lease - 1185 Franklin Boulevard Unit# Unit 8, Cambridge, Ontario

Views   81
Time on Jump  63 day
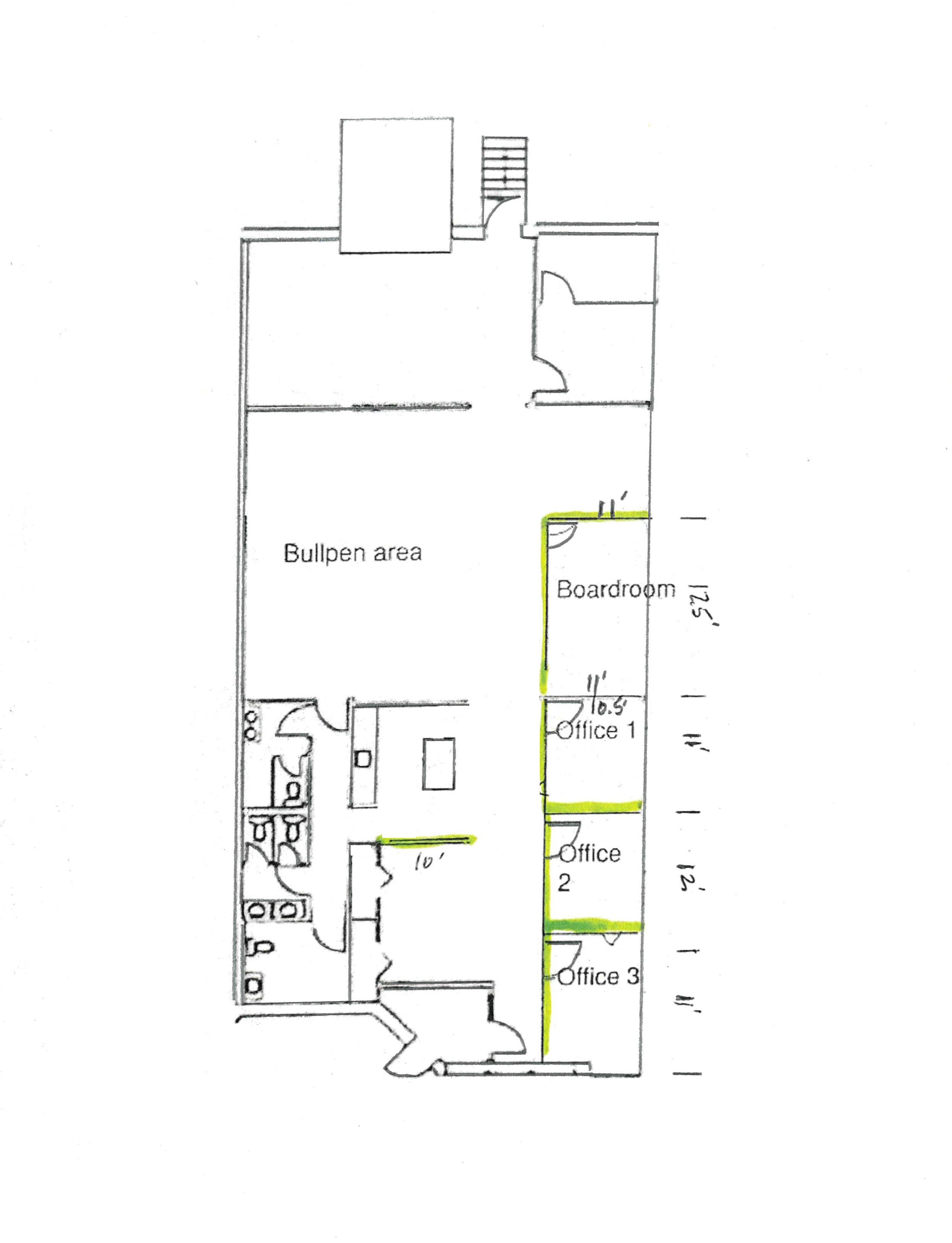
  • Bright corner unit with plenty of windows and natural light.
  • Convenient access to 401 and nearby amenities for easy commutes.
  • Partially finished with three new private offices for various uses.
  • Includes an office showroom and reception area for business needs.
  • Flexible space that can be converted back to an industrial layout.
Bright corner unit with lots of windows and excellent exposure on franklin blvd. Great location providing quick access to 401 and nearby amenities. Unit is partially finished with 3 new private offices, an office showroom, reception area, warehousing and shipping areas. Landlord can return the unit to an industrial space approx 70/30.
Listing IDX12735436
Address1185 Franklin Boulevard Unit# Unit 8
CityCambridge, Ontario
Lease$15
StyleIndustrial
TypeIndustrial/Commercial
StatusFor Lease
Subtype IndustrialCommunity Features Major HighwayOwnership LeaseholdHeating / Cooling Gas Forced Air Open
ASAP

Fri

3

Apr

Sat

4

Apr

Sun

5

Apr

Mon

6

Apr

Tue

7

Apr

Wed

8

Apr

Thu

9

Apr

Fri

10

Apr

Sat

11

Apr

Sun

12

Apr

Mon

13

Apr

Tue

14

Apr

Wed

15

Apr

Thu

16

Apr

Fri

17

Apr

Sat

18

Apr

Sun

19

Apr

Mon

20

Apr

Tue

21

Apr

Wed

22

Apr

Thu

23

Apr

Fri

24

Apr

Sat

25

Apr

Sun

26

Apr

Mon

27

Apr

Tue

28

Apr

Wed

29

Apr

Thu

30

Apr

Fri

1

May

By clicking “Get pre-qualified” and/or 'Submit' you are expressly consenting, in writing, to receive telemarketing and other messages, including artificial or prerecorded voices, via automated calls or texts from jumprealty.ca and up.mortgages at the number you provided above. This consent is not required to purchase any good or service. Message and data rates may apply, frequency varies. Text HELP for help or STOP to cancel. More details in Terms of Use and Privacy Policy.

Listing Agency:  CAPITAL NORTH REALTY CORPORATION

* Data is provided courtesy of PROPTX. The information provided herein must only be used by consumers that have a bona fide interest in the purchase, sale, or lease of real estate and may not be used for any commercial purpose or any other purpose. The information is deemed reliable but is not guaranteed accurate by PROPTX.

Hospital
Parks
Schools
Place of Worship
Please select an amenity above to view a list.

Recommended Properties

Loading...
1185 Franklin Boulevard Unit# Unit 8
Cambridge , Ontario
$15
Get more info