For Sale - 12 Darrow Drive, Tillsonburg, Ontario

Est payment $5,204/mo
Views   1
Time on Jump  1 days
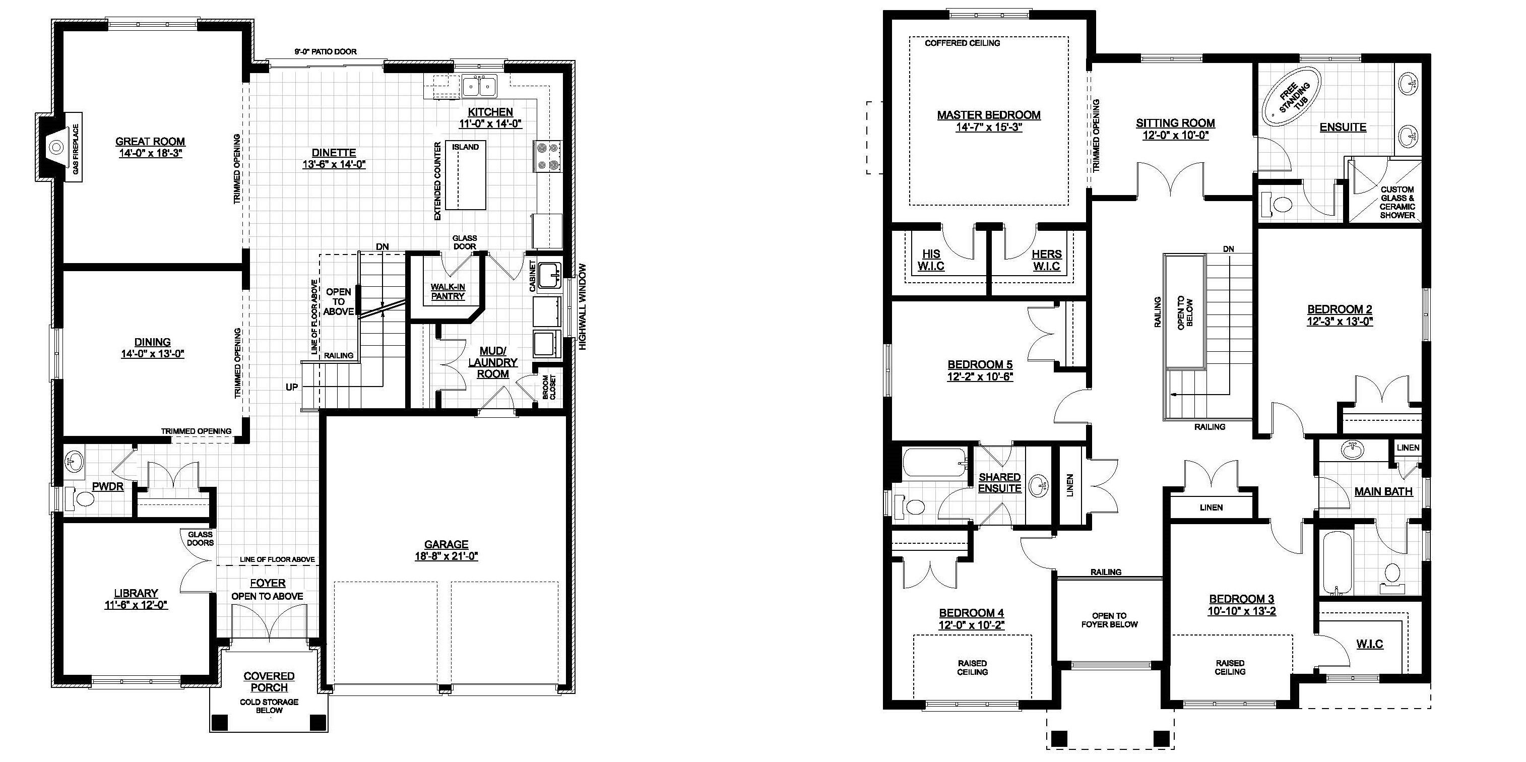
  • To-be-built Magnolia Model designed for modern living and multi-generational comfort.
  • Spacious main floor with a den, dining room, and great room for gatherings.
  • Chef-inspired kitchen with ample cabinetry and large island for entertaining.
  • Five bedrooms, including a luxurious primary suite with sitting area and en-suite.
  • Flexible options for building tailored to individual lifestyles and needs.



Introducing the to-be-built magnolia model by trevalli homes, located in the desirable westwinds community in tillsonburg ont. This stunning 3,405 sq. Ft. Two-storey home is thoughtfully designed for modern and multi-generational living, offering generous shared spaces alongside private retreats. A large foyer creates an impressive first impression, leading into a beautifully balanced main floor featuring a private den/study, formal dining room, and a spacious great room ideal for everyday living. The chef-inspired kitchen showcases abundant cabinetry, extensive storage, and a large island, making it perfect for entertaining. The upper level offers five bedrooms, including a luxurious primary bedroom designed as a true adult retreat. This impressive suite features a dedicated sitting area, his-and-hers walk-in closets, a coffered ceiling, and a spa-inspired en-suite bathroom, creating a serene private escape. Four additional well-sized bedrooms provide excellent functionality, with a jack-and-jill bathroom servicing two bedrooms and a main bath serving the remaining two. Built by trevalli homes, a trusted builder known for quality craftsmanship and attention to detail. Additional bungalow and two-storey floor plans are available, along with flexible deposit structures and closing dates, offering a rare opportunity to build a home tailored to today's lifestyles. Open house location: 4 thompson court , tillsonburg, ont
Listing IDX12763492
Address12 Darrow Drive
CityTillsonburg, Ontario
Price$1,049,900
Bed / Bath5 / 4 Full
Style2-Storey, Detached
ConstructionBrick, Stucco (Plaster)
Land Size6038
TypeResidential
StatusFor Sale
Subtype DetachedIndoor Features Air ExchangerOwnership FreeholdBasement FullFoundation Poured ConcreteHeating / Cooling Forced AirHeating Fuel GasSewer Sewer
Parking 4.00
ASAP

Fri

6

Feb

Sat

7

Feb

Sun

8

Feb

Mon

9

Feb

Tue

10

Feb

Wed

11

Feb

Thu

12

Feb

Fri

13

Feb

Sat

14

Feb

Sun

15

Feb

Mon

16

Feb

Tue

17

Feb

Wed

18

Feb

Thu

19

Feb

Fri

20

Feb

Sat

21

Feb

Sun

22

Feb

Mon

23

Feb

Tue

24

Feb

Wed

25

Feb

Thu

26

Feb

Fri

27

Feb

Sat

28

Feb

Sun

1

Mar

Mon

2

Mar

Tue

3

Mar

Wed

4

Mar

Thu

5

Mar

Fri

6

Mar

By clicking “Get pre-qualified” and/or 'Submit' you are expressly consenting, in writing, to receive telemarketing and other messages, including artificial or prerecorded voices, via automated calls or texts from jumprealty.ca and up.mortgages at the number you provided above. This consent is not required to purchase any good or service. Message and data rates may apply, frequency varies. Text HELP for help or STOP to cancel. More details in Terms of Use and Privacy Policy.

Listing Agency:  Century 21 Heritage House Ltd Brokerage
Hospital
Parks
Schools
Place of Worship
Please select an amenity above to view a list.

Recommended Properties

Loading...
12 Darrow Drive
Tillsonburg , Ontario
5 4 $1,049,900
Get more info