For Sale - 1201 Highway 6 N/A, South Bruce Peninsula, Ontario

Est payment $2,161/mo
Views   1
Time on Jump  1 days
  • Home with 3 bedrooms and 2 bathrooms on a full acre.
  • Large detached shop/garage with power and concrete floor.
  • Recent updates include a new roof, siding, and heat pump.
  • Private setting surrounded by tall mature cedars for tranquility.
  • Spacious kitchen and dining area with deck access.



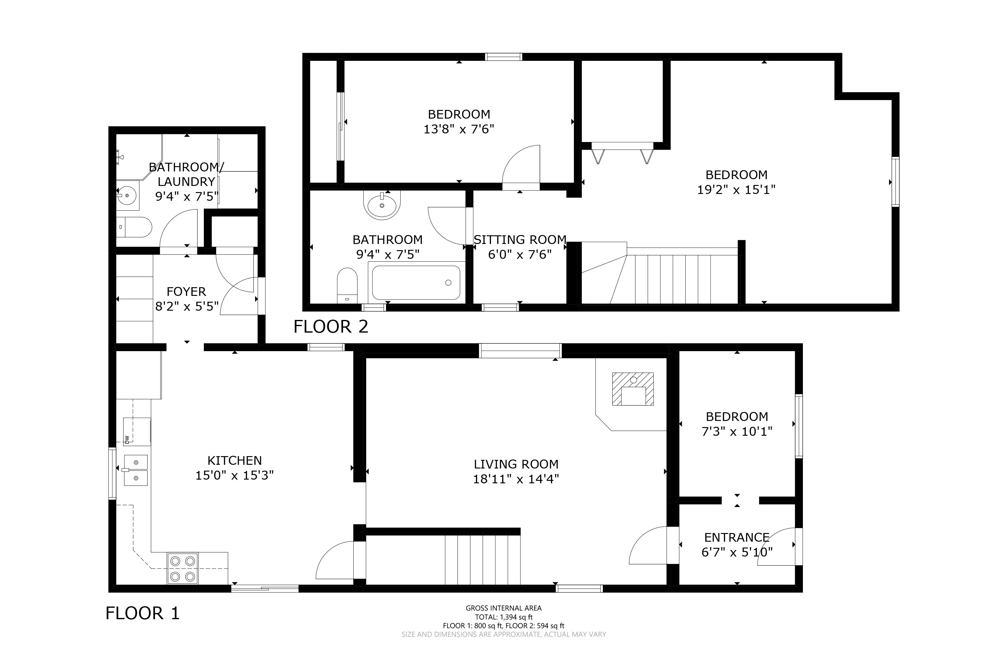
Home with shop on 1 acre! 3 bedroom, 2 bathroom, ~1,100 sqft home with large detached shop/garage on a beautifully treed 1 acre property. Recent updates include new roof (2020), wood stove and chimney with wett certification (2020), new siding (2021), heat pump added (2024), bedroom renovation (2025), and septic just pumped (2025). The property is fully surrounded by tall mature cedars, creating exceptional privacy and a peaceful setting from the moment you arrive. Inside the home features a spacious kitchen with ample counter space and cabinetry, flowing into a generous dining area with walkout to the deck overlooking the property. The bright living area includes a newer wood stove for added warmth and character. The main floor also offers laundry and a full bathroom. Upstairs boasts a 4-piece bathroom with soaking tub, additional bedrooms, and flexible space ideal for a desk or small workspace. The large detached shop/garage has power running to it and features a poured concrete floor offering an excellent space for a workshop, storage, or hobby use. If you looking for a property with a home, shop, a full acre, and upmost privacy look no further!
Listing IDX12877320
Address1201 Highway 6 N/A
CitySouth Bruce Peninsula, Ontario
Price$450,000
Bed / Bath3 / 2 Full
Style1 1/2 Storey, Detached
ConstructionVinyl Siding
Land Size1
TypeResidential
StatusFor Sale
Subtype DetachedIndoor Features Water Heater OwnedOwnership FreeholdViews Trees/WoodsWaterfront NoneBasement Crawl SpaceFoundation StoneHeating / Cooling BaseboardHeating Fuel ElectricSewer Septic
Parking 7.00
ASAP

Fri

13

Mar

Sat

14

Mar

Sun

15

Mar

Mon

16

Mar

Tue

17

Mar

Wed

18

Mar

Thu

19

Mar

Fri

20

Mar

Sat

21

Mar

Sun

22

Mar

Mon

23

Mar

Tue

24

Mar

Wed

25

Mar

Thu

26

Mar

Fri

27

Mar

Sat

28

Mar

Sun

29

Mar

Mon

30

Mar

Tue

31

Mar

Wed

1

Apr

Thu

2

Apr

Fri

3

Apr

Sat

4

Apr

Sun

5

Apr

Mon

6

Apr

Tue

7

Apr

Wed

8

Apr

Thu

9

Apr

Fri

10

Apr

By clicking “Get pre-qualified” and/or 'Submit' you are expressly consenting, in writing, to receive telemarketing and other messages, including artificial or prerecorded voices, via automated calls or texts from jumprealty.ca and up.mortgages at the number you provided above. This consent is not required to purchase any good or service. Message and data rates may apply, frequency varies. Text HELP for help or STOP to cancel. More details in Terms of Use and Privacy Policy.

Listing Agency:  RE/MAX Grey Bruce Realty Inc.

* Data is provided courtesy of PROPTX. The information provided herein must only be used by consumers that have a bona fide interest in the purchase, sale, or lease of real estate and may not be used for any commercial purpose or any other purpose. The information is deemed reliable but is not guaranteed accurate by PROPTX.

Hospital
Parks
Schools
Place of Worship
Please select an amenity above to view a list.

Recommended Properties

Loading...
1201 Highway 6 N/a
South Bruce Peninsula , Ontario
3 2 $450,000
Get more info