For Lease - 121 Cataraqui Street, Kingston, Ontario

Views   1
Time on Jump  2 day
  • Well-located commercial property adjacent to Optimist Baseball Field and Megaffin Park.
  • Current zoning allows for various institutional or commercial uses.
  • Prominent corner site with extensive street frontage for visibility.
  • Spacious building with large warehouse and additional office area.
  • Fenced lot includes three loading docks for efficient operations.
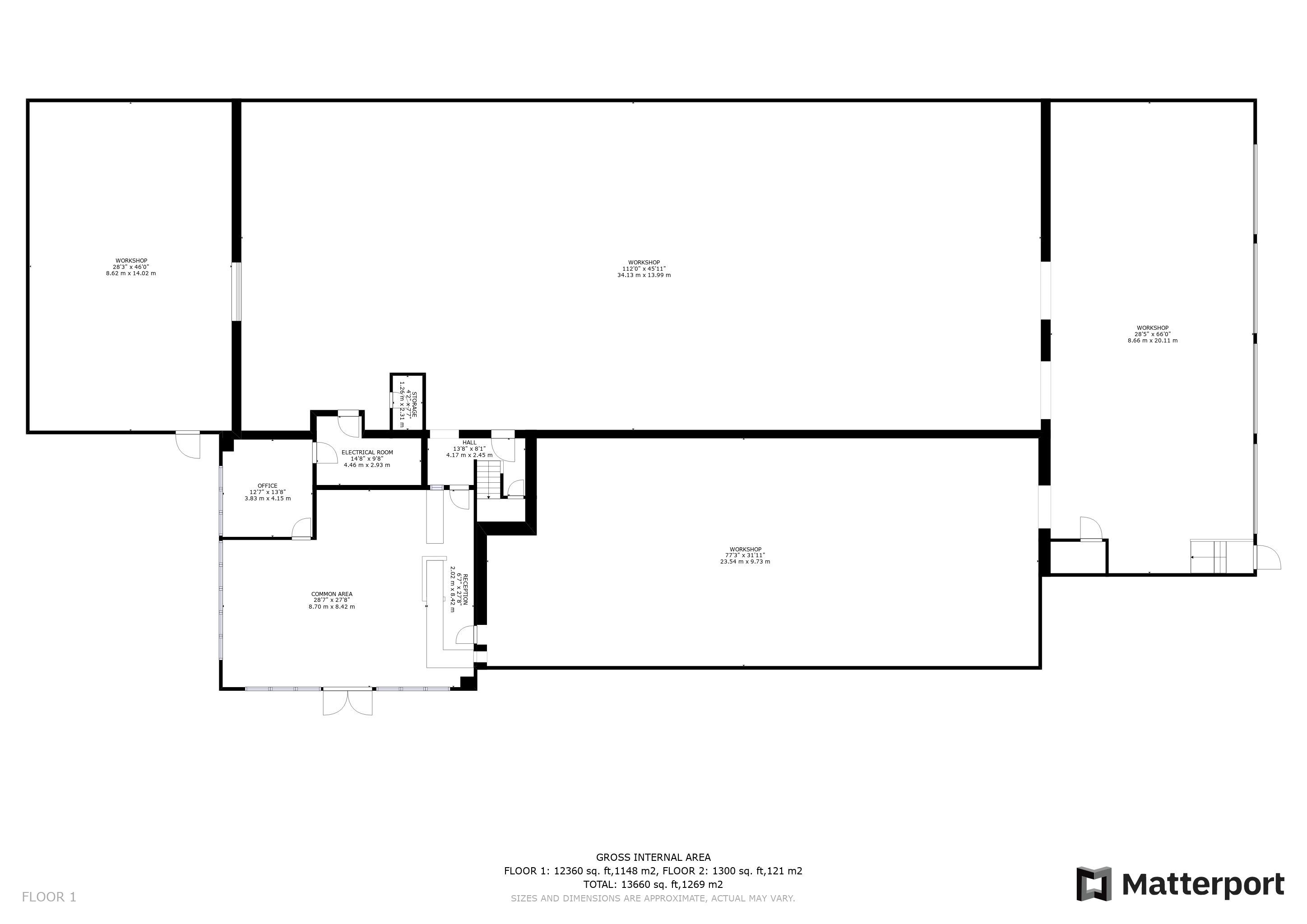
Formerly home to the beer store, this well-located commercial property sits beside optimist baseball field and megaffin park, offering excellent visibility and accessibility. The current zoning supports a variety of potential uses, including public or private day schools, churches, community halls, and community homes, making it suitable for a range of institutional or commercial purposes. The property occupies a prominent corner site with approximately 337 feet of frontage on cataraqui street and 168 feet along bagot street. The building offers a total ground-level footprint of 12,866 sq. Ft., along with 1,467 sq. Ft. Of additional office space on the second floor. Inside, the layout includes a 9,192 sq. Ft. Warehouse area, a 2,326 sq. Ft. Walk-in cooler, and a 1,452 sq. Ft. Retail space. Ceiling heights range from 15 to 20 feet, providing flexibility for various operations. The fenced lot also features three loading docks, supporting efficient loading and distribution.
Listing IDX12967130
Address121 Cataraqui Street
CityKingston, Ontario
Lease$7
Bath1 Full
StyleCommercial Retail
Land Size55487.9
TypeIndustrial/Commercial
StatusFor Lease
Subtype Commercial RetailOwnership LeaseholdHeating / Cooling Gas Forced Air OpenSewer Sanitary+Storm Available
ASAP

Sat

11

Apr

Sun

12

Apr

Mon

13

Apr

Tue

14

Apr

Wed

15

Apr

Thu

16

Apr

Fri

17

Apr

Sat

18

Apr

Sun

19

Apr

Mon

20

Apr

Tue

21

Apr

Wed

22

Apr

Thu

23

Apr

Fri

24

Apr

Sat

25

Apr

Sun

26

Apr

Mon

27

Apr

Tue

28

Apr

Wed

29

Apr

Thu

30

Apr

Fri

1

May

Sat

2

May

Sun

3

May

Mon

4

May

Tue

5

May

Wed

6

May

Thu

7

May

Fri

8

May

Sat

9

May

By clicking “Get pre-qualified” and/or 'Submit' you are expressly consenting, in writing, to receive telemarketing and other messages, including artificial or prerecorded voices, via automated calls or texts from jumprealty.ca and up.mortgages at the number you provided above. This consent is not required to purchase any good or service. Message and data rates may apply, frequency varies. Text HELP for help or STOP to cancel. More details in Terms of Use and Privacy Policy.

Listing Agency:  RE/MAX FINEST REALTY INC., BROKERAGE

* Data is provided courtesy of PROPTX. The information provided herein must only be used by consumers that have a bona fide interest in the purchase, sale, or lease of real estate and may not be used for any commercial purpose or any other purpose. The information is deemed reliable but is not guaranteed accurate by PROPTX.

Hospital
Parks
Schools
Place of Worship
Please select an amenity above to view a list.

Recommended Properties

Loading...
121 Cataraqui Street
Kingston , Ontario
1 $7
Get more info