For Sale - 1223 Hudson Place, Oakville, Ontario

Est payment $4,557/mo
Views   1
Time on Jump  1 days
  • Well-maintained backsplit home located on a quiet cul-de-sac.
  • Backs onto a private ravine with exceptional privacy and natural views.
  • Bright open-concept space is great for family living and entertaining.
  • Generous outdoor area features mature landscaping, gardens, and a fire pit.
  • Convenient access to highways and top-rated schools in the neighborhood.



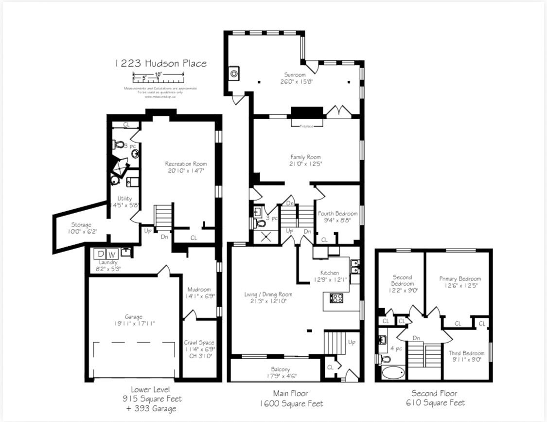
Welcome to 1223 hudson place, a beautifully maintained detached 5-level backsplit tucked away on a quiet cul-de-sac in the highly sought-after falgarwood neighbourhood. Backing onto a private ravine, this home offers a rare blend of space, privacy, and natural surroundings. Freshly painted throughout, the functional layout is ideal for family living. The main level features a bright, open-concept living and dining area, complemented by a spacious kitchen with ample room for everyday meals and entertaining. Just steps down to the main floor fourth bedroom with an the oversized family room that boasts a cozy gas fireplace and a sunroom with serene views of the treed backyard. Set on a generous pie-shaped lot, the outdoor space is a true highlight-offering exceptional privacy with mature landscaping, lush gardens, a basketball net, and a fire pit perfect for relaxing or hosting. Upstairs, you'll find three bedrooms with a shared bath, while the main and lower levels provide multiple versatile living areas and three full bathrooms-ideal for growing or multi-generational families. Conveniently located close to major highways and top-rated schools, including iroquois ridge high school, and within walking distance to holy family, sheridan, and falgarwood schools, this home combines comfort, location, and lifestyle. A fantastic opportunity in a welcoming, family-friendly community. Follow your dream, home.
Listing IDW13046976
Address1223 Hudson Place
CityOakville, Ontario
Price$949,000
Bed / Bath4 / 3 Full
StyleBacksplit 5, Detached
ConstructionBrick
TypeResidential
StatusFor Sale
Subtype DetachedIndoor Features Carpet Free, In-Law CapabilityOutdoor Features Patio, Backs On Green BeltAmenities Cul de Sac/Dead End, Fenced Yard, Park, Place Of Worship, School, Wooded/TreedOwnership FreeholdBasement FinishedFoundation UnknownHeating / Cooling Forced AirHeating Fuel GasSewer Sewer
Parking 4.00
ASAP

Tue

28

Apr

Wed

29

Apr

Thu

30

Apr

Fri

1

May

Sat

2

May

Sun

3

May

Mon

4

May

Tue

5

May

Wed

6

May

Thu

7

May

Fri

8

May

Sat

9

May

Sun

10

May

Mon

11

May

Tue

12

May

Wed

13

May

Thu

14

May

Fri

15

May

Sat

16

May

Sun

17

May

Mon

18

May

Tue

19

May

Wed

20

May

Thu

21

May

Fri

22

May

Sat

23

May

Sun

24

May

Mon

25

May

Tue

26

May

By clicking “Get pre-qualified” and/or 'Submit' you are expressly consenting, in writing, to receive telemarketing and other messages, including artificial or prerecorded voices, via automated calls or texts from jumprealty.ca and up.mortgages at the number you provided above. This consent is not required to purchase any good or service. Message and data rates may apply, frequency varies. Text HELP for help or STOP to cancel. More details in Terms of Use and Privacy Policy.

Listing Agency:  Engel & Volkers Oakville

* Data is provided courtesy of PROPTX. The information provided herein must only be used by consumers that have a bona fide interest in the purchase, sale, or lease of real estate and may not be used for any commercial purpose or any other purpose. The information is deemed reliable but is not guaranteed accurate by PROPTX.

Hospital
Parks
Schools
Place of Worship
Please select an amenity above to view a list.

Recommended Properties

Loading...
1223 Hudson Place
Oakville , Ontario
4 3 $949,000
Get more info