For Sale - 124 Lorne Street, Grey Highlands, Ontario

Est payment $2,396/mo
Views   1
Time on Jump  4 day
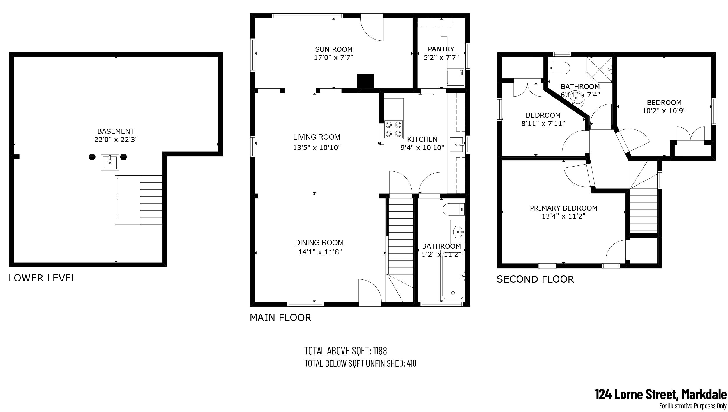
  • Charming 1.5-storey home on a spacious 61' x 132' mature lot.
  • Bright living and dining spaces with a functional layout for everyday living.
  • Sunroom overlooking a beautifully landscaped backyard for relaxation.
  • Detached garage with hydro and private driveway for convenience.
  • Located in a friendly neighborhood, close to shops and parks.



Beautiful mature lot in the heart of markdale! Welcome to 124 lorne street, a charming 1. 5-storey home set on a generous 61' x 132' lot surrounded by established trees, offering a peaceful setting within town limits. Featuring 3 bedrooms and 2 bathrooms across approximately 1,200 sq ft, the home offers a functional layout with bright living and dining spaces, a kitchen with pantry, and a sunroom overlooking the backyard. Upstairs, you'll find three comfortable bedrooms and a second full bathroom. Recent improvements include updated flooring, trim, and modern light fixtures with added pot lights, bringing a fresh feel to the interior. The outdoor space is a standout, with a deep lot, mature landscaping, and a backdrop onto a neighbouring church property that offers a uniquely open rear setting. A detached garage with hydro and private driveway provide added convenience. Situated in a quiet, friendly neighbourhood known for its great sense of community, and within walking distance to shops, parks, and amenities. Just a short drive to owen sound, hanover, and collingwood; enjoy small-town living in the growing community of markdale.
Listing IDX13006406
Address124 Lorne Street
CityGrey Highlands, Ontario
Price$499,000
Bed / Bath3 / 2 Full
Style1 1/2 Storey, Detached
ConstructionVinyl Siding
TypeResidential
StatusFor Sale
Subtype DetachedIndoor Features Water Softener, Water Heater OwnedOwnership FreeholdBasement UnfinishedFoundation ConcreteHeating / Cooling Forced AirHeating Fuel GasSewer Sewer
Parking 3.00
ASAP

Wed

22

Apr

Thu

23

Apr

Fri

24

Apr

Sat

25

Apr

Sun

26

Apr

Mon

27

Apr

Tue

28

Apr

Wed

29

Apr

Thu

30

Apr

Fri

1

May

Sat

2

May

Sun

3

May

Mon

4

May

Tue

5

May

Wed

6

May

Thu

7

May

Fri

8

May

Sat

9

May

Sun

10

May

Mon

11

May

Tue

12

May

Wed

13

May

Thu

14

May

Fri

15

May

Sat

16

May

Sun

17

May

Mon

18

May

Tue

19

May

Wed

20

May

By clicking “Get pre-qualified” and/or 'Submit' you are expressly consenting, in writing, to receive telemarketing and other messages, including artificial or prerecorded voices, via automated calls or texts from jumprealty.ca and up.mortgages at the number you provided above. This consent is not required to purchase any good or service. Message and data rates may apply, frequency varies. Text HELP for help or STOP to cancel. More details in Terms of Use and Privacy Policy.

Listing Agency:  Century 21 Millennium Inc.

* Data is provided courtesy of PROPTX. The information provided herein must only be used by consumers that have a bona fide interest in the purchase, sale, or lease of real estate and may not be used for any commercial purpose or any other purpose. The information is deemed reliable but is not guaranteed accurate by PROPTX.

Hospital
Parks
Schools
Place of Worship
Please select an amenity above to view a list.

Recommended Properties

Loading...
124 Lorne Street
Grey Highlands , Ontario
3 2 $499,000
Get more info