For Lease - 1240 ADIRONDACK Drive Unit# A, Parkway Park - Queensway Terrace S and Area, Ontario

Views   1
Time on Jump  15 day
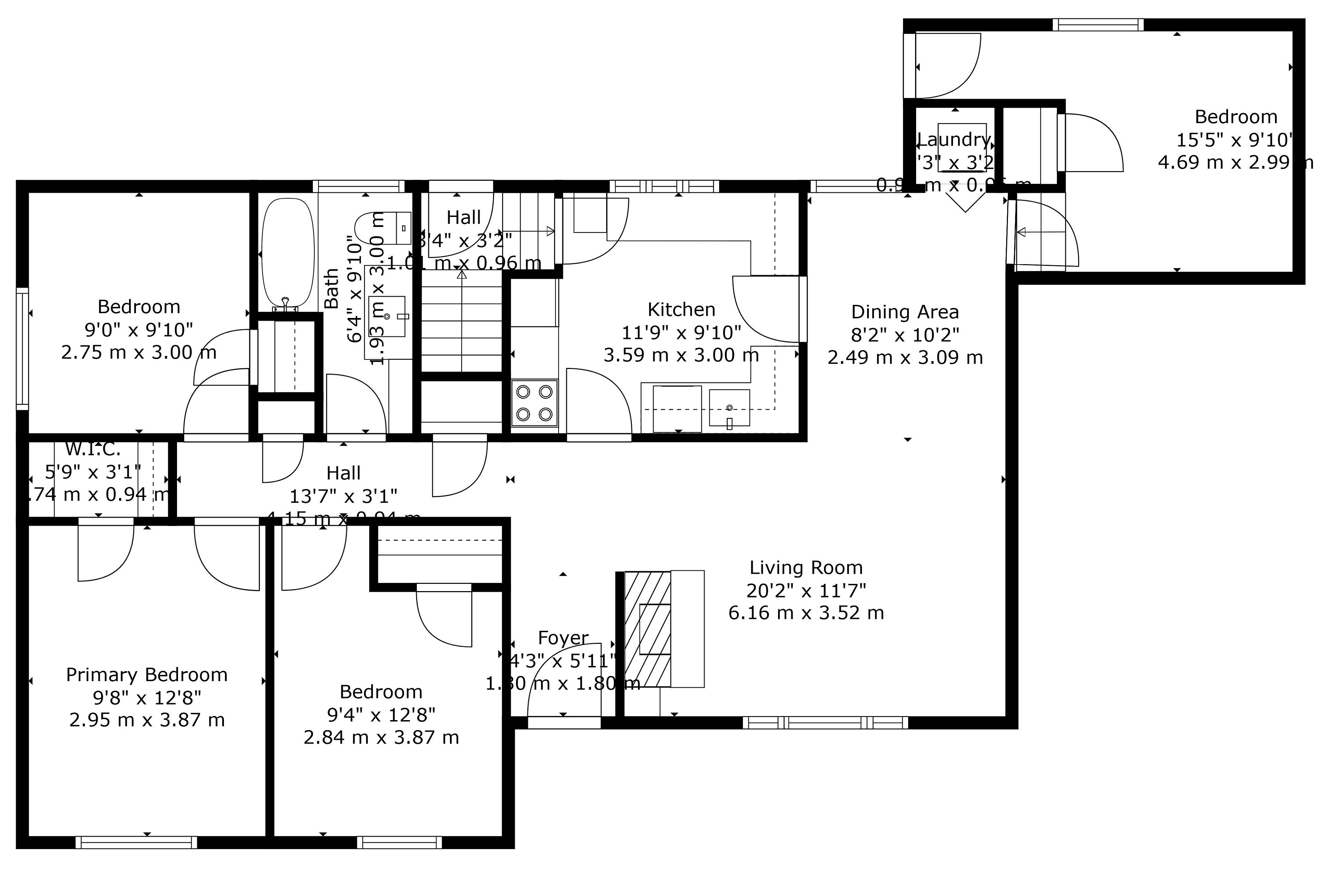
  • Renovated 4-bedroom main floor apartment in a convenient location.
  • Walking distance to Algonquin College and upcoming LRT Station.
  • Heat, water, and lawn care included for hassle-free living.
  • In-unit laundry and no rear neighbors for added privacy.
  • Ideal for students or young professionals with easy commuting options.
Beautifully renovated 4-bedroom, 1-bath main floor apartment in a prime location just minutes walk to algonquin college, the upcoming iris lrt station, and all the amenities of college square! This bright and spacious unit offers incredible convenience with heat, water, and grass cutting all included. Available furnished or unfurnished to suit your needs. Enjoy the comfort of in-unit laundry and a private setting with no rear neighbours, backing directly onto scenic cycling and walking paths along the transitway. Ideal for responsible students or young professionals seeking space, comfort, and accessibility. Easy commuting options by transit, car, or bike. Parking available for up to 2 vehicles.
Listing IDX12965308
Address1240 ADIRONDACK Drive Unit# A
CityParkway Park - Queensway Terrace S and A…
Lease$2,995
Bed / Bath4 / 1 Full
StyleApartment, Duplex
ConstructionBrick
TypeMulti-Family
StatusFor Lease
Subtype DuplexIndoor Features Primary Bedroom - Main Floor, Separate Hydro Meter, EnsuiteInclusions Grounds Maintenance, Exterior Maintenance, HeatAmenities Public Transit, ParkOwnership LeaseholdBasement NoneFoundation ConcreteHeating / Cooling RadiantHeating Fuel GasSewer Sewer
Parking 2.00
ASAP

Thu

23

Apr

Fri

24

Apr

Sat

25

Apr

Sun

26

Apr

Mon

27

Apr

Tue

28

Apr

Wed

29

Apr

Thu

30

Apr

Fri

1

May

Sat

2

May

Sun

3

May

Mon

4

May

Tue

5

May

Wed

6

May

Thu

7

May

Fri

8

May

Sat

9

May

Sun

10

May

Mon

11

May

Tue

12

May

Wed

13

May

Thu

14

May

Fri

15

May

Sat

16

May

Sun

17

May

Mon

18

May

Tue

19

May

Wed

20

May

Thu

21

May

By clicking “Get pre-qualified” and/or 'Submit' you are expressly consenting, in writing, to receive telemarketing and other messages, including artificial or prerecorded voices, via automated calls or texts from jumprealty.ca and up.mortgages at the number you provided above. This consent is not required to purchase any good or service. Message and data rates may apply, frequency varies. Text HELP for help or STOP to cancel. More details in Terms of Use and Privacy Policy.

Listing Agency:  EXP REALTY

* Data is provided courtesy of PROPTX. The information provided herein must only be used by consumers that have a bona fide interest in the purchase, sale, or lease of real estate and may not be used for any commercial purpose or any other purpose. The information is deemed reliable but is not guaranteed accurate by PROPTX.

Hospital
Parks
Schools
Place of Worship
Please select an amenity above to view a list.

Recommended Properties

Loading...
1240 Adirondack Drive Unit# A
Parkway Park - Queensway Terrace S and Area , Ontario
4 1 $2,995
Get more info