For Sale - 1247 Old 8 Highway, Hamilton, Ontario

Est payment $3,880/mo
Views   1
Time on Jump  1 days
  • Prime commercially zoned land in Sheffield with high visibility.
  • Flexible zoning allows for various industrial or commercial uses.
  • Excellent road frontage and access to key transportation routes.
  • Strategic location near Highway 401 and Highway 8.
  • Limited industrial land available, offering strong investment potential.



An exceptional opportunity to acquire commercially zoned land in the heart of sheffield, ontario. Situated along a high visibility stretch of old highway 8, this expansive parcel offers flexible industrial/commercial zoning, making it ideal for a wide range of uses including warehousing, contractor yard, light manufacturing, equipment storage, or future development. The property benefits from excellent road frontage and easy access to nearby transportation routes, including highway 401 and highway 8, connecting cambridge, hamilton, and the wider golden horseshoe region. With limited industrial land inventory in the area, this site presents strong long-term investment potential or a perfect location for an owner-user seeking room to grow.
Listing IDX12972380
Address1247 Old 8 Highway
CityHamilton, Ontario
Price$808,000
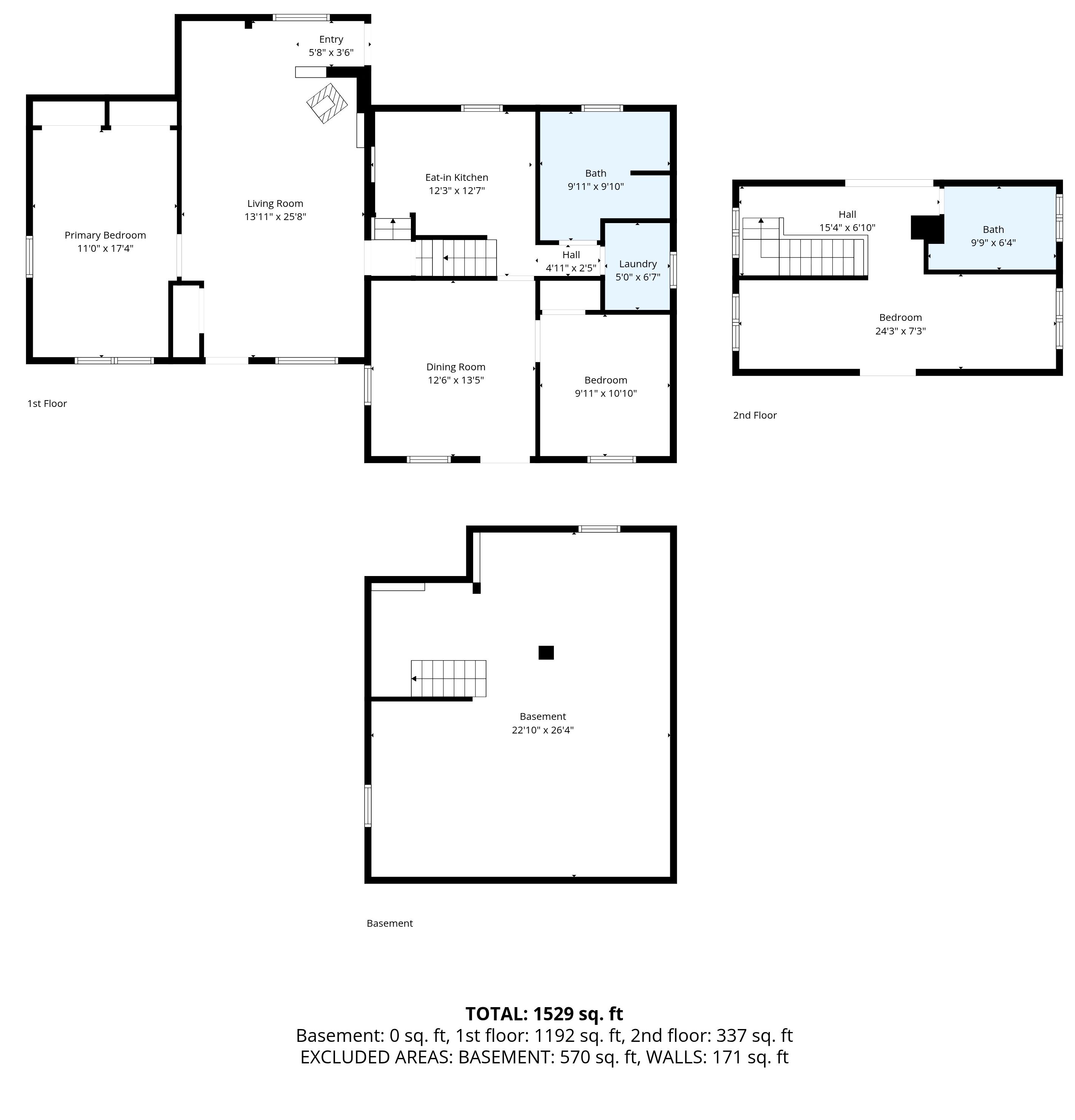
Bed / Bath3 / 2 Full
Style1 1/2 Storey, Detached
ConstructionAluminum Siding, Brick
TypeResidential
StatusFor Sale
Subtype DetachedIndoor Features Primary Bedroom - Main Floor, Sewage Pump, Water HeaterAmenities Clear View, Level, Place Of Worship, Rec./Commun.Centre, Wooded/TreedOwnership FreeholdBasement Full, UnfinishedFoundation BlockHeating / Cooling Forced AirHeating Fuel GasSewer Septic
Parking 8.00
ASAP

Thu

9

Apr

Fri

10

Apr

Sat

11

Apr

Sun

12

Apr

Mon

13

Apr

Tue

14

Apr

Wed

15

Apr

Thu

16

Apr

Fri

17

Apr

Sat

18

Apr

Sun

19

Apr

Mon

20

Apr

Tue

21

Apr

Wed

22

Apr

Thu

23

Apr

Fri

24

Apr

Sat

25

Apr

Sun

26

Apr

Mon

27

Apr

Tue

28

Apr

Wed

29

Apr

Thu

30

Apr

Fri

1

May

Sat

2

May

Sun

3

May

Mon

4

May

Tue

5

May

Wed

6

May

Thu

7

May

By clicking “Get pre-qualified” and/or 'Submit' you are expressly consenting, in writing, to receive telemarketing and other messages, including artificial or prerecorded voices, via automated calls or texts from jumprealty.ca and up.mortgages at the number you provided above. This consent is not required to purchase any good or service. Message and data rates may apply, frequency varies. Text HELP for help or STOP to cancel. More details in Terms of Use and Privacy Policy.

Listing Agency:  REAL BROKER ONTARIO LTD.

* Data is provided courtesy of PROPTX. The information provided herein must only be used by consumers that have a bona fide interest in the purchase, sale, or lease of real estate and may not be used for any commercial purpose or any other purpose. The information is deemed reliable but is not guaranteed accurate by PROPTX.

Hospital
Parks
Schools
Place of Worship
Please select an amenity above to view a list.

Recommended Properties

Loading...
1247 Old 8 Highway
Hamilton , Ontario
3 2 $808,000
Get more info