For Sale - 13 Ignatz Street, South Bruce, Ontario

Est payment $2,726/mo
Views   1
Time on Jump  1 days
  • Custom-built brick bungalow in a quiet residential area.
  • Backs onto a recreational park with plenty of activities.
  • Spacious finished recreation room with a cozy sitting area.
  • Large eat-in kitchen with access to a sizable composite deck.
  • Bonus workshop under the garage with great outdoor access.



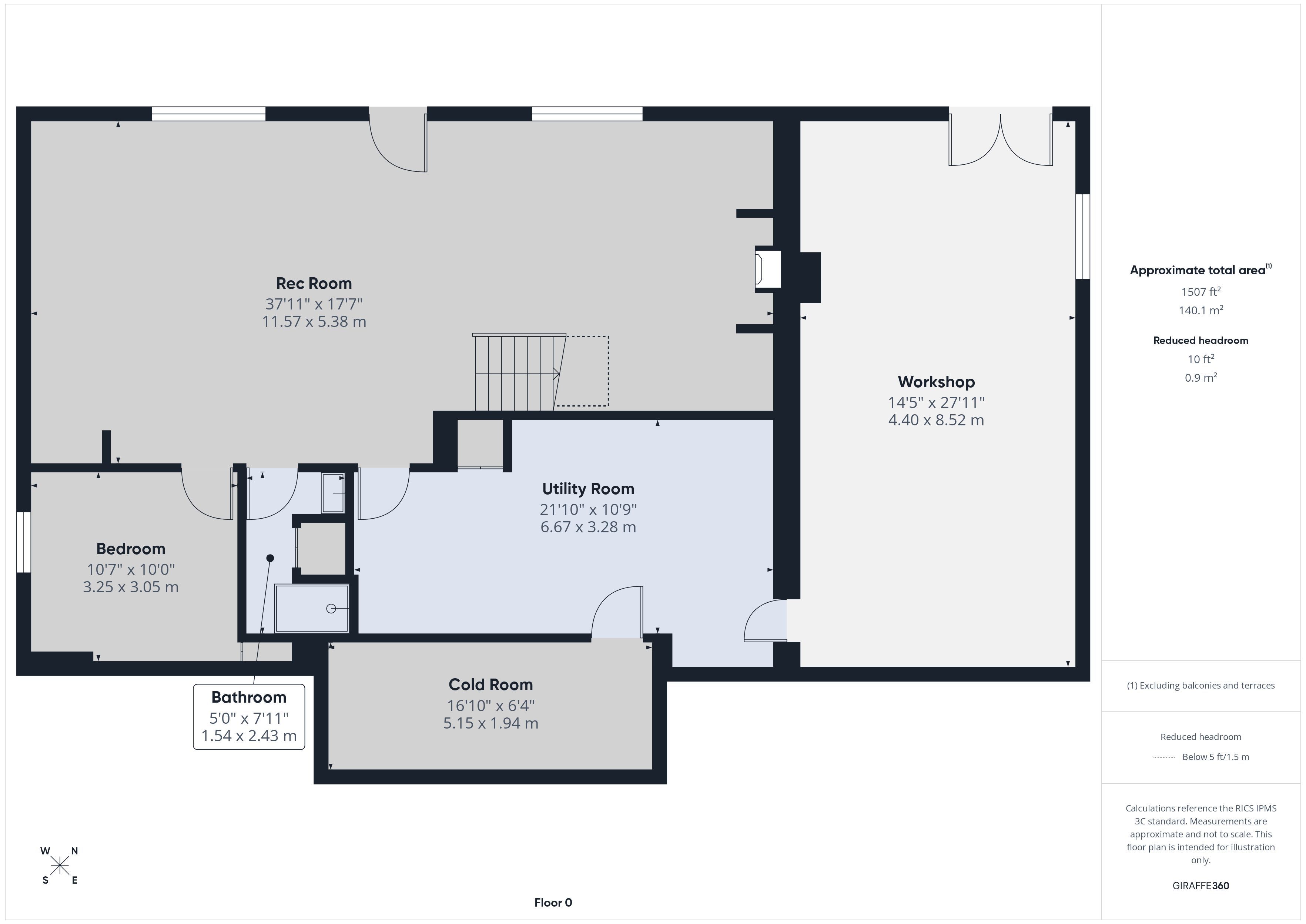
This solid custom-built brick bungalow, constructed in 1982 by the current owners, boasts a prime location on a quiet residential street. The property backs onto a recreational park providing a playground, ball diamonds, tennis courts, horseshoe pits and is just a short distance to schools, a medical centre, and downtown amenities. Designed with care, the home features quality construction, a practical floorplan, and spacious rooms throughout. The eat-in kitchen offers convenient access to a sizeable composite deck, handy for summer bbq's and with an incredible view. The main floor also includes a generous living room, two comfortable bedrooms, a full bath, and laundry facilities for added convenience. Downstairs, you will find an expansive finished recreation room featuring a cozy sitting area with gas stove, bright windows, a spot for your pool table and a walkout to the covered porch and rear yard. This lower level also contains a third bedroom, an additional full bath, utility and cold rooms. And here's the bonus you'll be surprised to find... A spacious workshop located under the garage, which also offers a walk-out to the rear yard. With attractive curb appeal, generous yard and the same owners since its construction, this well-maintained and well-loved home is ready for a new family to make it their own and create lasting memories.
Listing IDX12814350
Address13 Ignatz Street
CitySouth Bruce, Ontario
Price$549,900
Bed / Bath3 / 2 Full
StyleBungalow, Detached
ConstructionBrick, Vinyl Siding
TypeResidential
StatusFor Sale
Subtype DetachedIndoor Features Air Exchanger, Auto Garage Door Remote, Central Vacuum, Floor Drain, Primary Bedroom - Main Floor, Storage, Water Heater Owned, Water Softener, WorkbenchOutdoor Features Landscaped, Deck, Privacy, Porch, Year Round LivingAmenities Park, Library, Place Of Worship, Rec./Commun.Centre, SchoolOwnership FreeholdBasement Finished with Walk-OutFoundation ConcreteHeating / Cooling Forced AirHeating Fuel GasSewer Sewer
Parking 5.00
ASAP

Wed

25

Feb

Thu

26

Feb

Fri

27

Feb

Sat

28

Feb

Sun

1

Mar

Mon

2

Mar

Tue

3

Mar

Wed

4

Mar

Thu

5

Mar

Fri

6

Mar

Sat

7

Mar

Sun

8

Mar

Mon

9

Mar

Tue

10

Mar

Wed

11

Mar

Thu

12

Mar

Fri

13

Mar

Sat

14

Mar

Sun

15

Mar

Mon

16

Mar

Tue

17

Mar

Wed

18

Mar

Thu

19

Mar

Fri

20

Mar

Sat

21

Mar

Sun

22

Mar

Mon

23

Mar

Tue

24

Mar

Wed

25

Mar

By clicking “Get pre-qualified” and/or 'Submit' you are expressly consenting, in writing, to receive telemarketing and other messages, including artificial or prerecorded voices, via automated calls or texts from jumprealty.ca and up.mortgages at the number you provided above. This consent is not required to purchase any good or service. Message and data rates may apply, frequency varies. Text HELP for help or STOP to cancel. More details in Terms of Use and Privacy Policy.

Listing Agency:  eXp Realty
Hospital
Parks
Schools
Place of Worship
Please select an amenity above to view a list.

Recommended Properties

Loading...
13 Ignatz Street
South Bruce , Ontario
3 2 $549,900
Get more info