For Sale - 13 Lombard Street, Smiths Falls, Ontario

Est payment $2,833/mo
Views   1
Time on Jump  31 day
  • Classic red brick Victorian across from the Rideau Canal, a UNESCO site.
  • Double heated garage with exceptional workshop space and backyard access.
  • Four spacious bedrooms, two full baths, and second floor laundry for convenience.
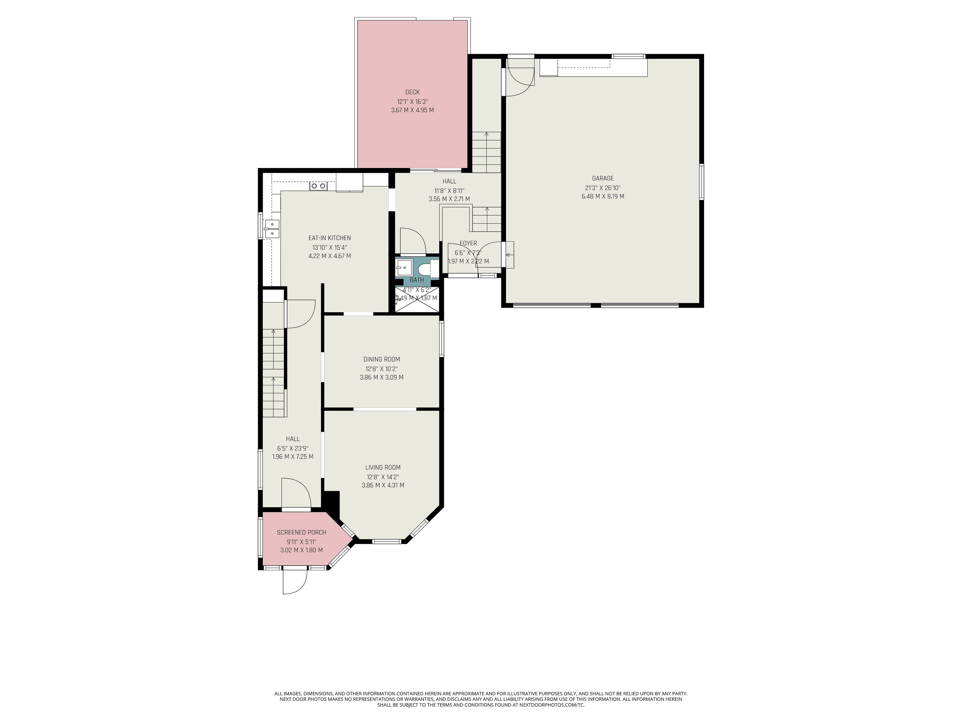
  • Private backyard features a new deck and storage shed for added utility.
  • Walk to parks, the beach, and downtown shops for an active lifestyle.



Welcome to this beautifully maintained red brick victorian, situated directly across from the smiths fallsbasin of the historic rideau canal, a unesco world heritage site. This property offers classic character in alocation that keeps you connected to everything. One of the standout features is the double heatedattached garage. Brick victorians rarely offer this kind of modern convenience. Here, you get exceptionalworkshop space, access to the private and fully fenced backyard, plus a full family room above with a gasfireplace and views of the canal. It's a unique combination of heritage architecture and functional everydayliving. Inside, the home offers four generous bedrooms and two full baths, second floor laundry and a thirdfloor unfinished attic, perfect for additional storage space. The private backyard offers a new rear deck withproptx innovations inc. Assumes no responsibility for the accuracy of any information shown. Copyright proptx innovations inc. 2026roomsa wooden shutter-style privacy screen and a new storage shed. The oversized driveway fits seven vehiclesand includes a gate that opens to expanded parking for a boat or rv. A public boat launch is only momentsaway for instant access to the water. The location delivers an active lifestyle, with the option to enjoy apeaceful and private backyard space. Walk to victoria & centennial park, turtle island, and murphy parkpublic beach. Enjoy festivals, skating, swimming, paddling, and year-round community events just stepsfrom your front door. Downtown is just a short walk with its shops, restaurants, and waterfront paths. Arare chance to own a brick victorian with the garage, space, and lifestyle features that almost never cometogether in one property.
Listing IDX12849422
Address13 Lombard Street
CitySmiths Falls, Ontario
Price$589,900
Bed / Bath4 / 2 Full
Style2-Storey, Detached
ConstructionBrick
TypeResidential
StatusFor Sale
Subtype DetachedIndoor Features Auto Garage Door Remote, On Demand Water Heater, StorageOwnership FreeholdBasement UnfinishedFoundation StoneHeating / Cooling Forced AirHeating Fuel GasSewer Sewer
Parking 6.00
ASAP

Mon

6

Apr

Tue

7

Apr

Wed

8

Apr

Thu

9

Apr

Fri

10

Apr

Sat

11

Apr

Sun

12

Apr

Mon

13

Apr

Tue

14

Apr

Wed

15

Apr

Thu

16

Apr

Fri

17

Apr

Sat

18

Apr

Sun

19

Apr

Mon

20

Apr

Tue

21

Apr

Wed

22

Apr

Thu

23

Apr

Fri

24

Apr

Sat

25

Apr

Sun

26

Apr

Mon

27

Apr

Tue

28

Apr

Wed

29

Apr

Thu

30

Apr

Fri

1

May

Sat

2

May

Sun

3

May

Mon

4

May

By clicking “Get pre-qualified” and/or 'Submit' you are expressly consenting, in writing, to receive telemarketing and other messages, including artificial or prerecorded voices, via automated calls or texts from jumprealty.ca and up.mortgages at the number you provided above. This consent is not required to purchase any good or service. Message and data rates may apply, frequency varies. Text HELP for help or STOP to cancel. More details in Terms of Use and Privacy Policy.

Listing Agency:  CENTURY 21 SYNERGY REALTY INC.

* Data is provided courtesy of PROPTX. The information provided herein must only be used by consumers that have a bona fide interest in the purchase, sale, or lease of real estate and may not be used for any commercial purpose or any other purpose. The information is deemed reliable but is not guaranteed accurate by PROPTX.

Hospital
Parks
Schools
Place of Worship
Please select an amenity above to view a list.

Recommended Properties

Loading...
13 Lombard Street
Smiths Falls , Ontario
4 2 $589,900
Get more info