For Lease - 130 River Street Unit# 2302, Toronto, Ontario

Views   1
Time on Jump  1 days
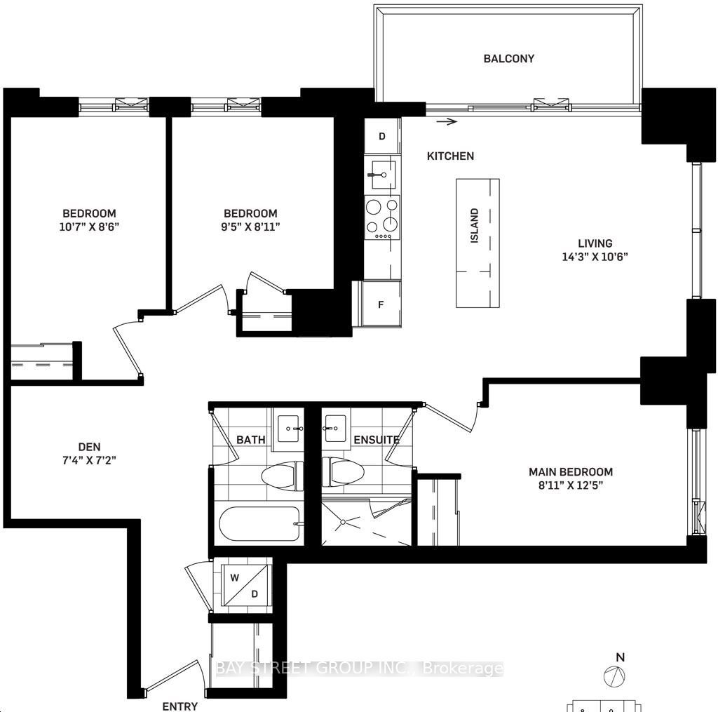
  • Bright corner unit with plenty of natural light and spacious layout.
  • Three large bedrooms plus a den that can be a fourth bedroom.
  • Modern kitchen features built-in appliances and stylish under-cabinet lighting.
  • Convenient location near transit, dining, shops, and parks.
  • Amenities include outdoor terrace, gym, coworking space, and arcade.
Bright south east corner unit at the artworks tower by daniel's. 1024 sqft +balcony featuring 3 spacious bedrooms + den & 2 bathrooms. Den can be converted into 4th bedroom or used as an office. Open concept custom layout with modern kitchen with built-in appliances, centre island & under cabinet lighting. Huge windows allowing lots of light in closets with mirror closer,parking + locker, water & heat included! Welcome to regent park living at the corner of river st. & dundas st. E. Minutes to ryerson university, dundas square, grocery stores, great restaurants & parks. Amenities incl outdoor terrace, coworking space, mega gym, and arcade. New ontario subway line will have moss park station.
Listing IDC12941852
Address130 River Street Unit# 2302
CityToronto, Ontario
Lease$3,499
Bed / Bath4 / 2 Full
StyleApartment, Condo Apartment
ConstructionConcrete
TypeCondominium
StatusFor Lease
Subtype Condo ApartmentIndoor Features Built-In Oven, Carpet Free, Countertop Range, EnsuiteInclusions Building Insurance, Building Maintenance, Central Air Conditioning, Common Elements, Exterior Maintenance, Heat, Parking, WaterAmenities Clear View, Hospital, Library, Park, Public Transit, SchoolOwnership LeaseholdViews City, ClearBuilding Amenities Concierge, Game Room, Gym, Media Room, Visitor Parking, Rooftop Deck/GardenBasement NoneHeating / Cooling Forced AirHeating Fuel Gas
Parking 1.00
ASAP

Fri

3

Apr

Sat

4

Apr

Sun

5

Apr

Mon

6

Apr

Tue

7

Apr

Wed

8

Apr

Thu

9

Apr

Fri

10

Apr

Sat

11

Apr

Sun

12

Apr

Mon

13

Apr

Tue

14

Apr

Wed

15

Apr

Thu

16

Apr

Fri

17

Apr

Sat

18

Apr

Sun

19

Apr

Mon

20

Apr

Tue

21

Apr

Wed

22

Apr

Thu

23

Apr

Fri

24

Apr

Sat

25

Apr

Sun

26

Apr

Mon

27

Apr

Tue

28

Apr

Wed

29

Apr

Thu

30

Apr

Fri

1

May

By clicking “Get pre-qualified” and/or 'Submit' you are expressly consenting, in writing, to receive telemarketing and other messages, including artificial or prerecorded voices, via automated calls or texts from jumprealty.ca and up.mortgages at the number you provided above. This consent is not required to purchase any good or service. Message and data rates may apply, frequency varies. Text HELP for help or STOP to cancel. More details in Terms of Use and Privacy Policy.

Listing Agency:  ROYAL LEPAGE SIGNATURE REALTY

* Data is provided courtesy of PROPTX. The information provided herein must only be used by consumers that have a bona fide interest in the purchase, sale, or lease of real estate and may not be used for any commercial purpose or any other purpose. The information is deemed reliable but is not guaranteed accurate by PROPTX.

Hospital
Parks
Schools
Place of Worship
Please select an amenity above to view a list.

Recommended Properties

Loading...
130 River Street Unit# 2302
Toronto , Ontario
4 2 $3,499
Get more info