For Sale - 1300 Bay Street Unit# 2nd floor, Toronto, Ontario

Est payment $711/mo
Views   1
Time on Jump  2 day
  • Turn-key wellness business ready for immediate operation in prime Yorkville location.
  • Spacious ~2,448 sq. ft. with upscale spa functionality and brand presence.
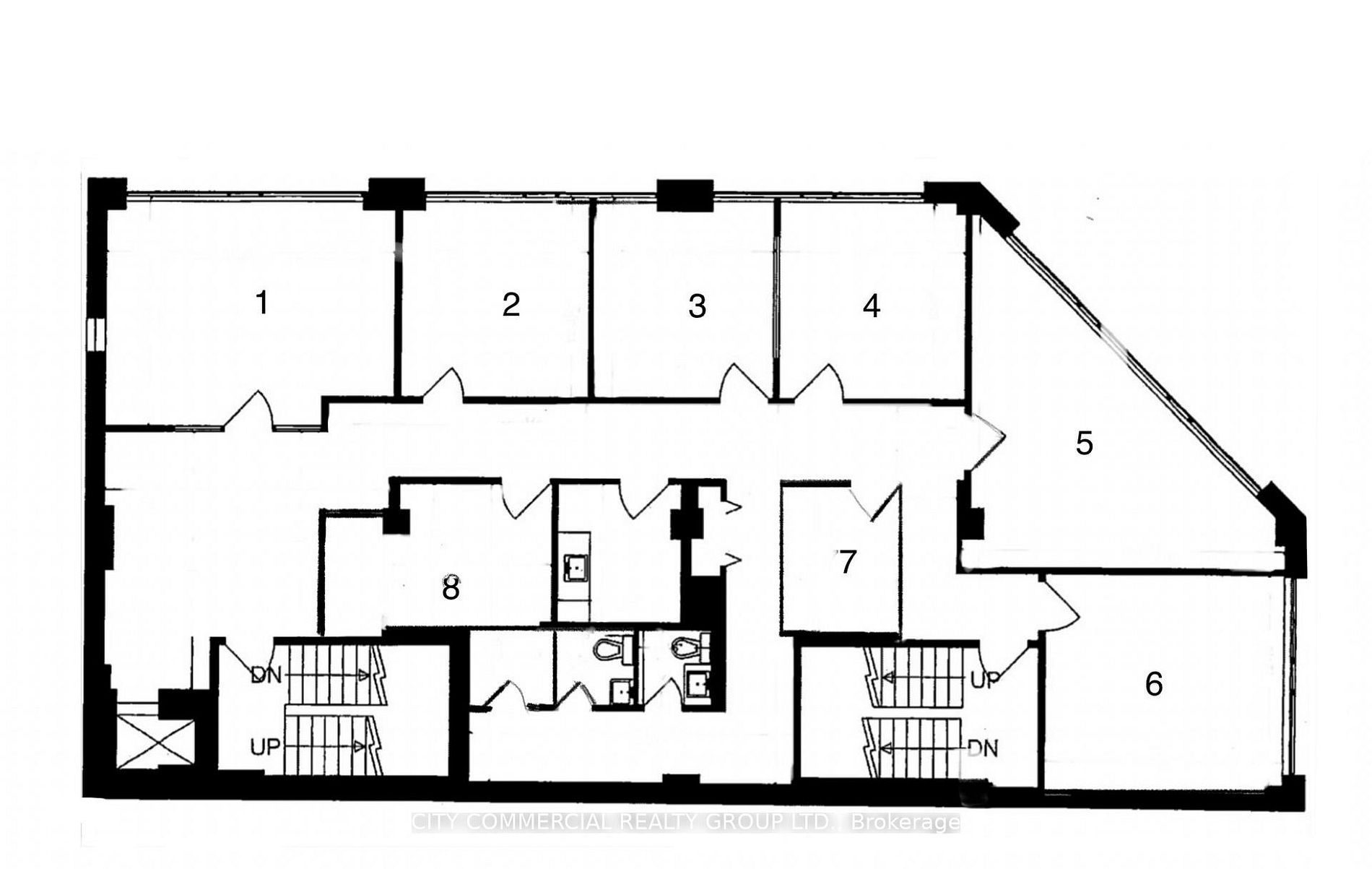
  • Eight versatile treatment rooms with large windows and city views.
  • Private elevator access and elegantly designed staircase for client flow.
  • Includes sophisticated reception area, kitchen, and dedicated storage space.



Turn-key luxury wellness business in prime yorkville location an exceptional opportunity to acquire a fully built-out, turn-key rmt massage and skincare center in the heart of yorkville-one of toronto's most prestigious and high-traffic destinations. Situated at 1300 bay street, this expansive ~2,448 sq. Ft. Space seamlessly blends upscale spa functionality with premium brand presence. The unit features exclusive private elevator access directly to the floor, complemented by an elegantly designed staircase for convenient client flow. The functional layout includes 8 versatile treatment rooms or private offices, with 6 bright rooms offering large windows, abundant natural light, and impressive city views. Thoughtfully designed for both comfort and efficiency, the premises also include a sophisticated reception and waiting lounge, 2 washrooms, a fully equipped kitchen, and dedicated storage. Recently completed high-quality leasehold improvements create a modern, upscale environment, allowing for immediate operation without the time and cost of build-out. Ideal for owner-operators or investors seeking a strong presence in toronto's luxury wellness market. Rare opportunity to step into a fully built, ready-to-operate space in one of the city's most sought-after locations.
Listing IDC12967974
Address1300 Bay Street Unit# 2nd floor
CityToronto, Ontario
Price$148,000
StyleSale Of Business
TypeBusiness
StatusFor Sale
Subtype Sale Of BusinessHeating / Cooling Baseboard
ASAP

Sat

11

Apr

Sun

12

Apr

Mon

13

Apr

Tue

14

Apr

Wed

15

Apr

Thu

16

Apr

Fri

17

Apr

Sat

18

Apr

Sun

19

Apr

Mon

20

Apr

Tue

21

Apr

Wed

22

Apr

Thu

23

Apr

Fri

24

Apr

Sat

25

Apr

Sun

26

Apr

Mon

27

Apr

Tue

28

Apr

Wed

29

Apr

Thu

30

Apr

Fri

1

May

Sat

2

May

Sun

3

May

Mon

4

May

Tue

5

May

Wed

6

May

Thu

7

May

Fri

8

May

Sat

9

May

By clicking “Get pre-qualified” and/or 'Submit' you are expressly consenting, in writing, to receive telemarketing and other messages, including artificial or prerecorded voices, via automated calls or texts from jumprealty.ca and up.mortgages at the number you provided above. This consent is not required to purchase any good or service. Message and data rates may apply, frequency varies. Text HELP for help or STOP to cancel. More details in Terms of Use and Privacy Policy.

Listing Agency:  MASTER`S TRUST REALTY INC.

* Data is provided courtesy of PROPTX. The information provided herein must only be used by consumers that have a bona fide interest in the purchase, sale, or lease of real estate and may not be used for any commercial purpose or any other purpose. The information is deemed reliable but is not guaranteed accurate by PROPTX.

Hospital
Parks
Schools
Place of Worship
Please select an amenity above to view a list.

Recommended Properties

Loading...
1300 Bay Street Unit# 2nd Floor
Toronto , Ontario
$148,000
Get more info