For Lease - 13025 Yonge Street Unit# 109, Richmond Hill, Ontario

Views   1
Time on Jump  3 day
  • Former cafe space ready for lease in a busy plaza.
  • Pylon signage available for great visibility on Yonge Street.
  • Ample parking makes it convenient for customers and staff.
  • Surrounded by a mix of services, including medical and retail.
  • Versatile space suitable for various business types like QSR or retail.
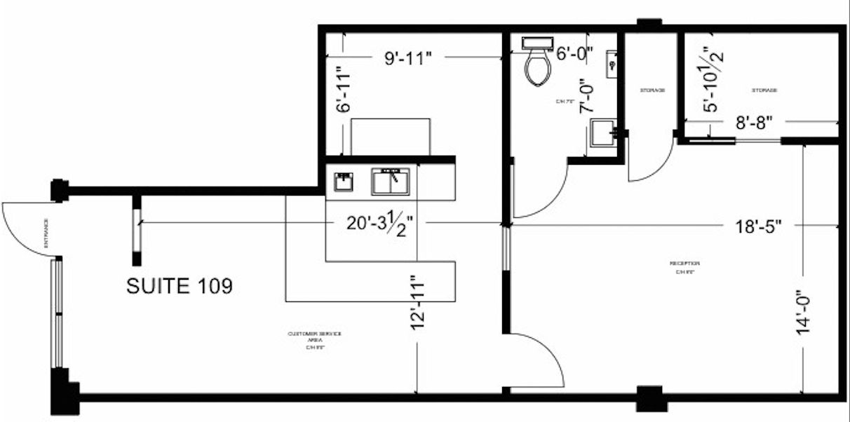
Former cafe available for lease situated in richmond hill's oak ridges plaza with pylon signage available along yonge street. Ample parking on site. Other tenants include medical clinic, hair salon, educational services, subway, retail and professional offices. Ideal for qsr, coffee shop, health services, or general retail and office use.
Listing IDN12860768
Address13025 Yonge Street Unit# 109
CityRichmond Hill, Ontario
Lease$28
Bath1 Full
StyleCommercial Retail
TypeIndustrial/Commercial
StatusFor Lease
Subtype Commercial RetailOwnership LeaseholdHeating / Cooling Electric Forced Air
ASAP

Fri

13

Mar

Sat

14

Mar

Sun

15

Mar

Mon

16

Mar

Tue

17

Mar

Wed

18

Mar

Thu

19

Mar

Fri

20

Mar

Sat

21

Mar

Sun

22

Mar

Mon

23

Mar

Tue

24

Mar

Wed

25

Mar

Thu

26

Mar

Fri

27

Mar

Sat

28

Mar

Sun

29

Mar

Mon

30

Mar

Tue

31

Mar

Wed

1

Apr

Thu

2

Apr

Fri

3

Apr

Sat

4

Apr

Sun

5

Apr

Mon

6

Apr

Tue

7

Apr

Wed

8

Apr

Thu

9

Apr

Fri

10

Apr

By clicking “Get pre-qualified” and/or 'Submit' you are expressly consenting, in writing, to receive telemarketing and other messages, including artificial or prerecorded voices, via automated calls or texts from jumprealty.ca and up.mortgages at the number you provided above. This consent is not required to purchase any good or service. Message and data rates may apply, frequency varies. Text HELP for help or STOP to cancel. More details in Terms of Use and Privacy Policy.

Listing Agency:  THE BEHAR GROUP REALTY INC.

* Data is provided courtesy of PROPTX. The information provided herein must only be used by consumers that have a bona fide interest in the purchase, sale, or lease of real estate and may not be used for any commercial purpose or any other purpose. The information is deemed reliable but is not guaranteed accurate by PROPTX.

Hospital
Parks
Schools
Place of Worship
Please select an amenity above to view a list.

Recommended Properties

Loading...
13025 Yonge Street Unit# 109
Richmond Hill , Ontario
1 $28
Get more info