For Sale - 133 Benadir Avenue, Caledon, Ontario

Est payment $4,701/mo
Views   1
Time on Jump  1 days
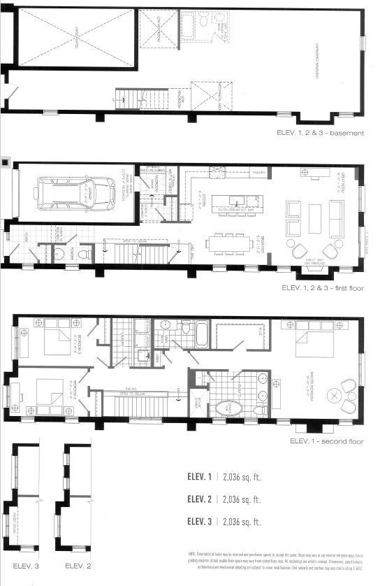
  • Spacious end-unit townhome with approximately 2,036 square feet of living space.
  • Bright open-concept layout with 9 foot ceilings and upgraded flooring.
  • Modern kitchen featuring a large quartz island for casual dining and meal prep.
  • Oversized lot perfect for outdoor gatherings and added privacy.
  • Conveniently located near highways, schools, parks, and local amenities.



Welcome home. Nestled in the prestigious southfields village community of caledon, this exceptional freehold ((no fee!) end-unit townhome featuring the sought after sundial 9 model with approximately 2,036 square feet delivers a rare combination of space, natural light, privacy, and long-term value. Step inside to experience a bright, open-concept layout enhanced by 9 foot ceilings on the main floor and upgraded smooth ceilings throughout, creating a refined and airy atmosphere. The main level is further elevated with upgraded hardwood flooring and hardwood stairs, complemented by a stylish upgraded powder room for added convenience. The spacious ground-floor living room is anchored by a beautiful, cozy gas fireplace, perfect for everyday living and effortless entertaining. At the heart of the home, the upgraded kitchen showcases a large quartz island, ideal for meal preparation, casual dining, and gathering with family and guests. The premium end-unit positioning allows for abundant natural light to flow throughout the home, enhancing its warm and inviting feel. Upstairs, the sun-filled oversized primary retreat offers a generous walk-in closet and a spa-like 4-piece ensuite. Two additional bedrooms, a bathroom and a second level laundry room adds practicality and ease to daily living. Outside, the oversized lot provides exceptional outdoor space rarely found in townhomes-perfect for hosting large gatherings, summer entertaining, or simply enjoying added privacy. The basement with its upgraded oversized windows presents outstanding future potential to create additional bedroom(s), expanded living space, or a potential income-generating suite (buyer/buyer agent to verify). Ideally located just minutes from major highways, schools, parks, and everyday amenities, this home offers both convenience and lifestyle in caledon's most sought-after communities.
Listing IDW13023266
Address133 Benadir Avenue
CityCaledon, Ontario
Price$979,000
Bed / Bath3 / 3 Full
Style2-Storey, Att/Row/Townhouse
ConstructionBrick
Land Size3412.16
TypeResidential
StatusFor Sale
Subtype Att/Row/TownhouseIndoor Features Auto Garage Door Remote, Central Vacuum, Ventilation SystemAmenities Fenced YardOwnership FreeholdBasement UnfinishedFoundation ConcreteHeating / Cooling Forced AirHeating Fuel GasSewer Sewer
Parking 3.00
ASAP

Wed

22

Apr

Thu

23

Apr

Fri

24

Apr

Sat

25

Apr

Sun

26

Apr

Mon

27

Apr

Tue

28

Apr

Wed

29

Apr

Thu

30

Apr

Fri

1

May

Sat

2

May

Sun

3

May

Mon

4

May

Tue

5

May

Wed

6

May

Thu

7

May

Fri

8

May

Sat

9

May

Sun

10

May

Mon

11

May

Tue

12

May

Wed

13

May

Thu

14

May

Fri

15

May

Sat

16

May

Sun

17

May

Mon

18

May

Tue

19

May

Wed

20

May

By clicking “Get pre-qualified” and/or 'Submit' you are expressly consenting, in writing, to receive telemarketing and other messages, including artificial or prerecorded voices, via automated calls or texts from jumprealty.ca and up.mortgages at the number you provided above. This consent is not required to purchase any good or service. Message and data rates may apply, frequency varies. Text HELP for help or STOP to cancel. More details in Terms of Use and Privacy Policy.

Listing Agency:  RIGHT AT HOME REALTY

* Data is provided courtesy of PROPTX. The information provided herein must only be used by consumers that have a bona fide interest in the purchase, sale, or lease of real estate and may not be used for any commercial purpose or any other purpose. The information is deemed reliable but is not guaranteed accurate by PROPTX.

Hospital
Parks
Schools
Place of Worship
Please select an amenity above to view a list.

Recommended Properties

Loading...
133 Benadir Avenue
Caledon , Ontario
3 3 $979,000
Get more info