For Lease - 1350 Ellesmere Road Unit# 520, Toronto, Ontario

Views   1
Time on Jump  59 day
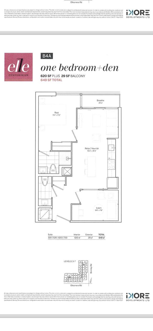
  • Modern 1-bedroom condo with a spacious den, easily usable as a second bedroom.
  • Thoughtfully designed open-concept living space perfect for comfort and entertaining.
  • Sleek kitchen featuring quality finishes and a functional island.
  • Two bathrooms for added convenience, ideal for guests or shared living.
  • Great location near transit, shopping, parks, and amenities in a vibrant neighborhood.
Discover luxury living at its finest in the east end of toronto, elle condo building, located at brimley rd. & ellesmere rd. This contemporary masterpiece offers a perfect blend of sophistication and convenience, providing residents with an unparalleled urban lifestyle with stunning architectural design and state-of-the-art amenities. This 1-bedroom + a spacious den was redesigned by the builder to facilitate a 2nd bedroom with a closet. Loaded with upgrades!! This modern, upgraded condo is in one of scarborough's most desirable communities. Enhanced by the builder's design team, this thoughtfully modified one-bedroom plus oversized den and two-bathroom suite offers a rare and highly functional layout. This unit is ideal for end users or savvy investors. Step into a stylish interior featuring contemporary finishes and an open-concept living and dining area designed for both everyday comfort and easy entertaining. The sleek kitchen with island showcases modern cabinetry and quality finishes, while the conveniences of two bathrooms add flexibility for guests or shared living. Located just minutes from scarborough town centre, ttc, go transit, highway 401, the dvp, shopping, restaurants, parks, and everyday conveniences, this low-mainteance, high demand unit is perfectly positioned in a vibrant and growing neighbourhood. An excellent opportunity you won't want to miss.
Listing IDE12873388
Address1350 Ellesmere Road Unit# 520
CityToronto, Ontario
Lease$2,500
Bed / Bath2 / 2 Full
StyleApartment, Condo Apartment
ConstructionConcrete
TypeCondominium
StatusFor Lease
Subtype Condo ApartmentIndoor Features Carpet Free, In-Suite Laundry, Laundry ClosetInclusions Building InsuranceOwnership LeaseholdBasement NoneHeating / Cooling Forced AirHeating Fuel Gas
Parking 1.00
ASAP

Mon

11

May

Tue

12

May

Wed

13

May

Thu

14

May

Fri

15

May

Sat

16

May

Sun

17

May

Mon

18

May

Tue

19

May

Wed

20

May

Thu

21

May

Fri

22

May

Sat

23

May

Sun

24

May

Mon

25

May

Tue

26

May

Wed

27

May

Thu

28

May

Fri

29

May

Sat

30

May

Sun

31

May

Mon

1

Jun

Tue

2

Jun

Wed

3

Jun

Thu

4

Jun

Fri

5

Jun

Sat

6

Jun

Sun

7

Jun

Mon

8

Jun

By clicking “Get pre-qualified” and/or 'Submit' you are expressly consenting, in writing, to receive telemarketing and other messages, including artificial or prerecorded voices, via automated calls or texts from jumprealty.ca and up.mortgages at the number you provided above. This consent is not required to purchase any good or service. Message and data rates may apply, frequency varies. Text HELP for help or STOP to cancel. More details in Terms of Use and Privacy Policy.

Listing Agency:  RE/MAX PREMIER INC.

* Data is provided courtesy of PROPTX. The information provided herein must only be used by consumers that have a bona fide interest in the purchase, sale, or lease of real estate and may not be used for any commercial purpose or any other purpose. The information is deemed reliable but is not guaranteed accurate by PROPTX.

Hospital
Parks
Schools
Place of Worship
Please select an amenity above to view a list.

Recommended Properties

Loading...
1350 Ellesmere Road Unit# 520
Toronto , Ontario
2 2 $2,500
Get more info