For Lease - 1376 Bank Street Unit# B400, Billings Bridge - Riverside Park and Area, Ontario

Views   1
Time on Jump  47 day
  • Approximately 625 rentable square feet of flexible office space available.
  • Currently configured into two large rooms, adjustable as needed.
  • Full gross lease includes all utilities and operating expenses.
  • Great location near major roads and shopping areas.
  • Building hosts a variety of professional tenants for networking opportunities.
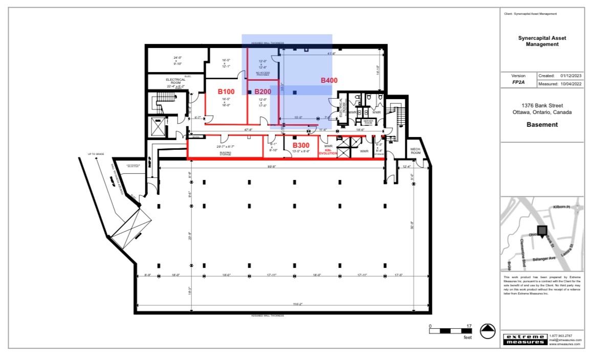
Approx 625 rentable square feet of turn-key office space in basement of well-managed office building! Currently divided into 2 large rooms forming an "l" shape, and can be divided further. Landlord can provide/organize desired fit-up at cost, pro-rated over the lease term! Space is currently used as physiotherapy/osteopathy/rmt wellness practitioners but has wide variety of applications. See marked-up floorplans in tandem with the following description: the proposed new space crops some of the (current) b400 open floor plan and closes it off for owner personal use; walls erected to divide the new space and doors opened between spaces as tenant requires. There is some flexibility re: placement of walls; possible inclusion of all or some gym equipment in the rental. Equipment is not for sale unless tenant is leasing space. All utilities and operating expenses included in the rent - fully gross lease! Escalations of $50/mo/year. Excellent location close to 417, riverside drive,bank street, and billings bridge shopping plaza. Building is home to professional tenants such as law offices, mental wellness practitioners, not-for-profit, technology, etc. Video walk through is available upon request.
Listing IDX12790932
Address1376 Bank Street Unit# B400
CityBillings Bridge - Riverside Park and Are…
Lease$1,700
StyleOffice
TypeIndustrial/Commercial
StatusFor Lease
Subtype OfficeOwnership LeaseholdHeating / Cooling Baseboard
ASAP

Sun

5

Apr

Mon

6

Apr

Tue

7

Apr

Wed

8

Apr

Thu

9

Apr

Fri

10

Apr

Sat

11

Apr

Sun

12

Apr

Mon

13

Apr

Tue

14

Apr

Wed

15

Apr

Thu

16

Apr

Fri

17

Apr

Sat

18

Apr

Sun

19

Apr

Mon

20

Apr

Tue

21

Apr

Wed

22

Apr

Thu

23

Apr

Fri

24

Apr

Sat

25

Apr

Sun

26

Apr

Mon

27

Apr

Tue

28

Apr

Wed

29

Apr

Thu

30

Apr

Fri

1

May

Sat

2

May

Sun

3

May

By clicking “Get pre-qualified” and/or 'Submit' you are expressly consenting, in writing, to receive telemarketing and other messages, including artificial or prerecorded voices, via automated calls or texts from jumprealty.ca and up.mortgages at the number you provided above. This consent is not required to purchase any good or service. Message and data rates may apply, frequency varies. Text HELP for help or STOP to cancel. More details in Terms of Use and Privacy Policy.

Listing Agency:  SYNERCAPITAL INVESTMENT REALTY

* Data is provided courtesy of PROPTX. The information provided herein must only be used by consumers that have a bona fide interest in the purchase, sale, or lease of real estate and may not be used for any commercial purpose or any other purpose. The information is deemed reliable but is not guaranteed accurate by PROPTX.

Hospital
Parks
Schools
Place of Worship
Please select an amenity above to view a list.

Recommended Properties

Loading...
1376 Bank Street Unit# B400
Billings Bridge - Riverside Park and Area , Ontario
$1,700
Get more info