For Lease - 1394 GREELY Lane, Greely - Metcalfe - Osgoode - Vernon and Area, Ontario

Views   1
Time on Jump  79 day
  • Brand-new office/warehouse space available for lease in 2026.
  • Flexible and divisible layout suits various business needs.
  • Street-level access with 10 x 14 overhead doors for convenience.
  • Climate control provided by a 5-ton rooftop unit year-round.
  • Dedicated parking spots for easy access and convenience.
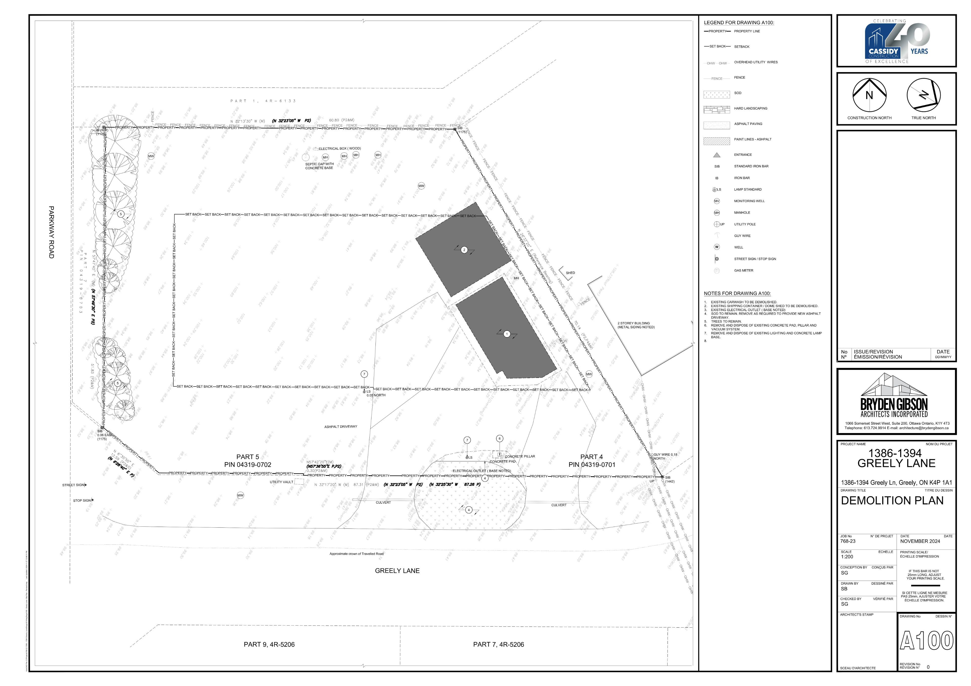
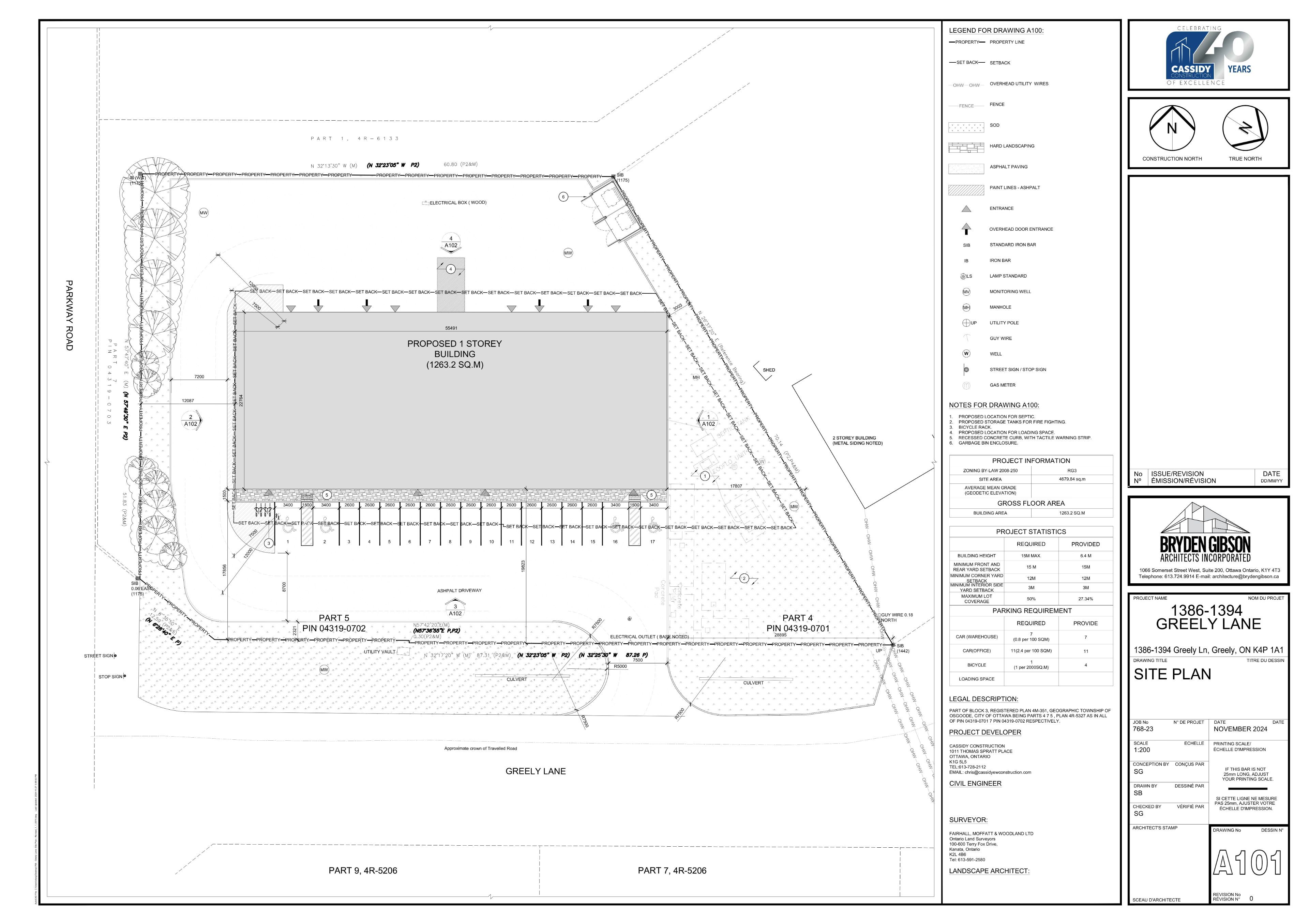
*for lease - 3500 sq ft office/warehouse space to be built x 4 units (14,000+ sq ft total). Available late spring 2026* located in a prime area at greely business park, this brand-new industrial/commercial space will be available for late this year. This flexible and divisible space is ideal for a variety of businesses looking for a modern and highly functional workspace. The building features a street-level bay with 10 x 14 overhead doors for easy access, a 5-ton rooftop unit ensures optimal climate control year-round, 600v phase 3 power, and dedicated parking spots. Great opportunity to get into this area in a brand new building! Call today!!
Listing IDX11961656
Address1394 GREELY Lane
CityGreely - Metcalfe - Osgoode - Vernon and…
Lease$17
StyleIndustrial
TypeIndustrial/Commercial
StatusFor Lease
Subtype IndustrialOwnership LeaseholdHeating / Cooling Gas Forced Air Open
ASAP

Sat

6

Dec

Sun

7

Dec

Mon

8

Dec

Tue

9

Dec

Wed

10

Dec

Thu

11

Dec

Fri

12

Dec

Sat

13

Dec

Sun

14

Dec

Mon

15

Dec

Tue

16

Dec

Wed

17

Dec

Thu

18

Dec

Fri

19

Dec

Sat

20

Dec

Sun

21

Dec

Mon

22

Dec

Tue

23

Dec

Wed

24

Dec

Thu

25

Dec

Fri

26

Dec

Sat

27

Dec

Sun

28

Dec

Mon

29

Dec

Tue

30

Dec

Wed

31

Dec

Thu

1

Jan

Fri

2

Jan

Sat

3

Jan

By clicking “Get pre-qualified” and/or 'Submit' you are expressly consenting, in writing, to receive telemarketing and other messages, including artificial or prerecorded voices, via automated calls or texts from jumprealty.ca and up.mortgages at the number you provided above. This consent is not required to purchase any good or service. Message and data rates may apply, frequency varies. Text HELP for help or STOP to cancel. More details in Terms of Use and Privacy Policy.

Listing Agency:  ALL/PRO REAL ESTATE LTD.
Hospital
Parks
Schools
Place of Worship
Please select an amenity above to view a list.

Recommended Properties

Loading...
1394 Greely Lane
Greely - Metcalfe - Osgoode - Vernon and Area , Ontario
$17
Get more info