For Lease - 1400 Ritson Road, Oshawa, Ontario

Views   1
Time on Jump  95 day
  • Turnkey clinic space available at an affordable rate for medical professionals.
  • Four separate units totaling approximately 7,000 sq ft for flexible use.
  • Includes all utilities and maintenance for stress-free operation.
  • Prime location near educational institutions and new subdivisions.
  • High patient population with various medical tenants in the building.
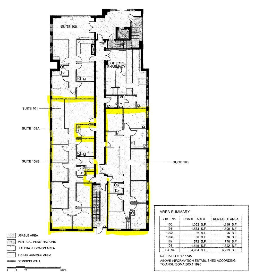
Calling all family medicine clinics! $25/sq ft + hst all in!! Take advantage of the prime opportunity to move into a turnkey clinic at a massive discount! 4 separate units on first and second floors totaling approximately 7000sq ft. Use as much space as you need - first come first serve! Suite 101 - 1,809 sq. Ft. Suite 103 - 1,792 sq. Ft. Suite 202 - 493 sq. Ft. Suite 205 - 2,855 sq. Ft. Other medical professionals and retailers also welcome! Tmi includes all utilities, all common area expenses, janitorial, and ground maintenance. Take advantage of this special rate until january 2026! Other tenants in the building include pharmacy, physiotherapy, dental, orthodontics, pediatrics and hearing clinic. Prime location in north oshawa, just around the corner from the university, college and brand new sub divisions. Steps to taunton and public transit. Huge patient population.
Listing IDE12055358
Address1400 Ritson Road
CityOshawa, Ontario
Lease$25
StyleOffice
TypeIndustrial/Commercial
StatusFor Lease
Subtype OfficeFeatures Irregular LotOwnership LeaseholdBasement 1Heating / Cooling Gas Forced Air OpenSewer Sanitary+Storm
ASAP

Mon

22

Dec

Tue

23

Dec

Wed

24

Dec

Thu

25

Dec

Fri

26

Dec

Sat

27

Dec

Sun

28

Dec

Mon

29

Dec

Tue

30

Dec

Wed

31

Dec

Thu

1

Jan

Fri

2

Jan

Sat

3

Jan

Sun

4

Jan

Mon

5

Jan

Tue

6

Jan

Wed

7

Jan

Thu

8

Jan

Fri

9

Jan

Sat

10

Jan

Sun

11

Jan

Mon

12

Jan

Tue

13

Jan

Wed

14

Jan

Thu

15

Jan

Fri

16

Jan

Sat

17

Jan

Sun

18

Jan

Mon

19

Jan

By clicking “Get pre-qualified” and/or 'Submit' you are expressly consenting, in writing, to receive telemarketing and other messages, including artificial or prerecorded voices, via automated calls or texts from jumprealty.ca and up.mortgages at the number you provided above. This consent is not required to purchase any good or service. Message and data rates may apply, frequency varies. Text HELP for help or STOP to cancel. More details in Terms of Use and Privacy Policy.

Listing Agency:  RE/MAX COMMUNITY REALTY INC.
Hospital
Parks
Schools
Place of Worship
Please select an amenity above to view a list.

Recommended Properties

Loading...
1400 Ritson Road
Oshawa , Ontario
$25
Get more info