For Lease - 147 Liberty Street Unit# 201-202, Toronto, Ontario

Views   1
Time on Jump  196 day
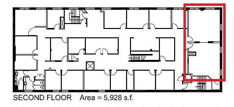
  • 800 sq ft private office available for rent starting October 1, 2025.
  • High ceilings and large windows create a bright and open workspace.
  • Unique wooden door allows flexible use of space as one or two offices.
  • Access to coworking benefits like meeting rooms, cleaning, and high-speed Wi-Fi.
  • 24/7 building access and private parking available for added convenience.
A beautiful 800 sq ft fully-private office available for rent as of october 1, 2025. Lease terms from 3 months - 3 years will be considered. Office has:- hardwood floors,- high ceilings,- large windows facing fraser ave. & liberty st. That allow lots of natural light in, and- a unique wooden door in-unit, which if closed, can be used to separate the office into 2 offices (419 sq ft & 379 sq ft) if desired, or it can be left open if one larger (800 sq ft) office is desired. This gives the tenant the opportunity to create some privacy if desired.- benefits that come with being a part of the fueling station (coworking building/community) including but not limited to free office cleaning 3x weekly, 24/7 access to the building and building amenities that include 3 meeting rooms of various sizes, mail and reception services during office hours, high-speed wi-fi, printer/scanner use, free property maintenance, security on-call, access to a private parking lot (for an additional cost), and more.
Listing IDW12332722
Address147 Liberty Street Unit# 201-202
CityToronto, Ontario
Lease$6,000
StyleOffice
TypeIndustrial/Commercial
StatusFor Lease
Subtype OfficeOwnership LeaseholdHeating / Cooling Gas Forced Air Closed
ASAP

Fri

3

Apr

Sat

4

Apr

Sun

5

Apr

Mon

6

Apr

Tue

7

Apr

Wed

8

Apr

Thu

9

Apr

Fri

10

Apr

Sat

11

Apr

Sun

12

Apr

Mon

13

Apr

Tue

14

Apr

Wed

15

Apr

Thu

16

Apr

Fri

17

Apr

Sat

18

Apr

Sun

19

Apr

Mon

20

Apr

Tue

21

Apr

Wed

22

Apr

Thu

23

Apr

Fri

24

Apr

Sat

25

Apr

Sun

26

Apr

Mon

27

Apr

Tue

28

Apr

Wed

29

Apr

Thu

30

Apr

Fri

1

May

By clicking “Get pre-qualified” and/or 'Submit' you are expressly consenting, in writing, to receive telemarketing and other messages, including artificial or prerecorded voices, via automated calls or texts from jumprealty.ca and up.mortgages at the number you provided above. This consent is not required to purchase any good or service. Message and data rates may apply, frequency varies. Text HELP for help or STOP to cancel. More details in Terms of Use and Privacy Policy.

Listing Agency:  ICI SOURCE REAL ASSET SERVICES INC.

* Data is provided courtesy of PROPTX. The information provided herein must only be used by consumers that have a bona fide interest in the purchase, sale, or lease of real estate and may not be used for any commercial purpose or any other purpose. The information is deemed reliable but is not guaranteed accurate by PROPTX.

Hospital
Parks
Schools
Place of Worship
Please select an amenity above to view a list.

Recommended Properties

Loading...
147 Liberty Street Unit# 201-202
Toronto , Ontario
$6,000
Get more info