For Sale - 15197 Concession 1-2 Road, North Stormont, Ontario

Est payment $2,775/mo
Views   1
Time on Jump  1 days
  • Charming century home with modern updates in a peaceful country setting.
  • Spacious kitchen features granite countertops, an island, and ample natural light.
  • Large addition includes cozy living spaces and a gas fireplace.
  • 1.1-acre yard perfect for kids and pets, plus an above ground pool.
  • Detached 2-car garage and cute shed provide extra storage space.



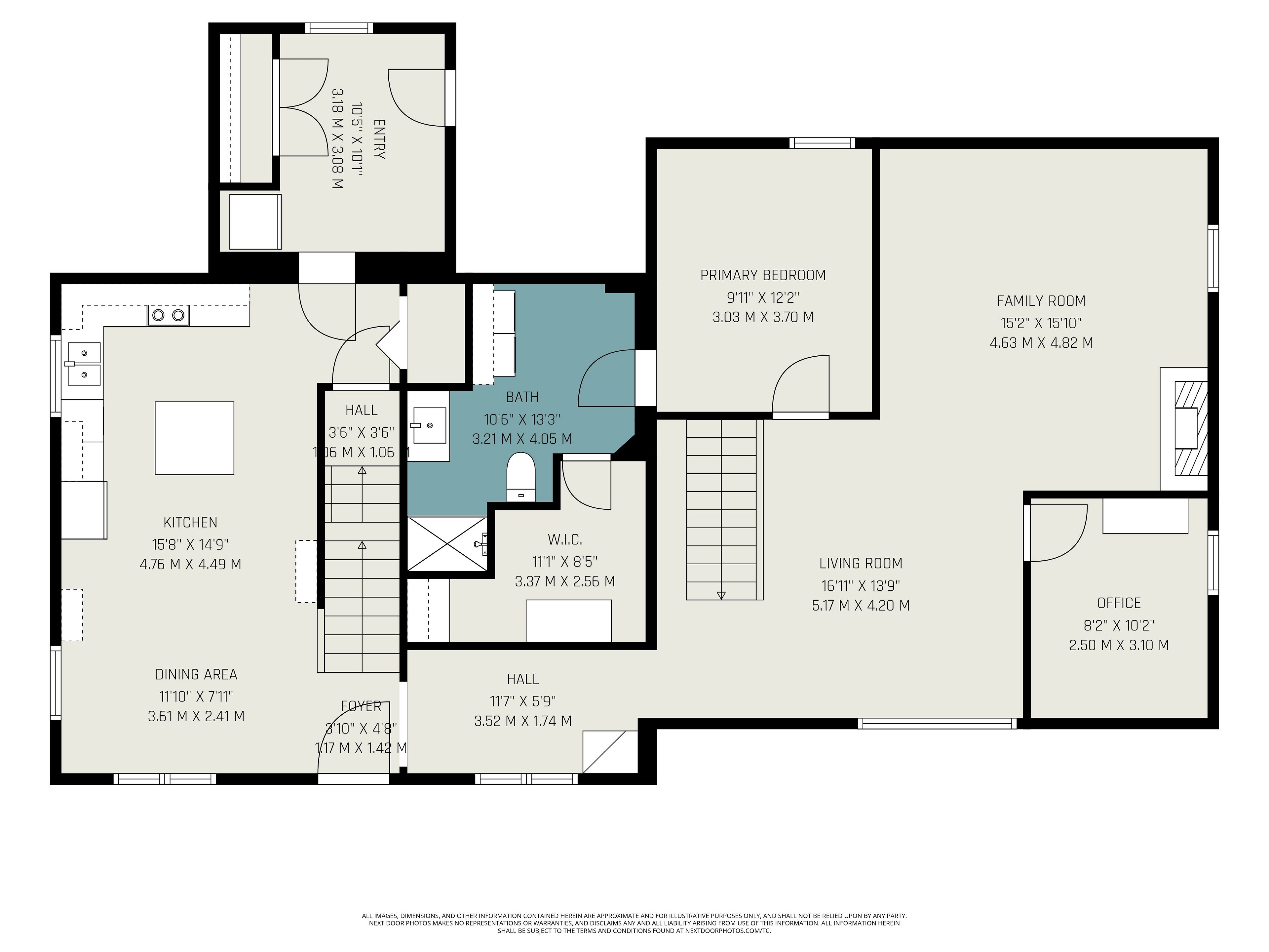
Set in a peaceful country setting, this charming, exceptionally maintained, 4 bedroom, 2 bath, century home with 2 car detached garage blends timeless character with thoughtful modern updates. Enter into the spacious foyer where you will find room for the whole family to keep their winter boots! The kitchen offers granite countertops, an island, and plenty of countertops and natural light. Discover the large addition (2002) that creates two main floor living spaces, one with a cozy gas fireplace. The main level features a spacious primary bedroom complete with a private 3-piece ensuite and laundry. There is also a office on the main level. Head upstairs to find a large full bathroom with separate shower and jet tub, plus 3 more bedrooms. The addition has a full basement, which is partially finished, and includes another room (currently with a bed in it) that is fully finished. The 2 car detached garage offers so much storage, as well as the cute shed at the back of the property. Let the kids and pets run free on this 1. 1 acre yard along a quiet, yet well maintained, side road, only 5 minutes south of finch. Don't forget the above ground pool! Fantastic perks include a generac generator, metal roof, uv light system, furnace (2015) and an incredible paved driveway! This country home is ready for its new family!
Listing IDX12771400
Address15197 Concession 1-2 Road
CityNorth Stormont, Ontario
Price$559,900
Bed / Bath5 / 2 Full
Style2-Storey, Detached
ConstructionVinyl Siding
TypeResidential
StatusFor Sale
Subtype DetachedIndoor Features Auto Garage Door Remote, Primary Bedroom - Main Floor, Sump Pump, Water SoftenerAmenities School Bus RouteOwnership FreeholdWaterfront NoneBasement Full, Partially FinishedFoundation Concrete, StoneHeating / Cooling Forced AirHeating Fuel PropaneSewer Septic
Parking 12.00
ASAP

Tue

10

Feb

Wed

11

Feb

Thu

12

Feb

Fri

13

Feb

Sat

14

Feb

Sun

15

Feb

Mon

16

Feb

Tue

17

Feb

Wed

18

Feb

Thu

19

Feb

Fri

20

Feb

Sat

21

Feb

Sun

22

Feb

Mon

23

Feb

Tue

24

Feb

Wed

25

Feb

Thu

26

Feb

Fri

27

Feb

Sat

28

Feb

Sun

1

Mar

Mon

2

Mar

Tue

3

Mar

Wed

4

Mar

Thu

5

Mar

Fri

6

Mar

Sat

7

Mar

Sun

8

Mar

Mon

9

Mar

Tue

10

Mar

By clicking “Get pre-qualified” and/or 'Submit' you are expressly consenting, in writing, to receive telemarketing and other messages, including artificial or prerecorded voices, via automated calls or texts from jumprealty.ca and up.mortgages at the number you provided above. This consent is not required to purchase any good or service. Message and data rates may apply, frequency varies. Text HELP for help or STOP to cancel. More details in Terms of Use and Privacy Policy.

Listing Agency:  ROYAL LEPAGE TEAM REALTY
Hospital
Parks
Schools
Place of Worship
Please select an amenity above to view a list.

Recommended Properties

Loading...
15197 Concession 1-2 Road
North Stormont , Ontario
5 2 $559,900
Get more info