For Sale - 156 Observatory Lane, Richmond Hill, Ontario

Est payment $4,125/mo
Views   1
Time on Jump  1 days
  • Spacious freehold townhouse with plenty of natural light throughout.
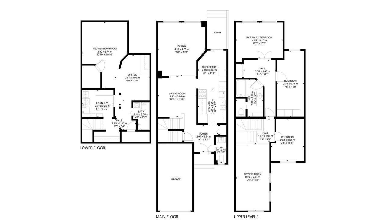
  • Huge family room above the garage can convert to a fourth bedroom.
  • Conveniently located near shops, restaurants, and public transport options.
  • Finished lower level includes a large recreation room for fun and entertainment.
  • Landscaped front and backyard with fencing for privacy and play.



Freehold townhouse! Do not miss this spacious sun-filled freehold townhouse at yonge and weldrick! Huge family room above the garage can be easily converted to large 4th bedroom! Steps to yonge street, hillcrest mall, restaurants, supermarkets, yrt, viva, go station, parks, hwy7 and 407 and future subway station. Landscaped front and backyard. Spacious easy flow layout. Finished lower level offers large recreation room. Pot lights. Fenced backyard. Excellent schools: sixteenth avenue 8. 6, adrienne clarkson(french) 8. 0, alexander mackenzie ib 8. 2. Two parks with playgrounds nearby, school bus stop at observatory and nightstar. Floorplans in photos
Listing IDN12963696
Address156 Observatory Lane
CityRichmond Hill, Ontario
Price$859,000
Bed / Bath4 / 3 Full
Style2-Storey, Att/Row/Townhouse
ConstructionBrick
TypeResidential
StatusFor Sale
Subtype Att/Row/TownhouseIndoor Features Auto Garage Door Remote, Water HeaterOwnership FreeholdBasement FinishedFoundation ConcreteHeating / Cooling Forced AirHeating Fuel GasSewer Sewer
Parking 3.00
ASAP

Thu

9

Apr

Fri

10

Apr

Sat

11

Apr

Sun

12

Apr

Mon

13

Apr

Tue

14

Apr

Wed

15

Apr

Thu

16

Apr

Fri

17

Apr

Sat

18

Apr

Sun

19

Apr

Mon

20

Apr

Tue

21

Apr

Wed

22

Apr

Thu

23

Apr

Fri

24

Apr

Sat

25

Apr

Sun

26

Apr

Mon

27

Apr

Tue

28

Apr

Wed

29

Apr

Thu

30

Apr

Fri

1

May

Sat

2

May

Sun

3

May

Mon

4

May

Tue

5

May

Wed

6

May

Thu

7

May

By clicking “Get pre-qualified” and/or 'Submit' you are expressly consenting, in writing, to receive telemarketing and other messages, including artificial or prerecorded voices, via automated calls or texts from jumprealty.ca and up.mortgages at the number you provided above. This consent is not required to purchase any good or service. Message and data rates may apply, frequency varies. Text HELP for help or STOP to cancel. More details in Terms of Use and Privacy Policy.

Listing Agency:  MAIN STREET REALTY LTD.

* Data is provided courtesy of PROPTX. The information provided herein must only be used by consumers that have a bona fide interest in the purchase, sale, or lease of real estate and may not be used for any commercial purpose or any other purpose. The information is deemed reliable but is not guaranteed accurate by PROPTX.

Hospital
Parks
Schools
Place of Worship
Please select an amenity above to view a list.

Recommended Properties

Loading...
156 Observatory Lane
Richmond Hill , Ontario
4 3 $859,000
Get more info