For Sale - 15756 Niagara Parkway, Niagara-on-the-Lake, Ontario

Est payment $3,961/mo
Views   1
Time on Jump  93 day
  • Peaceful and private living just minutes from historic Old Town Niagara on the Lake.
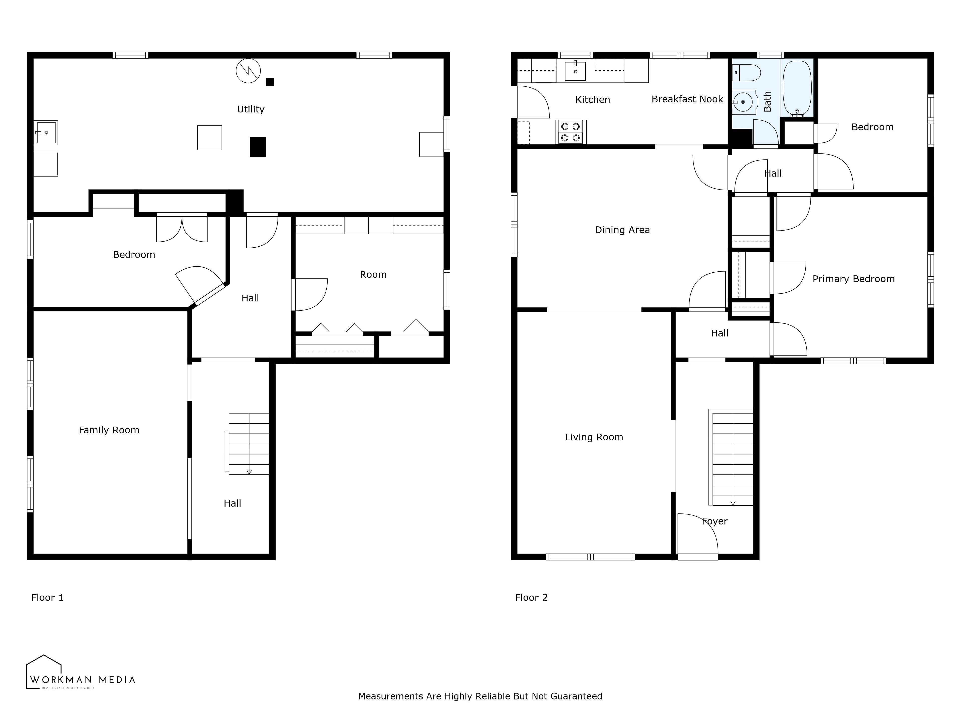
  • Spacious bungalow with 3 bedrooms and a large living/dining area for gatherings.
  • Lower level is nearly finished with a family room and extra bedroom.
  • Bright home with a large picture window enhancing natural light.
  • Deep lot of 198 ft offers ample outdoor space and parking options.



Welcome to 15756 niagara parkway. Peaceful and private living and only minutes to the old town historic area of niagara on the lake. This bungalow has 3 bedrooms total, 1 full bath, large living and dining room, great for those family gatherings and entertaining. The lower level is 80% finished where you will find a family room, 1 bedroom and the laundry area. When you enter the home you will feel how light and bright it is with a large picture window in the front living room! Fabulous opportunity for some light renovations to make it your own. The appliances are newer, ac 2024, new sump pump + back up, owned water heater and the septic has been recently inspected. Plenty of space for parking and a very deep lot at 198 ft! Don't hesitate, come by and visit your new home in niagara on the lake.
Listing IDX12387755
Address15756 Niagara Parkway
CityNiagara-on-the-Lake, Ontario
Price$799,000
Bed / Bath3 / 1 Full
StyleBungalow, Detached
ConstructionVinyl Siding
Land Size0.22
TypeResidential
StatusFor Sale
Subtype DetachedIndoor Features Water Heater OwnedOwnership FreeholdBasement Full, Partially FinishedFoundation Poured ConcreteHeating / Cooling Forced AirHeating Fuel PropaneSewer Septic
Parking 4.00
ASAP

Sun

21

Dec

Mon

22

Dec

Tue

23

Dec

Wed

24

Dec

Thu

25

Dec

Fri

26

Dec

Sat

27

Dec

Sun

28

Dec

Mon

29

Dec

Tue

30

Dec

Wed

31

Dec

Thu

1

Jan

Fri

2

Jan

Sat

3

Jan

Sun

4

Jan

Mon

5

Jan

Tue

6

Jan

Wed

7

Jan

Thu

8

Jan

Fri

9

Jan

Sat

10

Jan

Sun

11

Jan

Mon

12

Jan

Tue

13

Jan

Wed

14

Jan

Thu

15

Jan

Fri

16

Jan

Sat

17

Jan

Sun

18

Jan

By clicking “Get pre-qualified” and/or 'Submit' you are expressly consenting, in writing, to receive telemarketing and other messages, including artificial or prerecorded voices, via automated calls or texts from jumprealty.ca and up.mortgages at the number you provided above. This consent is not required to purchase any good or service. Message and data rates may apply, frequency varies. Text HELP for help or STOP to cancel. More details in Terms of Use and Privacy Policy.

Listing Agency:  RIGHT AT HOME REALTY
Hospital
Parks
Schools
Place of Worship
Please select an amenity above to view a list.

Recommended Properties

Loading...
15756 Niagara Parkway
Niagara-on-the-Lake , Ontario
3 1 $799,000
Get more info