For Lease - 15760 Robin's Hill Road, London East, Ontario

Views   1
Time on Jump  198 day
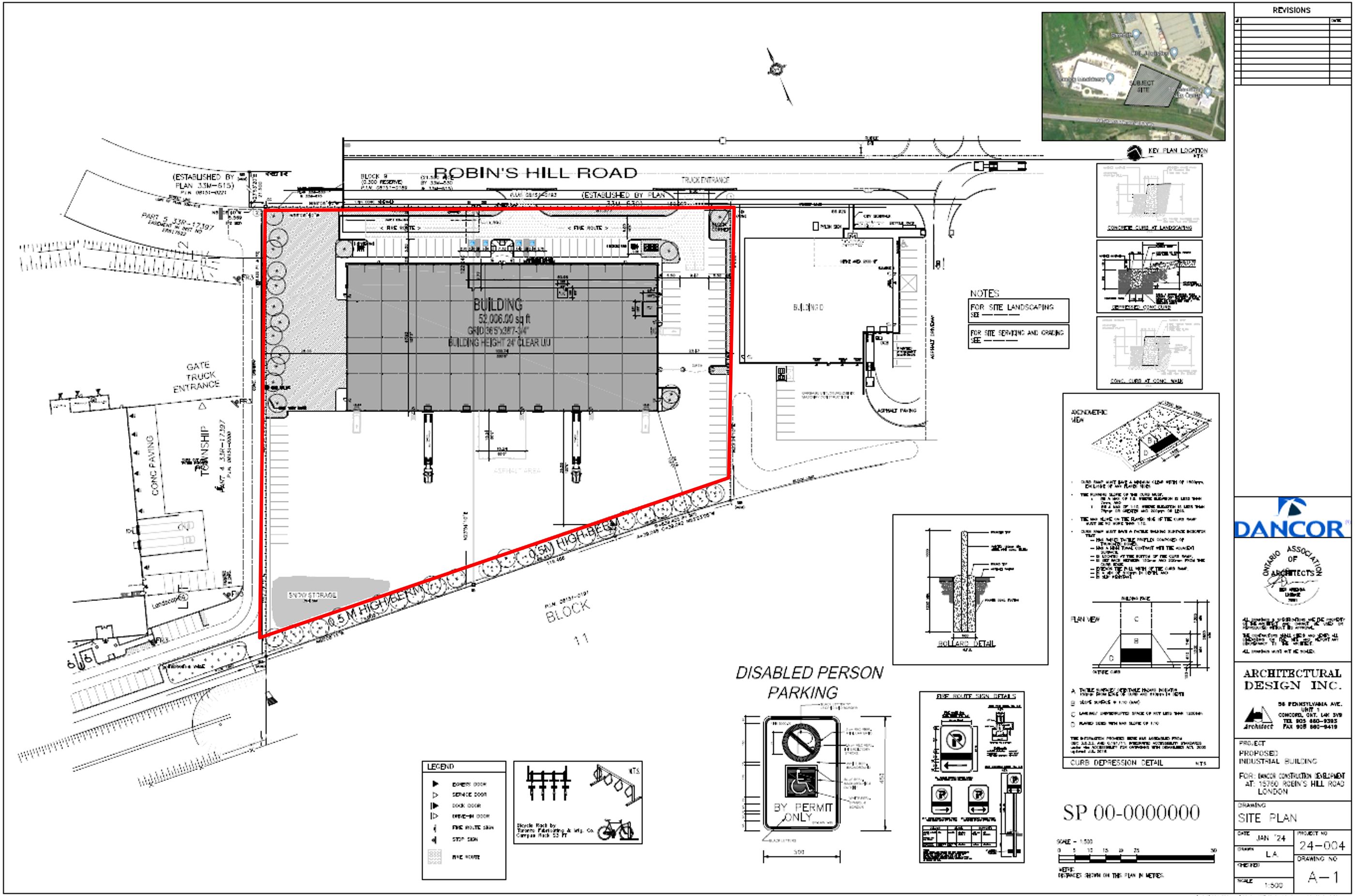
  • Brand new industrial/commercial building site ready for construction.
  • Located in the best area for distribution and trade.
  • Quick access to highways 401 and 402 for logistics.
  • Flexible sizes and configurations available for various needs.
  • Up to 16 truck level doors and high-quality construction.
Brand new industrial/commercial building to be built. Site is graded and ready for construction. Permits will be ready soon. Best location in sw ontario for distribution facilities and foreign trade zone applications. Quick access to hwy's 401 and 402, that provide quick access to a wide range of supply chains and us border. Other sizes and configurations possible. Up to 16 truck level doors and 2 drive doors. High quality construction/ very reputable builder. High power possible. 3% office included in the lease. Dc's not included. **extras** please review available marketing materials before booking a showing. Please do not walk the property without an appointment.
Listing IDX4883297
Address15760 Robin's Hill Road
CityLondon East, Ontario
Lease$17
StyleIndustrial
TypeIndustrial/Commercial
StatusFor Lease
Subtype IndustrialCommunity Features Major Highway, Public TransitOwnership LeaseholdHeating / Cooling RadiantSewer Sanitary+Storm
ASAP

Sat

4

Apr

Sun

5

Apr

Mon

6

Apr

Tue

7

Apr

Wed

8

Apr

Thu

9

Apr

Fri

10

Apr

Sat

11

Apr

Sun

12

Apr

Mon

13

Apr

Tue

14

Apr

Wed

15

Apr

Thu

16

Apr

Fri

17

Apr

Sat

18

Apr

Sun

19

Apr

Mon

20

Apr

Tue

21

Apr

Wed

22

Apr

Thu

23

Apr

Fri

24

Apr

Sat

25

Apr

Sun

26

Apr

Mon

27

Apr

Tue

28

Apr

Wed

29

Apr

Thu

30

Apr

Fri

1

May

Sat

2

May

By clicking “Get pre-qualified” and/or 'Submit' you are expressly consenting, in writing, to receive telemarketing and other messages, including artificial or prerecorded voices, via automated calls or texts from jumprealty.ca and up.mortgages at the number you provided above. This consent is not required to purchase any good or service. Message and data rates may apply, frequency varies. Text HELP for help or STOP to cancel. More details in Terms of Use and Privacy Policy.

Listing Agency:  D. W. GOULD REALTY ADVISORS INC., BROKERAGE

* Data is provided courtesy of PROPTX. The information provided herein must only be used by consumers that have a bona fide interest in the purchase, sale, or lease of real estate and may not be used for any commercial purpose or any other purpose. The information is deemed reliable but is not guaranteed accurate by PROPTX.

Hospital
Parks
Schools
Place of Worship
Please select an amenity above to view a list.

Recommended Properties

Loading...
15760 Robin's Hill Road
London East , Ontario
$17
Get more info