For Sale - 158 North Street, Arran-Elderslie, Ontario

Est payment $4,317/mo
Views   1
Time on Jump  1 days
  • Custom four bedroom bungalow on an extra-large lot for added privacy.
  • Finished double garage with natural gas service for convenience.
  • Main floor laundry and abundant storage throughout the home.
  • Potential for a second dwelling with separate basement entrance.
  • Extensive concrete work and covered porches create great outdoor spaces.



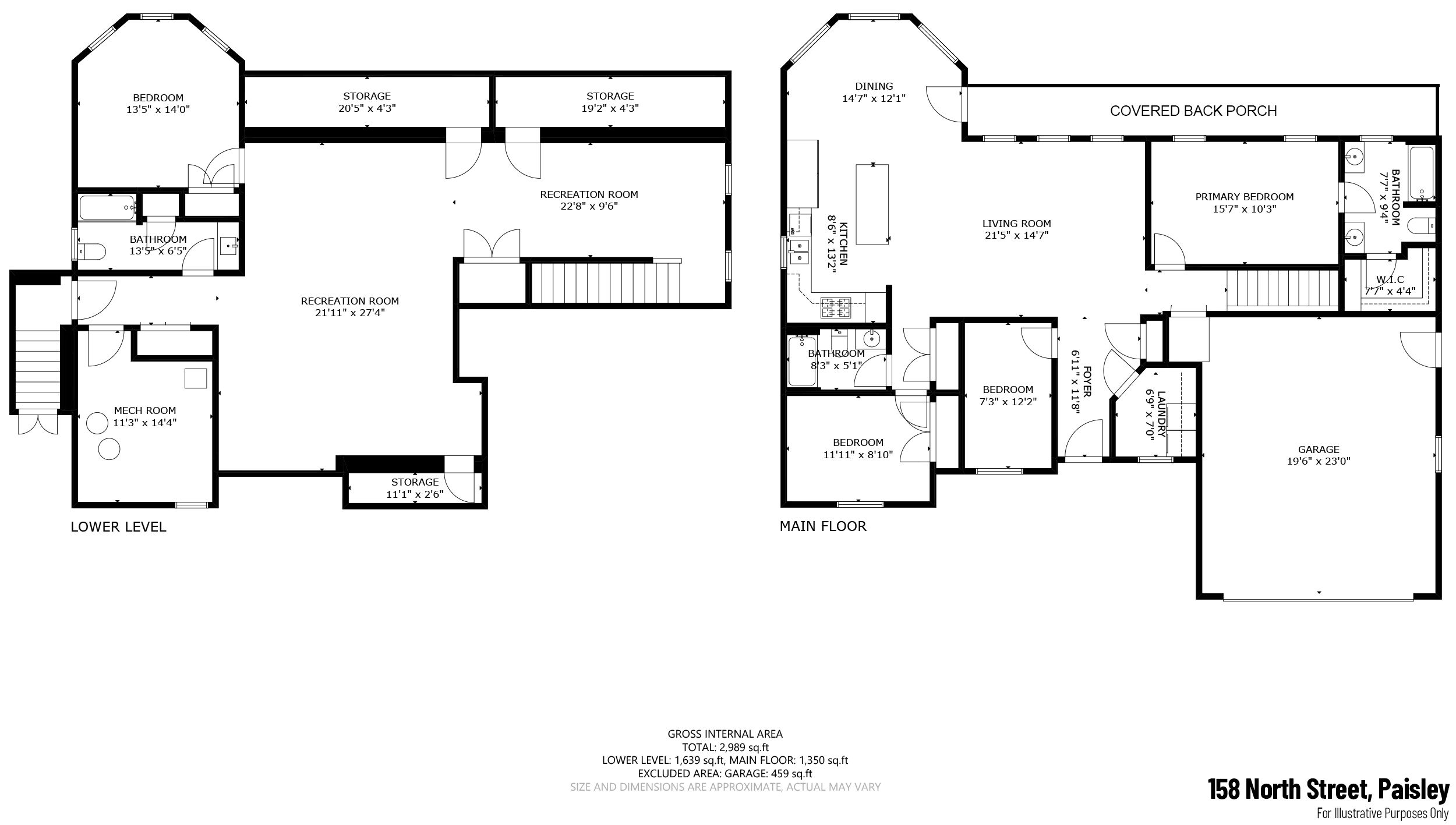
Set on an extra-large lot backing onto a bushed area, this exceptional custom four bedroom bungalow offers a blend of privacy, space, and convenience. The home features a finished attached double garage, natural gas service with additional exterior hookups, and a comprehensive water filtration system. Thoughtfully designed with main floor laundry, abundant storage, a separate basement entrance, and the potential for a second dwelling, it provides flexibility for future needs. The gravel driveway wraps around the home, complimented by extensive concrete work including a large parking pad, entrance walkways, and covered porches with steps as well as three cold cellars. Lightly lived in and showing like brand new, this impressive property is ideally located on the edge of paisley, offering a peaceful space while remaining close to local amenities.
Listing IDX12983646
Address158 North Street
CityArran-Elderslie, Ontario
Price$899,000
Bed / Bath4 / 3 Full
StyleBungalow, Detached
ConstructionStone, Vinyl Siding
Land Size2.26
TypeResidential
StatusFor Sale
Subtype DetachedIndoor Features Air Exchanger, Auto Garage Door Remote, Carpet Free, ERV/HRV, Primary Bedroom - Main Floor, Storage, Ventilation System, Water Heater Owned, Water Softener, Water TreatmentOutdoor Features Privacy, Porch, Year Round LivingAmenities Wooded/Treed, Campground, Library, River/Stream, SchoolOwnership FreeholdViews Forest, Meadow, Trees/WoodsWaterfront NoneBasement Finished, Full, Walk-Up, Separate EntranceFoundation Poured ConcreteHeating / Cooling Heat PumpHeating Fuel GasSewer Septic
Parking 10.00
ASAP

Sat

11

Apr

Sun

12

Apr

Mon

13

Apr

Tue

14

Apr

Wed

15

Apr

Thu

16

Apr

Fri

17

Apr

Sat

18

Apr

Sun

19

Apr

Mon

20

Apr

Tue

21

Apr

Wed

22

Apr

Thu

23

Apr

Fri

24

Apr

Sat

25

Apr

Sun

26

Apr

Mon

27

Apr

Tue

28

Apr

Wed

29

Apr

Thu

30

Apr

Fri

1

May

Sat

2

May

Sun

3

May

Mon

4

May

Tue

5

May

Wed

6

May

Thu

7

May

Fri

8

May

Sat

9

May

By clicking “Get pre-qualified” and/or 'Submit' you are expressly consenting, in writing, to receive telemarketing and other messages, including artificial or prerecorded voices, via automated calls or texts from jumprealty.ca and up.mortgages at the number you provided above. This consent is not required to purchase any good or service. Message and data rates may apply, frequency varies. Text HELP for help or STOP to cancel. More details in Terms of Use and Privacy Policy.

Listing Agency:  Century 21 Millennium Inc.

* Data is provided courtesy of PROPTX. The information provided herein must only be used by consumers that have a bona fide interest in the purchase, sale, or lease of real estate and may not be used for any commercial purpose or any other purpose. The information is deemed reliable but is not guaranteed accurate by PROPTX.

Hospital
Parks
Schools
Place of Worship
Please select an amenity above to view a list.

Recommended Properties

Loading...
158 North Street
Arran-Elderslie , Ontario
4 3 $899,000
Get more info