For Lease - 159 Wellesley Street Unit# 2601, Toronto, Ontario

Views   1
Time on Jump  1 days
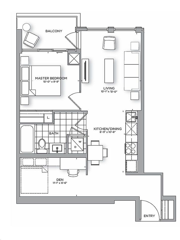
  • Stylish 1+1 bedroom condo with flexible den for office or second bedroom.
  • Prime downtown location steps from Wellesley Station and major attractions.
  • Close to vibrant local amenities, restaurants, and shopping options.
  • Modern open-concept layout with built-in kitchen appliances.
  • Building features great amenities like a gym, rooftop deck, and concierge.
Discover urban living at its finest in this beautifully designed 1+1 bedroom, 1 washroom condo ideally located in downtown toronto. The den can effortlessly serve as a second bedroom or a home office, offering you flexible living space to suit your needs. Just steps away from wellesley station, this prime location provides easy access to bloor street, yorkville, u of t, ocad, and ryerson. Immerse yourself in the vibrant local amenities, including the ymca, and the financial district, with numerous restaurants and stores nearby. This condo features built-in kitchen appliances and an open-concept layout, creating a modern and spacious living environment. The building offers top-notch amenities such as a gym, study room, roof-top deck, and a 24-hour staffed concierge. There is also a bicycle room for your convenience.
Listing IDC13017360
Address159 Wellesley Street Unit# 2601
CityToronto, Ontario
Lease$2,150
Bed / Bath2 / 1 Full
StyleApartment, Condo Apartment
ConstructionConcrete
TypeCondominium
StatusFor Lease
Subtype Condo ApartmentIndoor Features None, EnsuiteInclusions Building Insurance, Central Air ConditioningAmenities Clear View, Library, Park, Public Transit, Rec./Commun.Centre, SchoolOwnership LeaseholdBuilding Amenities Concierge, Gym, Party Room/Meeting Room, Recreation Room, Rooftop Deck/Garden, Visitor ParkingBasement NoneHeating / Cooling Forced AirHeating Fuel Gas
ASAP

Wed

22

Apr

Thu

23

Apr

Fri

24

Apr

Sat

25

Apr

Sun

26

Apr

Mon

27

Apr

Tue

28

Apr

Wed

29

Apr

Thu

30

Apr

Fri

1

May

Sat

2

May

Sun

3

May

Mon

4

May

Tue

5

May

Wed

6

May

Thu

7

May

Fri

8

May

Sat

9

May

Sun

10

May

Mon

11

May

Tue

12

May

Wed

13

May

Thu

14

May

Fri

15

May

Sat

16

May

Sun

17

May

Mon

18

May

Tue

19

May

Wed

20

May

By clicking “Get pre-qualified” and/or 'Submit' you are expressly consenting, in writing, to receive telemarketing and other messages, including artificial or prerecorded voices, via automated calls or texts from jumprealty.ca and up.mortgages at the number you provided above. This consent is not required to purchase any good or service. Message and data rates may apply, frequency varies. Text HELP for help or STOP to cancel. More details in Terms of Use and Privacy Policy.

Listing Agency:  FIRST CLASS REALTY INC.

* Data is provided courtesy of PROPTX. The information provided herein must only be used by consumers that have a bona fide interest in the purchase, sale, or lease of real estate and may not be used for any commercial purpose or any other purpose. The information is deemed reliable but is not guaranteed accurate by PROPTX.

Hospital
Parks
Schools
Place of Worship
Please select an amenity above to view a list.

Recommended Properties

Loading...
159 Wellesley Street Unit# 2601
Toronto , Ontario
2 1 $2,150
Get more info