For Sale - 1597 CHICKADEE Trail, London South, Ontario

Est payment $3,817/mo
Views   1
Time on Jump  178 day
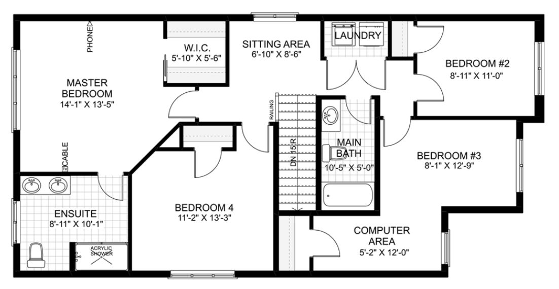
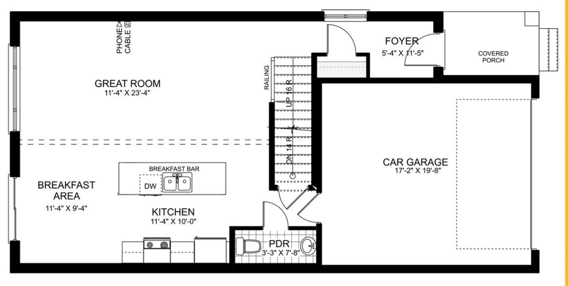
  • Newly designed home with 1949 sq ft of living space.
  • Open concept main level with bright great room and kitchen island.
  • Four spacious bedrooms, including a primary suite with ensuite.
  • Convenient main floor laundry and bathroom for added ease.
  • Located in desirable Old Victoria, offering various lots and plans.



To be built! Sunlight heritage homes presents the broderick. 1949 sq ft of expertly designed living space located in desirable old victoria on the thames. Enter into the generous open concept main level featuring kitchen with quartz countertops, 36" upper cabinets with valance and crown moulding, microwave shelf and island with breakfast bar; great room with 9' ceilings and large bright window, dinette with sliding door access to the backyard and convenient main floor 2-piece bathroom. The upper level includes 4 spacious bedrooms including primary suite with walk in closet and 4-piece ensuite with double sinks; laundry closet and main bathroom. Other standard inclusions: hardwood flooring throughout main level (except bathroom), 5' patio slider, 9' ceilings on main level, bathroom rough-in in basement, drywalled garage and more! Other lots and plans to choose from. Photos are from previous model and show upgraded items.
Listing IDX12455087
Address1597 CHICKADEE Trail
CityLondon South, Ontario
Price$794,900
Bed / Bath4 / 3 Full
Style2-Storey, Detached
ConstructionBrick, Vinyl Siding
TypeResidential
StatusFor Sale
Subtype DetachedIndoor Features Sump PumpOwnership FreeholdBasement Full, UnfinishedFoundation Poured ConcreteHeating / Cooling Forced AirHeating Fuel GasSewer Sewer
Parking 3.00
ASAP

Tue

7

Apr

Wed

8

Apr

Thu

9

Apr

Fri

10

Apr

Sat

11

Apr

Sun

12

Apr

Mon

13

Apr

Tue

14

Apr

Wed

15

Apr

Thu

16

Apr

Fri

17

Apr

Sat

18

Apr

Sun

19

Apr

Mon

20

Apr

Tue

21

Apr

Wed

22

Apr

Thu

23

Apr

Fri

24

Apr

Sat

25

Apr

Sun

26

Apr

Mon

27

Apr

Tue

28

Apr

Wed

29

Apr

Thu

30

Apr

Fri

1

May

Sat

2

May

Sun

3

May

Mon

4

May

Tue

5

May

By clicking “Get pre-qualified” and/or 'Submit' you are expressly consenting, in writing, to receive telemarketing and other messages, including artificial or prerecorded voices, via automated calls or texts from jumprealty.ca and up.mortgages at the number you provided above. This consent is not required to purchase any good or service. Message and data rates may apply, frequency varies. Text HELP for help or STOP to cancel. More details in Terms of Use and Privacy Policy.

Listing Agency:  ROYAL LEPAGE TRILAND PREMIER BROKERAGE

* Data is provided courtesy of PROPTX. The information provided herein must only be used by consumers that have a bona fide interest in the purchase, sale, or lease of real estate and may not be used for any commercial purpose or any other purpose. The information is deemed reliable but is not guaranteed accurate by PROPTX.

Hospital
Parks
Schools
Place of Worship
Please select an amenity above to view a list.

Recommended Properties

Loading...
1597 Chickadee Trail
London South , Ontario
4 3 $794,900
Get more info